Es muss nicht immer eine Eigentumswohnung sein: Auch Alleinstehende können sich den Traum vom Leben im eigenen Haus erfüllen. Unter der Bezeichnung Singlehaus bieten Architekten und Hausbaufirmen verschiedene Hauskonzepte für Kleinsthaushalte an.
Hintergrund
Im Jahr 2040 wird jeder vierte Mensch in Deutschland allein leben, so lautet die Prognose des Statistischen Bundesamts. Mit dem Trend zum Einpersonenhaushalt steigt auch die Nachfrage nach entsprechenden Wohnformen. Neben dem klassischen Einfamilienhaus bieten Architekten und Hausbauunternehmen vermehrt auch kleinere und günstigere Haustypen an, die auf die Bedürfnisse Alleinlebender zugeschnitten sind. Oft werden sie als Singlehaus bezeichnet.
Was ist ein Singlehaus?
Singlehaus ist kein geschützter Begriff, daher gibt es auch keine verbindliche Definition, was darunter zu verstehen ist. Mit Blick auf Entwürfe, die Architekten oder Baufirmen unter der Bezeichnung Singlehaus anbieten, lassen sich aber einige Gemeinsamkeiten feststellen:
- Geplant für eine bis höchstens zwei Personen.
- Wohnfläche deutlich unter 100 Quadratmeter. Eine 400-Quadratmeter-Luxusvilla zählt also nicht als Singlehaus, auch wenn sie von nur einer Person bewohnt werden.
- Funktionale Bauweise, die einen günstigen Preis ermöglicht. Allerdings werden auch Singlehäuser mit hochwertiger Ausstattung, zum Beispiel Smart-Home-Technik angeboten.
Abgrenzung zu ähnlichen Haustypen
Es gibt eine Reihe von Hauskonzepten, die dem des Singlehauses ähneln, aber einen etwas anderen Fokus haben:
- Minihaus ist ein Sammelbegriff für verschiedene Haustypen mit geringer Wohnfläche
- Tiny House ist ebenfalls kein geschützter Begriff. Üblicherweise versteht man darunter bewegliche Häuser ohne Fundament, mit einer Fläche unter 50 Quadratmetern. Tiny Houses auf Rädern gelten rechtlich als Wohnwagen.
- Kompakthaus ist eine Bezeichnung, unter der die Fertigbauindustrie Häuser für ein bis zwei Personen anbieten, in kompakter Bauweise mit weniger als 100 Quadratmetern Wohnfläche.
- Modulhaus beschreibt eine Fertigbauweise aus Wand-, Decken- und Bodenelementen, die als komplette Wohneinheiten angeliefert werden. Eine Wohneinheit entspricht einem Mini- oder Singlehaus.
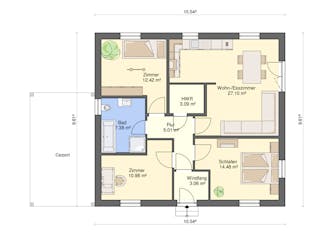
Grundrissgestaltung beim Singlehaus
Beim Single- wie auch bei anderen Minihäusern besteht die Herausforderung für die Planung darin, die begrenzte Fläche optimal zu nutzen. Das kann auf unterschiedliche Weise geschehen:
In die Höhe bauen
Manche Minihausformen haben sich unter Bedingungen extremer Flächenknappheit entwickelt. So entstanden zum Beispiel in japanischen Großstädten mehrstöckige Wohntürme auf nur 20 bis 30 Quadratmetern Grundfläche. Auch in Deutschland, Österreich oder der Schweiz gibt es Beispiele von zwei- oder mehrstöckigen Singlehäusern, oft aus freier Planung.
Eine mögliche Variante: Ein Erdgeschoss mit offenem Wohnbereich, darüber ein Schlafplatz unter einem Spitzdach. Zur Verbindung der Stockwerke eignen sich für Kleinsthäuser vor allem raumsparende geradläufige Treppen.
Offener Grundriss
Sehr beliebt bei der Raumaufteilung von Singlehäusern ist der offene Grundriss. Neben den Funktionen Wohnen, Essen und Kochen kann auch ein Schlafbereich integriert werden, etwa in einer abgeschirmten Nische. So geht kaum Wohnfläche durch Innenwände verloren, die Räume wirken größer. Mit großen Fensterflächen, die ein Minihaus zur Umgebung öffnen, lässt sich dieser Eindruck noch verstärken. „Außerdem ist jede zusätzliche Trennwand natürlich auch ein Kostenfaktor“, so ein weiteres Argument für offene Räume von Corinna Merzyn.
Individuelle Lösungen
Dennoch würde Merzyn den offenen Grundriss nicht in jedem Fall als Standardlösung empfehlen. „Es gibt immer mehrere Aspekte zu bedenken“, so die Geschäftsführerin des VPB, „weniger Wände bedeuten beispielsweise auch weniger Stellfläche, die dann vielleicht für Regale oder andere Möbel fehlt.“ Sie plädiert, sich auch beim Singlehaus an den eigenen Bedürfnissen zu orientieren und möglichst individuell zu planen: „Die erste Frage sollte immer sein: Wie möchte ich wohnen? Falls man an Wiederverkauf denkt, kann man darüber hinaus natürlich auch berücksichtigen, was am Markt gefragt sein könnte.“
Barrierefreier Bungalow
Im Trend bei Häusern für Singles und Paare liegt jedoch das Wohnen auf einer Ebene im barrierefreien Bungalow. Das mag auch damit zusammenhängen, dass sich zunehmend auch die ältere Generation für die kleinen Hausformen interessiert. Corinna Merzyn vom Verband Privater Bauherren e.V. (VPB) findet, das Thema Barrierefreiheit sollte beim Bauen in jeder Lebensphase mit bedacht werden: „Auch für jüngere Menschen können sich die Lebensumstände ändern, beispielsweise durch Krankheit.“
Was kostet ein Singlehaus?
Baukosten
Der Begriff Singlehaus umfasst Häuser unterschiedlichster Bauweisen und Ausstattungen, vom Tiny House auf Rädern bis zum barrierefrei ausgebauten Bungalow. Dementsprechend ist es auch nicht möglich, konkrete Preisangaben zu machen. Geringe Wohnfläche und kompakte Bauweise sind zwar kostenbegrenzende Faktoren, doch auf den Quadratmeter umgerechnet liegen die Baukosten für ein Singlehaus oft über denen eines herkömmlichen Einfamilienhauses. „Auch beim kleinen Haus fallen Kosten für Erschließung und Installationen für Bad und Küche an, die relativ unabhängig von der Hausgröße sind,“ erklärt Corinne Merzyn. Beim herkömmlichen Einfamilienhaus kann man mit Kosten von 2.000 bis 2.500 Euro pro Quadratmeter rechnen.
Ein frei geplantes Singlehaus wird in der Regel teurer werden als ein Standardmodell vom Haushersteller. Corinna Merzyn weist aber darauf hin, dass individuelle Änderungen bei Typen- oder Fertighäusern in der Regel mit zusätzlichen Kosten verbunden sind. Deshalb sollte man vor Vertragsabschluss genau prüfen, was im Grundpreis enthalten ist und was nicht: „Nachträgliche Sonderwünsche kosten immer extra, unabhängig von der Größe des Hauses!“
Grundstückskosten
Für ein Singlehaus braucht man nur ein vergleichsweise kleines Grundstück, was die Kosten insgesamt senken sollte. „Die entscheidende Frage ist aber“, so Corinna Merzyn, „finde ich überhaupt ein Grundstück, das klein genug ist, um darauf wirtschaftlich ein sehr kleines Haus zu bauen?“ Je nach Regionen könnte das schwierig sein. Ein vergleichsweise teures Grundstück, so Merzyn, wäre beispielsweise mit einem Tiny House nicht wirklich angemessen genutzt. Sie hält es diesem Fall für sinnvoller, in eine höherwertige und flexibel nutzbare Variante des Singlehaus zu investieren, auch in Hinblick auf einen möglichen späteren Wiederverkauf.
Eine günstige Gelegenheit für den Singlehausbau dagegen können Baulücken oder aus anderen Gründen für den Bau größerer Häuser nicht geeignete Grundstücke sein.
„Ich würde mir außerdem bei den Wohnformen für Alleinstehende mehr Kreativität von Architekten und mehr Offenheit bei Bauvorschriften und Vergaben wünschen“, sagt Merzyn. „Ein Singlehaus muss nicht immer ein freistehendes Haus auf der Wiese sein. Mit geschickter Planung könnte man auch dichter bauen und zum Beispiel einzelne abgeschlossene Wohneinheiten für kleine Haushalte um einen Hof herum gruppieren.“ So ließe sich bei geringem Flächenbedarf günstig bauen und auch größere Grundstücke sinnvoll für kleine Häuser nutzen.
Vor- und Nachteile eines Singlehauses
Vor der Entscheidung, ein Singlehaus zu bauen oder als Alleinstehende eine andere Wohnform zu wählen, sollten die Vor- und Nachteile abgewogen werden.
Was für ein Singlehaus spricht:
- Selbstbestimmt leben: Wer im eigenen Haus wohnt, lebt nach eigenen Regeln, ohne sich mit der Hausordnung oder Mitbewohnern arrangieren zu müssen. Das gilt zum Beispiel auch für Tierhaltung.
- Alternative zur Eigentumswohnung: Wohneigentum ist auch für Singles eine Option der Geldanlage und Altersvorsorge. Anders als bei der Eigentumswohnung ist man mit dem eigenen Haus nicht an die Eigentümergemeinschaft gebunden und kann unter anderem selbstständig entscheiden, welche Investitionen man wann tätigen möchte.
- Außenbereich: Zu den meisten Singlehäusern gehört genau wie bei anderen Wohnformen mit nur einer Wohneinheit ein Außenbereich dazu, der nach persönlichen Vorlieben gestaltet werden kann.
Zu bedenken sind jedoch folgende Nachteile:
- Begrenzte Flexibilität: Lebensumstände können sich ändern, nicht jeder Single bleibt auf Dauer allein. Nicht jedes Grundstück oder jede Bauweise eignen sich dafür, bei Bedarf das Haus auszubauen oder zu erweitern. Flexibel zeigt sich in dieser Hinsicht die Modulbauweise.
- Relativ teuer: Im Vergleich zur Eigentumswohnung und in Abhängigkeit zur Lage liegt der Preis für ein freistehendes Singlehaus meist etwas höher.
- Einschränkungen beim Wiederverkauf: Auch bei weiter steigender Zahl von Einpersonenhaushalten wird der Interessentenkreis für Singlehäuser begrenzt bleiben. Corinna Merzyn rät, einen möglichen Wiederverkauf schon bei der Planung im Hinterkopf zu haben: „Das ist zwar in Deutschland nicht unbedingt üblich. Aber gerade beim Singlehaus sollte ich mich mit den Wiederverkaufsmöglichkeiten befassen und mich fragen, ob es in der Region wohl Nachfrage für diese Art Immobilie gibt.“
Für wen ist ein Singlehaus geeignet?
Das Singlehaus ist sicher nicht für alle Alleinstehenden die passende Lösung. Bei der Entscheidung für oder gegen diese Wohnform kommt es im Einzelfall auf die Lebensphase, die Lebensumstände und auch die Arbeitssituation an. Hier einige Beispiele, welche Art von Singlehaus für wen und wann eine Option ist:
- Bungalow für die 3. Lebensphase: Die meisten Menschen möchten auch im fortgeschrittenen Alter unabhängig leben. Gefragt ist in dieser Phase weniger Wohnfläche, dafür mehr Komfort. Ein maßgeschneiderter Bungalow, barrierefrei in Zugang und Ausstattung, entspricht diesen Bedürfnissen. Interessant ist auch die moderne Variante des sogenannten Austragshauses oder Altenteil: In diesem Fall überlässt die ältere Generation das bisherige Familienhaus den erwachsenen Kindern und baut für sich ein Minihaus im Garten.
- Tiny House für Minimalisten: Überflüssige Dinge entrümpeln, sich auf das Wesentliche konzentrieren, naturnah leben, auf Nachhaltigkeit achten: Zu einer solchen Lebensweise passt sehr gut eine der einfacheren Singlehausformen wie das Tiny House in einer passenden Umgebung.
- Temporäres Wohnen: Zum Beispiel Home Office: Selbstständige und Arbeitnehmer, die überwiegend von Zuhause aus arbeiten, brauchen einen Raum, in dem sie sich ungestört auf ihre Tätigkeit konzentrieren können. Wenn dieser im Wohnhaus fehlt, aber auf dem Grundstück noch Platz ist, kann ein Singlehaus in Modulbauweise eine Lösung sein. Dabei sollte der Grundriss flexibel angelegt sein, um das Häuschen später gegebenenfalls auch anderweitig nutzen zu können.
- Ferien- oder Wochenendhaus: Für alle, die am Wochenende Tapetenwechsel brauchen oder im Urlaub ihr eigenes Domizil bevorzugen. In dafür ausgewiesenen Gebieten gelten für Ferienhäuser unter 50 Quadratmetern erleichterte Bauvorschriften. Wer aber daran denkt, ein solches Häuschen später im Ruhestand als ständiges Wohnhaus zu nutzen, muss von vornherein entsprechend planen, damit die gesetzlichen Vorgaben erfüllt sind.
Hausbaukataloge bestellen & sich inspirieren lassen
Mit dem Katalog-Assistenten in nur 2 Minuten passende Hauskataloge finden.
Jetzt Bauprojekt starten

















