
Wer ein Doppelhaus bauen möchte, teilt sich Grundstück, Dach und Baukosten, spart daher gegenüber einem freistehenden Einfamilienhaus oft 8 bis 15 %. Auf dieser Seite erfahren Sie, was eine Doppelhaushälfte aktuell kostet, welche Vorteile und Nachteile der Doppelhausbau mit sich bringt und wie Sie die Planung erfolgreich angehen.

Doppelhausbau: Das Wichtigste in Kürze
Definition: Zwei eigenständige Wohnhäuser mit gemeinsamer Trennwand, getrennten Eingängen und eigenen Grundstücksanteilen.
Kosten: Reine Hauspreise im Durchschnitt rund 2.700 Euro/qm.
Ersparnis: 8–15 % günstiger als ein vergleichbares freistehendes Einfamilienhaus durch geteilte Grundstücks-, Erschließungs- und Baukosten.
Grundstück: Effizientere Flächennutzung, da der baurechtliche Mindestgrenzabstand (ca. 3 m) an der gemeinsamen Seite entfällt.
Energieeffizienz: Durch die wegfallende Außenwand reduzieren sich Wärmeverluste, Doppelhäuser erfüllen deshalb häufig leichter die Anforderungen für KfW-Förderung.
Schallschutz: Die gemeinsame Trennwand muss gemäß DIN 4109 mindestens etwa 57 dB erreichen. Für einen erhöhten Wohnkomfort empfiehlt sich jedoch ein Schalldämm-Maß von mindestens 62 dB.
Gestaltungsfreiheit: Trotz gemeinsamer Wand sind individuelle Grundrisse, unterschiedliche Wohnflächen und sogar verschiedene Fassaden möglich.
Was genau ist ein Doppelhaus und wie unterscheidet es sich vom Zweifamilienhaus?
Ein Doppelhaus besteht aus zwei aneinander gebauten Wohngebäuden, die sich eine Trennwand mit Brandabschluss teilen. Dabei hat jede Doppelhaushälfte einen eigenen Eingang, eine separate Hausnummer und in der Regel ein eigenes Grundstück. Genau durch die Trennwand verläuft die Grundstücksgrenze.
Im Unterschied zum Zweifamilienhaus, das zwei Wohneinheiten in einem Gebäude vereint (übereinander), sind Doppelhaushälften baulich und eigentumsrechtlich selbstständig. Daher bietet ein Doppelhaus mehr Unabhängigkeit, etwa beim späteren Verkauf einer Hälfte.
Früher waren Doppelhäuser nahezu immer spiegelsymmetrisch. Heute sind individuelle Grundrisse, unterschiedliche Wohnflächen, Fassaden und sogar verschiedene Dachformen möglich, sofern der Bebauungsplan es zulässt.
Moderne Doppelhaus-Baubeispiele entdecken
Welche Vorteile und Nachteile hat ein Doppelhaus?
Die Entscheidung für oder gegen ein Doppelhaus hängt von den persönlichen Prioritäten ab. Die folgende Tabelle gibt einen Überblick:
| Vorteile | Nachteile |
|---|---|
| Geringere Baukosten durch Kostenteilung (Grundstück, Dach, Erschließung, Keller/Bodenplatte) | Unmittelbare Nähe zum Nachbarn – weniger Privatsphäre als beim EFH |
| Kleineres Grundstück möglich – spart Grundstückskosten | Erhöhter Abstimmungsbedarf bei Planung und Bau |
| Entfall des Mindestgrenzabstands an einer Seite | Schallschutz an der Trennwand erfordert besondere Aufmerksamkeit |
| Höhere Energieeffizienz durch weniger Außenwandfläche | Oftmals eine „bessere“ und eine „schlechtere“ Grundstückshälfte (z. B. Ausrichtung) |
| Gemeinsame Heizung möglich – spart Anschaffungs- und Betriebskosten | Einschränkungen bei späteren Umbauten an der Trennwandseite |
| Vielseitige Nutzung: Mehrgenerationen, Wohnen + Arbeiten, Vermietung | Unterschiedliche Baufirmen für die Hälften sind möglich, aber oft nicht empfehlenswert |
Jetzt Anbieter vergleichen und passende Doppelhaushälfte finden
Zum BauquizWas kostet es, ein Doppelhaus zu bauen?
Die Baukosten für eine Doppelhaushälfte liegen im Schnitt bei rund 2.700 Euro pro Quadratmeter, bezogen auf den reinen Hauspreis ab Oberkante Bodenplatte. Damit ist der Quadratmeterpreis auf einem ähnlichen Niveau wie beim Einfamilienhaus, doch durch die geteilten Grundstücks- und Erschließungskosten ist das Gesamtbudget deutlich niedriger. Außerdem entfällt für Ihre Doppelhaushälfte eine Fassadenseite einschließlich Fenster sowie die Dämmung der trennenden Innenwand. Unter Umständen wird eine Heizungsanlage und ein von außen zugänglicher Technikraum genutzt, was ebenfalls die Baukosten pro Doppelhaushälfte reduziert.
Wichtig: Zum Hauspreis kommen noch Grundstück, Fundament oder Keller, Baunebenkosten und Außenanlagen hinzu. Als Faustregel gilt: Das gesamte Baubudget beträgt etwa das 1,7- bis 2-fache des reinen Hauspreises.
| Kostenposition | Doppelhaushälfte (ca.) | Einfamilienhaus (ca.) |
|---|---|---|
| Hauspreis (120 m², schlüsselfertig) | 324.000 € | 324.000 € |
| Grundstück (anteilig) | 40.000–120.000 € | 80.000–200.000 € |
| Erschließungskosten | 5.000–8.000 € (geteilt) | 10.000–15.000 € |
| Bodenplatte/Nutzkeller | 20.000–80.000 € | 25.000–100.000 € |
| Baunebenkosten | 45.000–60.000 € | 50.000–65.000 € |
| Außenanlage | 10.000–25.000 € | 20.000–30.000 € |
| Gesamtbudget (ca.) | 444.000–617.000 € | 509.000–734.000 € |
| Ausbaustufe | Preis pro m² (ca.) | Doppelhaushälfte 120 m² (ca.) |
|---|---|---|
| Bausatzhaus | 1.100–1.800 € | 132.000–216.000 € |
| Ausbauhaus | 1.800–2.200 € | 216.000–264.000 € |
| Schlüsselfertig (mittlerer Standard) | 2.500–3.000 € | 300.000–360.000 € |
| Schlüsselfertig (gehoben) | 3.000–4.000 € | 360.000–480.000 € |
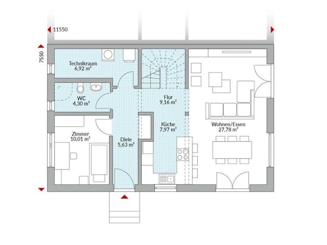
Wie sieht ein guter Doppelhaus-Grundriss aus?
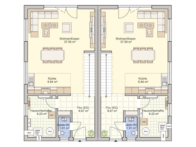
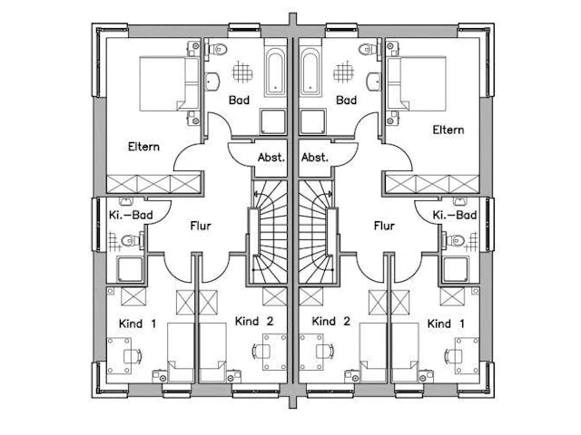
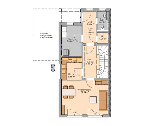
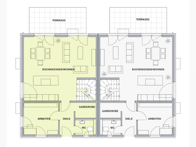
Der Grundriss einer Doppelhaushälfte folgt in der Regel einem bewährten Schema: Im Erdgeschoss befinden sich Wohn-Ess-Bereich mit offener Küche, Gäste-WC und Hauswirtschaftsraum. Dagegen liegen im Obergeschoss Schlafzimmer, Kinderzimmer und Bad.
Besonderes Augenmerk sollten Sie bei der Grundrissplanung auf die Raumaufteilung entlang der Trennwand legen. In dieser Hinsicht hat sich folgende Regel bewährt:
- An die Trennwand gehören: Treppenhaus, Flur, Bad, Abstellraum oder Hauswirtschaftsraum.
- Von der Trennwand weg planen: Schlafzimmer, Wohnzimmer und Kinderzimmer.
- Grund: Nebenräume bilden einen Schallpuffer und minimieren Geräuschübertragung.
Tipp: Doppelhäuser müssen nicht symmetrisch sein. So erlauben moderne Entwürfe versetzte oder verschieden gestaltete Hälften (z.B. Balkone, Fassade, Erker, Anbauten) oder unterschiedliche Grundflächen. Allerdings sollten sich beide Parteien früh auf eine gemeinsame Dachform und ähnliche Traufhöhen einigen, da das Dach statisch und optisch zusammenhängen muss.

“Generell bietet sich eine größtenteils einheitliche Gestaltung der beiden Doppelhaushälften an, auch wenn es sich um zwei eigenständige Häuser handelt. So ist es beispielsweise sinnvoll, Treppenhäuser und Bäder aneinander angrenzend zu bauen, sodass zwischen den Schlaf- und Wohnzimmern zusätzlicher Schallschutz entsteht. Die Bauherren sollten sich darauf einigen, mit oder ohne Keller zu bauen. Baut nur einer von beiden einen Keller, muss dies statisch ausgeglichen werden, was für den Bauherren ohne Keller enorme Zusatzkosten bedeutet.”
Finden Sie jetzt Grundrisse und Preise passender Doppelhäuser
Jetzt Bauprojekt startenWorauf müssen Sie beim Schallschutz im Doppelhaus achten?
Schallschutz ist das zentrale Qualitätsmerkmal im Doppelhausbau. Obwohl die gesetzliche Mindestanforderung nach DIN 4109 bei einem Schalldämmmaß von 57 dB für die Trennwand liegt, empfiehlt sich für ein angenehmes Wohngefühl jedoch mindestens 62 dB.
Maßnahmen für guten Schallschutz:
- Zweischalige Trennwand mit durchgehender Fuge, wobei die beiden Wandschalen sich nicht berühren dürfen.
- Schallabsorbierende Dämmmaterialien wie Steinwolle oder Verbundschaumstoff in der Trennfuge.
- Entkopplung der Treppe von der Trennwand durch Neoproenschichten an den Ankern.
- Trittschalldämmung in allen Geschossen.
- Grundriss so planen, dass ruhige Räume nicht an laute Räume der Nachbarhälfte grenzen.
Lassen Sie den erhöhten Schallschutz vertraglich mit dem Bauunternehmen vereinbaren. Die gesetzlichen Mindestanforderungen reichen für ein Doppelhaus in der Praxis selten aus.
Doppelhaus als Fertighaus oder Massivhaus – was ist besser?
Beide Bauweisen sind für Doppelhäuser geeignet. Da es preislich keine Unterschiede gibt, hängt die Wahl vom Zeitrahmen und persönlichen Vorlieben ab.
| Kriterium | Fertighaus-DHH | Massivhaus-DHH |
|---|---|---|
| Bauzeit ab Fundament | Ca. 3–5 Monate | Ca. 6–12 Monate |
| Planbarkeit | sehr hoch (Vorfertigung im Werk, wetterunabhängiger Rohbau in nur 1-3 Tagen) | Rohbau stark witterungsabhängig, Trocknungszeiten; optimal bei schlüsselfertiger Übergabe |
| Schallschutz | Gut, erfordert ggf. zusätzliche Maßnahmen | Sehr gut durch hohe Masse |
| Individualisierung | Je nach Preisklasse flexibel | Nahezu unbegrenzt bei entsprechendem Aufpreis (alle Wände tragend) |
| Energieeffizienz | Sehr gut | Sehr gut |
| Wiederverkaufswert | Gut, passt sich immer mehr an | Tendenziell etwas höher |
Empfehlung: Wer schnell und besonders planungssicher bauen möchte, fährt mit einem Fertighaus-Doppelhaus gut. Wer Wert auf maximalen Schallschutz und absolute Grundrissanpassbarkeit legt, sollte sich für die Massivbauweise entscheiden.
Jetzt Doppelhaus-Angebote vergleichen und das passende Bauprojekt finden
Hausbau-Quiz startenWie sichern Sie sich beim Doppelhausbau rechtlich ab?
Bevor Sie in die konkrete Planung einsteigen, sollten Sie den Bebauungsplan (B-Plan) Ihrer Gemeinde prüfen. Denn dieser entscheidet, ob ein Doppelhaus auf Ihrem Grundstück überhaupt zulässig ist, und setzt den Rahmen für nahezu alle weiteren Planungsschritte.
Folgende Punkte regelt der Bebauungsplan typischerweise:
- Bauweise: Nur wenn eine geschlossene oder offene Bauweise mit Grenzbebauung zulässig ist, darf ein Doppelhaus direkt auf der Grundstücksgrenze errichtet werden. Schreibt der B-Plan ausschließlich freistehende Einzelhäuser vor, ist ein Doppelhaus nicht genehmigungsfähig.
- Baufenster und Baugrenzen: Sie legen fest, wo auf dem Grundstück gebaut werden darf. Bei Doppelhäusern muss das Baufenster so geschnitten sein, dass beide Hälften darin Platz finden.
- Dachform und Traufhöhe: Viele B-Pläne schreiben Satteldächer mit einer bestimmten Dachneigung oder eine maximale Traufhöhe vor. Beide Doppelhaushälften müssen diese Vorgaben einhalten, was die gestalterische Freiheit einschränken kann, aber auch für ein einheitliches Straßenbild sorgt.
- Firstrichtung: In manchen Gebieten ist die Ausrichtung des Dachfirsts vorgegeben. Das beeinflusst, ob die Giebelseiten nach Osten/Westen oder nach Norden/Süden zeigen – und damit die Belichtung und Attraktivität der einzelnen Hälften.
- Geschossflächenzahl (GFZ) und Grundflächenzahl (GRZ): Diese Kennzahlen begrenzen, wie viel Fläche bebaut werden darf. Bei einem Doppelhaus auf zwei Grundstücken gelten die Werte je Flurstück.
Tipp: Den Bebauungsplan können Sie in der Regel kostenlos beim Bauamt Ihrer Gemeinde einsehen oder online abrufen. Klären Sie offene Fragen frühzeitig mit der Baubehörde, idealerweise noch vor dem Grundstückskauf. Ist kein B-Plan vorhanden, richtet sich die Zulässigkeit nach § 34 BauGB (Einfügung in die Umgebungsbebauung). Auch dann kann ein Doppelhaus möglich sein, wenn in der Nachbarschaft bereits Doppelhäuser stehen.
Alle Infos rund um den Bebauungsplan: Wie er gelesen wird, was die Abkürzungen bedeuten.
Sind die baurechtlichen Vorgaben geklärt, geht es im nächsten Schritt um die Besitzverhältnisse beim Grundstück. Beim Doppelhaus gibt es zwei gängige Eigentumsmodelle:
- Realteilung: Das Grundstück wird physisch in zwei Flurstkücke geteilt. Jede Partei erhält ein eigenes Grundbuchblatt und ist vollständig unabhängig. Dies ist die empfohlene Variante, weil sie spätere Konflikte minimiert.
- Ideelle Teilung (nach WEG): Es bleibt bei einem Grundstück und einem Grundbucheintrag. Die Eigentümer bilden eine Wohnungseigentümergemeinschaft. Änderungen an Fassade, Dach oder gemeinschaftlichen Anlagen erfordern Abstimmung. Für dieses Schema ist eine detaillierte Teilungserklärung bei einer Notarin ratsam.
Unabhängig vom Teilungstyp empfiehlt sich ein Notarvertrag, der Vorkaufsrechte, Instandhaltungspflichten und Nutzungsrechte für gemeinsame Flächen (z. B. Zufahrt, Garten) klar regelt.

„Sprechen Sie alle Individualisierungswünsche wie Dachterrasse, Carport oder Fassadenfarbe unbedingt vor Baubeginn ab. Gerade nach außen empfehlen wir einen übereinstimmenden Stil. Und: Achten Sie auf soliden Schallschutz, dann steht dem erfolgreichen Projekt Doppelhausbau nichts im Wege.“
Wie planen Sie Ihr Doppelhaus in 5 Schritten?
Der Weg zur eigenen Doppelhaushälfte erfordert etwas mehr Koordination als beim Einfamilienhaus. Doch mit diesen fünf Schritten behalten Sie den Überblick:
Schritt 1: Baupartner finden oder Grundstück prüfen
Klären Sie frühzeitig, ob Sie mit Familie, Freunden oder einem noch unbekannten Partner bauen. Prüfen Sie, ob der Bebauungsplan Ihres Grundstücks eine Doppelhausbebauung zulässt.
Schritt 2: Gemeinsame Eckpunkte festlegen
Einigen Sie sich auf die wichtigsten Rahmenbedingungen: Bauweise (Fertighaus/Massivhaus), Dachform, Traufhöhe, Keller ja/nein, gemeinsame oder getrennte Heizung. Nehmen Sie die ersten Planungstreffen gemeinsam wahr.
Schritt 3: Grundriss und Schallschutz planen
Beauftragen Sie eine Architektin oder wählen Sie ein Typenprojekt eines Hausanbieters. Achten Sie auf die Raumaufteilung an der Trennwand und vereinbaren Sie einen erhöhten Schallschutz (mindestens 62 dB).
Schritt 4: Rechtliche Absicherung schaffen
Lassen Sie eine Realteilung des Grundstücks vornehmen, sodass jede Hälfte ein eigenes Grundbuchblatt erhält. Alternativ erstellt der Notar eine Teilungserklärung. Regeln Sie vertraglich: Vorkaufsrecht, Instandhaltungspflichten, Nutzung gemeinsamer Flächen.
Schritt 5: Anbieter vergleichen und beauftragen
Holen Sie mindestens drei Angebote von Hausbau-Unternehmen ein. Vergleichen Sie Leistungsumfang, Ausbaustufe und enthaltene Schallschutzmaßnahmen. Idealerweise bauen beide Hälften gleichzeitig und aus einer Hand, um Kosten zu sparen und Schnittstellenprobleme zu vermeiden.
Wie groß muss das Grundstück für ein Doppelhaus sein?
Ein Doppelhaus nutzt die verfügbare Grundstücksfläche deutlich effizienter als zwei freistehende Einfamilienhäuser. Der Grund: An der gemeinsamen Seite entfällt der baurechtlich vorgeschriebene Mindestgrenzabstand von in der Regel 2,50 bis 3 Metern. Dadurch lassen sich auf demselben Grundstück zwei vollwertige Wohneinheiten realisieren, die als Einzelhäuser nicht nebeneinander passen würden.
Als Richtwert gilt: Für ein Doppelhaus mit zwei Hälften à 120 bis 140 Quadratmeter Wohnfläche sollte das Gesamtgrundstück mindestens 500 bis 700 Quadratmeter groß sein. Pro Doppelhaushälfte reichen damit oft schon 250 bis 350 Quadratmeter, also deutlich weniger als die 400 bis 600 Quadratmeter, die ein freistehendes Einfamilienhaus typischerweise benötigt.
| Kriterium | Doppelhaushälfte (ca.) | Einfamilienhaus (ca.) |
|---|---|---|
| Grundstücksbedarf pro Einheit | 250–350 m² | 400–600 m² |
| Mindestgrundstücksbreite | ca. 10–12 m | ca. 14–18 m |
| Grenzabstand zur Nachbarhälfte | 0 m (gemeinsame Wand) | 2,50–3,00 m |
| Gartenfläche (typisch) | 80–150 m² | 150–300 m² |
Grundstücksteilung und Ausrichtung
Wird ein gemeinsames Grundstück für den Doppelhausbau geteilt, sollten Sie auf eine möglichst gleichwertige Aufteilung achten. In der Praxis gibt es jedoch fast immer eine etwas bessere und eine etwas schlechtere Hälfte, vor allem wegen der Himmelsrichtung.
- Ost-West-Ausrichtung der Giebel (Trennwand verläuft in Nord-Süd-Richtung): Beide Hälften erhalten ähnlich viel Sonne. Das ist die fairste Variante.
- Nord-Süd-Ausrichtung der Giebel (Trennwand verläuft in Ost-West-Richtung): Eine Hälfte bekommt die Südseite mit Garten zur Sonne, die andere die Nordseite. Hier sollte die benachteiligte Seite gegebenenfalls durch einen günstigeren Grundstückspreis oder eine größere Fläche ausgeglichen werden.
Tipp: Planen Sie Terrassen und Gartenflächen für beide Hälften unabhängig voneinander. Eine durchgehende Terrasse wirkt zunächst großzügig, schränkt aber die Gestaltungsfreiheit beider Parteien ein und kann bei einem späteren Eigentümerwechsel zu Konflikten führen. Auch die Zufahrten und Stellplätze sollten klar getrennt sein.
Für wen eignet sich ein Doppelhaus besonders?
Ein Doppelhaus ist nicht für jeden die richtige Wahl. Besonders gut passt es in folgenden Situationen:
- Familien, die gemeinsam mit Verwandten oder Freunden bauen möchten und so Kosten teilen.
- Mehrgenerationenwohnen: Eltern und erwachsene Kinder leben Wand an Wand, aber unabhängig.
- Kapitalanleger, die eine Hälfte selbst nutzen und die andere vermieten wollen.
- Bauleute mit kleinem Grundstück, auf dem ein freistehendes EFH nicht realisierbar wäre.
- Wer Wohnen und Arbeiten trennen möchte, nutz eine Doppelhaushälfte als Büro oder Praxis.
Weniger geeignet ist ein Doppelhaus für Bauleute, die maximale Unabhängigkeit und Ruhe suchen und keine Kompromisse bei Fassade, Garten und Grundriss eingehen möchten.
7 Tipps für die Doppelhaus-Planung
- Baupartner frühzeitig finden und Eckpunkte gemeinsam festlegen
- Bebauungsplan prüfen: ist Doppelhausbebauung zulässig?
- Grundriss schalloptimiert planen – Nebenräume an die Trennwand
- Erhöhten Schallschutz (mind. 62 dB) vertraglich vereinbaren
- Eigentumsmodell wählen: Realteilung oder ideelle Teilung
- Beide Hälften gleichzeitig und aus einer Hand bauen lassen
- Individualisierungswünsche (Dachterrasse, Carport, Fassade) vorab absprechen
Fazit: Ihre Checkliste für den Doppelhausbau
- Bebauungsplan beachtet – ist Doppelhausbebauung auf dem Grundstück zulässig?
- Baupartner gefunden und erste Eckpunkte gemeinsam festgelegt (Bauweise, Dachform, Keller)?
- Grundstücksteilung gewählt – Realteilung (empfohlen) oder ideelle Teilung?
- Faire Ausrichtung auf dem Grundstück geplant – Ost-West empfohlen
- Notarvertrag vorbereitet – Vorkaufsrecht, Nutzungsrechte, Instandhaltung geregelt?
- Erhöhten Schallschutz (mind. 62 dB) vertraglich mit dem Bauunternehmen vereinbart?
- Grundriss schalloptimiert geplant – Nebenräume an die Trennwand, Schlafräume davon weg?
- Heizungskonzept gewählt – gemeinsame oder getrennte Anlage?
- Mindestens drei Angebote von Hausbauunternehmen eingeholt und verglichen?
- KfW-Förderung geprüft – erfüllt das Doppelhaus die Effizienzhaus-Anforderungen?
- Beide Hälften gleichzeitig und idealerweise aus einer Hand geplant?















































































































































