Ein Tiny House zu bauen heißt, ein kleines, mobiles und hocheffizient eingerichtetes Häuschen als Eigenheim zu planen. Doch ob Sie sich ein schlüsselfertiges Tiny House als Fertighaus oder einen Bausatz, um Ihr Tiny House selber zu bauen, wünschen, als zukünftige Bewohner müssen Sie wie bei jedem Hausbau einige Hürden überwinden – und sich von etwaigen Träumen grenzenloser Freiheit verabschieden. Dennoch lohnt sich der Tiny House Bau für gerade diejenigen, die mit wenig auskommen – mehr dazu weiter unten.
Erfahren Sie hier außerdem, was genau ein Tiny House ist, welche Vor- und Nachteile es gibt, und vergleichen Sie die Tiny House Preise unserer Anbieter.
Wollen Sie ein Tiny House bauen, sind Kosten von 2.700 Euro pro Quadratmeter ohne Fundament, Grundstück und Baunebenkosten der Durchschnitt
Allgemein hat ein Tiny House bis 80 qm Wohnfläche
Auch für ein Tiny House ist eine Baugenehmigung notwendig – mit wenigen Ausnahmen

Tiny House bauen: Was heißt das?
Was genau es bedeutet, ein Tiny House zu bauen, ist im Vergleich zu anderen Haustypen nicht ganz trennscharf.

„Ein Tiny House sollte eine Grundfläche von weniger als 50 Quadratmetern haben, es sollte mobil sein und am Standort sollte keine Bodenversiegelung stattfinden.“
Mehr als 60 Hersteller, in der Mehrzahl kleinere Betriebe mit Wurzeln im Handwerk und Holzbau, bedienen in Deutschland derzeit die Nachfrage nach Tiny Houses. Stilistisch ist dabei alles vertreten: vom minimalistischen Kubus über das Schwedenhaus bis zum umgebauten Zirkuswagen.
Meist wird der Tiny House Bau begrifflich allerdings weiter gefasst, wir und viele Haushersteller verstehen auch ein Tiny House bis 80 qm als solches, das auch durchaus auf einer Bodenplatte und teilweise sogar mit Unterkellerung erbaut werden kann. Gelegentlich wird auch ein Tiny House bis 100 qm angeboten.
Ausführungen von Tiny Houses
Was die Größe und Beweglichkeit der Tiny Häuser betrifft, haben sich generell zwei Varianten durchgesetzt. Während stationäre Tiny Houses sich von normalen Wohnhäusern letzten Endes hauptsächlich darin unterscheiden, was die Größe angeht, sieht die Sachlage beim mobilen Tiny House etwas anders aus.
Tiny House mit Rädern
- Straßenverkehrsrechtlich einem Wohnanhänger gleichgestellt.
- Maximalgewicht von 3,5 Tonnen im Straßenverkehr.
- TÜV-Zulassung und eine eigene Haftpflichtversicherung notwendig.
- Der Fahrer des Zugfahrzeuges braucht den sogenannten Anhängerführerschein der Klasse BE.
- Wohnfläche meist zwischen 12 und 20 Quadratmeter, mit eingezogener Hochebene bis zu 25 Quadratmeter.
Tiny House ohne Räder
- Diese Tiny Houses können größer gebaut werden als die Variante mit Rädern, und bleiben aber dennoch häufig unter 50 Quadratmetern Grundfläche. Möglich sind aber bei entsprechender Baugenehmigung auch Tiny Houses bis 80 qm und etwas mehr.
- Zum Bewegen eines Tiny Houses ohne Fundament und Räder ist ein separates Transportfahrzeug nötig, in der Regel ein Tieflader. Der Fahrer braucht einen entsprechenden LKW-Führerschein.
- Am Stellplatz wird ein mobiles Tiny House ohne Räder auf einem Schraub- oder Punktfundament fixiert, es findet also keine Bodenversiegelung statt, aber auch ein dauerhaftes normales Fundament ist möglich.
Tiny House Bau: Grundstücks- und Stellplatzsuche
Auch wenn Sie ein mobiles Tiny House bauen, spielt die Frage nach dem Standort des neuen Eigenheims eine größere Rolle, als es jemandem, der eigentlich ortsunabhängig sein möchte, lieb sein kann. Denn anders als es manches Werbebild suggeriert, darf man selbst Tiny Houses auf Rädern in Deutschland nicht auf jede Obstwiese stellen. Selbst wenn Freunde einem bereitwillig ein Stück in ihrem Garten zur Verfügung stellen, heißt das dennoch nicht, dass dieser Stellplatz auch rechtens ist.
Tiny House Bau- & Stellplatz nach Landesbauordnung

„Wo man sein Tiny House in Deutschland abstellen darf, hängt vor allem davon ab, ob man darin ganzjährig wohnen oder sich nur am Wochenende und im Urlaub dort aufhalten möchte. In beiden Fällen fällt das Tiny House aber unter das Baurecht der jeweils geltenden Landesbauordnung.“
Das heißt: ein Grundstück muss zur Wohnbebauung vorgesehen sein, damit man dort ein mobiles Haus dauerhaft abstellen und bewohnen darf.
Ein Tiny House fürs Wochenende
Für die Wochenend- und Freizeitnutzung Ihres Tiny Houses kommen als Stellplatz Grundstücke im Außenbereich der Kommunen in Frage, die als Erholungsgebiete und für die Errichtung von Ferienhäusern ausgewiesen und erschlossen sind. Dort dürfen Tiny Houses mit einer Grundfläche von weniger als 50 Quadratmetern in vielen Fällen verfahrens- und genehmigungsfrei aufgestellt werden. Auch Campingplätze sind eine Möglichkeit, ein Tiny House aufzustellen.
Hauptwohnsitz Tiny House
Wer sein Tiny House ganzjährig bewohnen möchte, hat es schwerer bei der Suche nach einem geeigneten Grundstück. Die Nutzung als fester Wohnsitz macht aus einem Tiny House nämlich ein reguläres Wohngebäude – selbst dann, wenn es sich um einen Wohnwagen handelt. Als solches darf es nur im Innenbereich der Kommunen auf einem Grundstück stehen, welches im Flächennutzungsplan für die Wohnbebauung vorgesehen ist. Außerdem muss das Grundstück an die Wasser- und Stromversorgung angeschlossen sein. Darüber hinaus hat sich auch ein Tiny House in Form und Gestaltung an die geltenden Bebauungsvorschriften zu halten.
Einen Überblick über Stellplätze, die ausdrücklich als Tiny-House-Stellplatz ausgewiesen sind, gibt es bei einigen lokal organisierten Tiny-House-Vereinen sowie beim Tiny-House-Verband, der auf seiner Website deutschlandweit ausgeschriebene Stellplatzprojekte publik macht und Informationsmaterial für Kommunen zum Umgang mit dem Thema bereitstellt.
Braucht ein Tiny House eine Baugenehmigung?
Wenn Sie ein Tiny House bauen, müssen Sie sich immer an die jeweils geltenden Bauvorschriften halten. Sofern es aber auf einem Campingplatz oder einem Freizeitgrundstück steht, sind diese leichter einzuhalten und es wird auch oft kein Bauantrag, sondern nur eine Bauanzeige benötigt.
In den meisten anderen Fällen sieht das anders aus: Dann muss bei der Baubehörde vor Ort für das Tiny House ein Bauantrag gestellt werden, eingereicht von einem Bauvorlageberechtigten und zusammen mit allen erforderlichen Bauvorlagen. Dabei ist auch nachzuweisen, dass das Tiny House gemäß des Gebäudeenergiegesetzes (GEG) gebaut wird.
Wie wird ein Tiny House gebaut?

Wie ein Tiny House gebaut wird, bleibt dem jeweiligen Hersteller überlassen. In den meisten Fällen handelt es sich beim Tiny House um Fertighäuser in Holzrahmenbauweise, die auf ein Anhängergestell montiert oder einer Bodenplatte aufgebaut werden. Andere Materialien wären denkbar, genau wie die Herrichtung von alten Bauwagen oder Containern. Auch massive Tiny Houses oder die Blockbauweise sind möglich. Ebenso können Sie verschiedene Ausbaustufen wählen, wenn Sie ein Tiny House bauen lassen: vom Tiny House mit schlüsselfertiger Übergabe über ein Mikrohaus zum Selbstausbau für Hobby-Heimwerker bis zum Bausatz für ein Tiny House zum selber bauen für Handwerks-Profis ist alles drin.
Dabei ist eines immer gleich, wenn Sie ein Tiny House bauen: der Platz ist äußerst knapp. Alles muss möglichst effizient gestaltet sein, insbesondere die Wärmedämmung: Obwohl mobile Tiny Houses praktisch nur aus Außenwänden bestehen, sind die meisten von ihnen so konzipiert, dass sie rund ums Jahr genutzt werden können und somit die Voraussetzungen des GEG erfüllen. Sie sind hocheffizient gedämmt und beheizbar.
Bei der Wahl des Heizungssystems müssen verschiedene Aspekte berücksichtigt werden: Die Wärme sollte schnell zur Verfügung stehen, gut zu regulieren sein und auch den Fußboden wärmen. Außerdem sollte das System wenig Platz beanspruchen, ausreichend Luftaustausch ermöglichen und mit den Regularien des jeweiligen Stellplatzes kompatibel sein. Möglich sind beispielsweise Luftwärmepumpen, elektrische Infrarotheizungen, Gasheizungen oder Holz- beziehungsweise Pelletöfen.

„Welches Heizungssystem am besten geeignet ist, hängt auch davon ab, wie das Tiny House später genutzt werden soll und wo es stehen wird. Am besten wird die Heizung deshalb individuell geplant.“
Auch mobile Tiny Häuser sind in der Regel so ausgestattet, dass sie am Stellplatz an das lokale Stromnetz sowie an die Wasserzufuhr und Abwasserentsorgung angeschlossen werden können. „Natürlich ist es auch möglich, so ein Haus komplett autark auszurüsten“, sagt Diekmann. „Bei den meisten Stellplätzen ist der Anschluss ans Abwassernetz allerdings obligatorisch.“ Eine Photovoltaikanlage auf dem Dach ist bei mobilen Tiny Häusern weit verbreitet.
Tiny House innen einrichten
Geht es darum, ein Tiny House innen einzurichten, gilt das Gleiche: Auf kleinstem Raum müssen alle Wohnfunktionen abgedeckt werden: Kochen und Essen, Wohnen, Schlafen und der Sanitärbereich, inklusive der benötigten Technik und aller Anschlüsse. Da sind multifunktionale und intelligente Lösungen gefragt und ein genauer Zuschnitt auf die Bedürfnisse des Bewohners. Bei Tiny House Diekmann sind deshalb rund 80 Prozent aller gebauten Tiny Houses Individualplanungen. Stefan Diekmann: „Platz ist im Tiny House ein so knappes Gut, dass der Raum die Prioritäten der Bewohner genau abbilden sollte.“

Große Fenster, Schlafkoje. Der Innenraum einer Igluhut – einer Igluhütte. Foto: iglucamping.com

Die Küche ist gleichzeitig Treppe zum Schlafbereich. Foto: Addictive / iStock.com

So hell und geräumig kann das Innere eines mobile Houses aussehen. Foto: Tiny House Diekmann
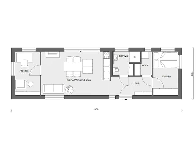
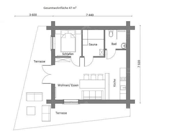
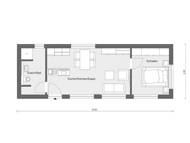
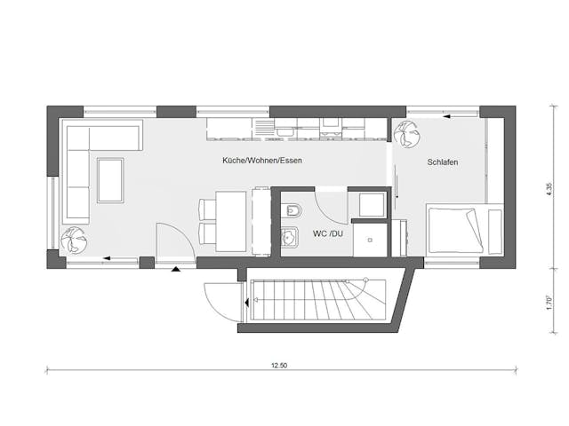
Tiny House Grundrisse
Demzufolge ist, da Sie wahrscheinlich trotz kompakter Wohnfläche nicht auf Komfort verzichten wollen, beim Grundriss fürs Tiny House eine clevere Planung noch wichtiger als bei anderen Häusern. Tiny House Grundrisse können hierbei entweder als Bungalow auf einer Ebene organisiert werden, oder mehrgeschossig zum Beispiel mit einer kuscheligen Schlafgalerie im Dachgeschoss. Unsere Haushersteller haben daher professionelle Tiny House Grundrisse für diverse Hausgrößen ersonnen, die mit ihrer Funktionalität überzeugen.
Wie auch bei größeren Häusern gilt umso mehr für den Grundriss beim Tiny House, dass dieses beispielsweise nach dem Einfall von Sonnenlicht ausgerichtet werden und im Einklang mit dem Bebauungsplan so einfach und alltagstauglich wie möglich aussehen sollte. Da Ihr gesamtes Leben auf meist unter 80 qm stattfindet, wenn Sie ein Tiny House bauen, müssen Sie den vorhandenen Wohnraum so sinnvoll und effizient wie es nur geht ausnutzen, beispielsweise mit einer Schlafnische, Schiebetüren, Stauraum unter Treppen und breiten Fensterfronten für eine optische Vergrößerung.
Tiny House bauen: Kosten & Preise
Wer ein Tiny House bauen lassen möchte, wird bei den Herstellern je nach Ausstattung zu Preisen pro Quadratmeter um die 2.700 Euro fündig. Tiny House Preise sind abhängig von der Größe, der Ausstattung und der Ausbaustufe. Bei größeren Tiny Houses mit schlüsselfertiger Übergabe und neuester Energietechnik ist somit auch die Preisspanne höher.
Für Grundstück, Fundament, Außenanlage und Transport fallen zusätzliche Kosten beim Tiny House an. Dasselbe gilt für Serviceleistungen, die vom Hersteller angeboten werden, wie das Stellen einer Bauvoranfrage oder eines Bauantrags und alle weiteren Baunebenkosten.
Wie bei jedem anderen Wohngebäude empfiehlt sich auch für das Tiny House der Abschluss verschiedener Versicherungen. Brand, Einbruch, Wetterschäden, Transportschäden beim Stellplatzwechsel sowie eine Haftpflichtversicherung für Haus und Grund: Einige wenige Versicherungsanbieter bieten speziell zugeschnittene Pakete für Tiny Houses an. Für etwa 20 Euro pro Monat gibt es einen umfassenden Schutz.
Tiny House bauen: Förderungen
Für Tiny Houses stehen die gleichen Förderungen zur Verfügung, wie bei jedem anderen Wohnhaus auch – mit den gleichen Bedingungen. Ob die immer höheren Anforderungen an den Wärmeschutz und die Energieeffizienz erfüllt werden können, hängt vom einzelnen Produkt ab.
Vor- und Nachteile von Tiny Houses
Ein Tiny House zu bauen hat eine Reihe von ganz spezifischen Vor- und Nachteilen im Vergleich zu normalen Wohnhäusern:
- Tiny Houses sind kleiner. Ob das ein Vor- oder Nachteil ist, liegt in den Augen des Betrachters. Wer auf ein Tiny House umsteigen will, legt in den meisten Fällen Wert auf einen gewissen Minimalismus. Es werden weniger Ressourcen verbraucht und unter Umständen keine Bodenfläche versiegelt.
- Tiny Houses sind günstiger, wenn man die Gesamtkosten betrachtet. Ein Tiny House bekommt man für den Bruchteil der Kosten eines normal großen Hauses.
- Tiny Houses sind oft teurer, wenn man die relativen Kosten betrachtet. Die Kosten pro Quadratmeter können teilweise deutlich über jenen normaler Wohnhäuser liegen.
- Tiny Houses sind mobil. Theoretisch könnte man mitsamt Haus einfach woanders hinziehen.
- Man kann Tiny Houses nur eingeschränkt aufstellen. Es gibt kaum Stellplätze, abgesehen von Campingplätzen und durch eine Baugenehmigung genehmigten Baugrund.
Ist ein mobiles Haus das Richtige für mich?
„Wer herausfinden will, ob das Leben im Tiny House zu einem passt, sollte einfach mal im Urlaub oder bei einem der Hersteller probewohnen,“ rät Regina Schleyer vom Tiny House Verband. Im Internet gibt es zahlreiche Erfahrungsberichte und eine aktive Community. Anregung gibt’s auch auf dem Tiny-House-Festival New Housing, das einmal im Jahr in der Messe Karlsruhe stattfindet. Wer dann ernst machen will mit dem eigenen mobilen Tiny House, sollte sich auf jeden Fall verschiedene Hersteller anschauen.

„Menschen, die sich für das Leben in einem mobilen Haus interessieren, legen meist viel Wert auf Freiheit und Selbstbestimmung. Sie sollten auf jeden Fall mehrere Möglichkeiten prüfen, bevor sie sich für ein bestimmtes Haus entscheiden.“

So könnte eine Tiny-Siedlung-Aussehen. Abgebildet ist allerdings ein Campingdorf zum Probewohnen im Mobi-le House. Foto: www.iglucamping.com
Vielen Häuslebauern ist nicht bewusst, dass, wenn Sie ein Tiny House bauen, alle Vorschriften und bürokratischen Wege wie bei jedem anderen Haus eingehalten werden müssen. Das heißt, egal ob Sie ein Tiny House auf Rädern planen oder Ihr kleines Zuhause auf einem Grundstück fest errichten wollen, Sie benötigen eine Baugenehmigung. Insbesondere wenn Sie Ihr Tiny House selber bauen, muss dieses außerdem alle Vorgaben des Gebäudeenergiegesetzes einhalten. Von diesen Regeln gibt es nur wenige Ausnahmen, zum Beispiel manchmal auf Campingplätzen oder, wenn Sie Ihr Tiny House nur am Wochenende nutzen, in speziell für Ferienhäuser ausgezeichneten Gebieten. Wollen Sie Ihr Tiny House transportieren, muss dieses vom TÜV zugelassen sein oder eine Sondergenehmigung vorliegen.
Unser Tipp: Gerade wenn Sie ein Tiny House schlüsselfertig von einem unserer Anbieter bauen lassen, beraten Sie die firmeninternen Experten zu allen Möglichkeiten für die Nutzung und Aufstellung Ihres Tiny Houses. Außerdem können Sie sich dann bei erfolgter Baugenehmigung darauf verlassen, dass Ihr Tiny House alle baulichen Vorgaben und rechtlichen Aspekte einhält. Haben Sie darüber hinaus bei Ihrem Tiny House den Grundriss gemeinsam mit Ihrem Baupartner sorgfältig geplant, steht Ihrem kleinen Wohnglück nichts entgegen.


























































