Sie wollen ein modernes Haus bauen? Damit kann vieles gemeint sein, etwa der neueste technische Stand, aktuelle Ausstattung oder ein bestimmter Architekturstil. Um das zu erreichen und moderne Hausbau-Ideen wie den Bauhaus- oder Kubusstil umzusetzen, muss man keinen Stararchitekten engagieren oder übermäßig viel Geld ausgeben. Was moderne Häuser heute ausmacht, wie viel moderne Fertighäuser und andere Bauweisen kosten und Weiteres erfahren Sie auf dieser Seite.
Beim modernen Hausbau herrschen klare und gerade Linien und große Glasflächen vor
Kubus- und Bauhausstil sind Sonderformen des Hausbaus in modernem Stil
Auch beim modernen Haus ist ein Preis von 2.700 Euro pro Quadratmeter ohne Nebenkosten, Grundstück und Fundament der Durchschnitt, viel Glas und modernste Haustechnik erhöhen allerdings den Durchschnittspreis
Moderner Hausbau: 5 gestalterische Grundlagen
Beim Hausbau mit moderner Architektur ist nicht nur die Formensprache eines Gebäudes bauliches Stilmittel, sondern auch die Raumaufteilung und die verwendeten Baustoffe.
1.) Moderne Häuser: Formen
Bei modernen Häusern spielen seit einiger Zeit klare Linien eine deutlich wichtigere Rolle als Schnörkel und Verzierungen. Die geradlinige Gestaltung hat einen ganz pragmatischen Grund: Je einfacher eine Form, desto günstiger lässt sie sich grundsätzlich bauen. Die repräsentative Rolle, wenn Sie ein modernes Haus bauen, übernehmen anstelle von dekorativen Details beispielsweise viel Platz, hochwertige Materialien oder eine aufwändige Innenarchitektur – niedrigpreisig ist ein solch beeindruckendes modernes Haus demnach nicht, auch wenn sich natürlich auch ein schickes und kleines modernes Haus preiswerter umsetzen lässt.
2.) Modernes Haus bauen: Größe & Grundriss
Preiseffizienz spielt beim Massiv- und Fertighaus in moderner Ausführung nicht nur bei den Formen eine Rolle, auch bei der Größe. So sind beispielsweise moderne Tiny- und Minihäuser derzeit bei Singles oder Pärchen beliebt, die flexibel wohnen wollen. Viele dieser modernen kleinen Häuser lassen sich sogar leicht abbauen und transportieren. Andere sind von vornherein auf Rädern montiert. In Ballungszentren, in denen Raum knapp ist, müssen intelligente Lösungen gefunden werden, um auf wenig Platz möglichst viel Wohnraum unterzubringen.
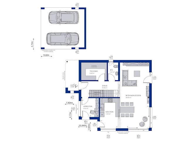
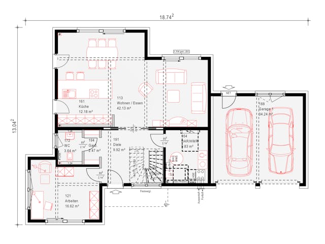
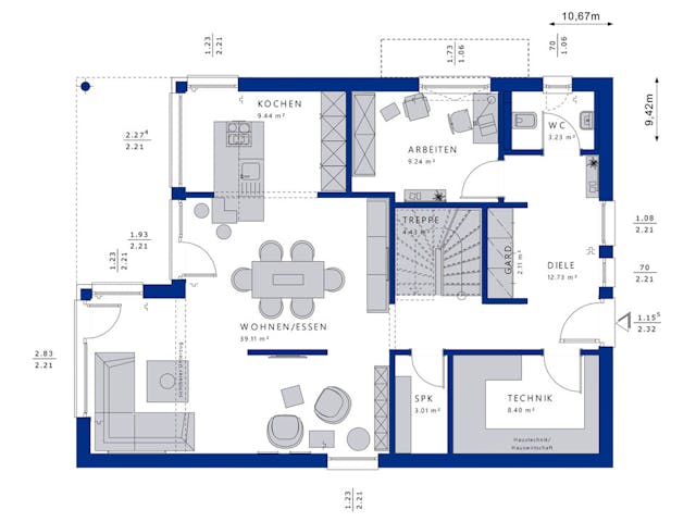
Dem steht ein anderer Trend gegenüber: möglichst große, weite und helle Räume. Dieser Trend hat vordergründig nicht viel mit Sparsamkeit zu tun. Moderne Baustoffe und offene Grundrisse ermöglichen es aber, im Erdgeschoss eines modernen Hauses beispielsweise Küche, Wohn- und Esszimmer in einem einzigen Raum unterzubringen. Das schafft helle Räume und durch die fehlenden Mauern kann Platz gewonnen werden. Doch stellen solch großen Räume hohe Anforderungen an die Statik eines Hauses in modernem Stil. Notfalls müssen dann Stahlträger eingezogen werden – die ein solches Eigenheim teurer machen. Gleichzeitig spart ein für den Hausbau in modernem Stil typischer offener Grundriss aber auch wertvolle Quadratmeter ein.
3.) Massiv- & Fertighaus modern: Baustoffe
Glas, Beton, Stahl: Das sind seit einigen Jahrzehnten die Baustoffe der Wahl für moderne Häuser. Weil ökologisches Bauen immer wichtiger wird, spielen aber auch andere Materialien eine beachtliche Rolle bei modernen Fertighäusern und Massivbauten. Holz wird beispielsweise von vielen Fertighausunternehmen mit moderner Ästhetik eingesetzt, inzwischen auch durch einige Massivhausanbieter. Manche Architekten verwenden besondere Recyclingmaterialien für moderne Häuser. Allerdings sind nicht alle verwendeten Baustoffe auch immer zu sehen.
In der Innenausstattung eines modernen Hauses legen viele Bauherren Wert auf wenige Fugen. Glatte Oberflächen erleichtern grundsätzlich das Putzen. In manchen Fällen geht es aber mehr um eine moderne Optik und weniger um pragmatische Gründe. Denn je nach Material und Verarbeitung erschweren die glatten Oberflächen das Putzen sogar. Das gilt beispielsweise für hochglänzende Küchenfronten oder riesige Fensterscheiben.
4.) Hausbau modern: Energieeffizienz
Wer moderne Häuser umweltfreundlich bauen will, darf aber nicht nur ökologische Baustoffe verwenden, das Objekt sollte auch nicht zu viel Energie benötigen. Energieeffizienz ist aber kein neues Thema, Passivhäuser und ähnliche Konzepte gibt es schon eine Weile, mit dem Gebäudeenergiegesetz (GEG) wird ein energieeffizienter Standard in Wohnhäusern gesetzlich verordnet. Wer mehr machen will, als das Gesetz vorschreibt, kann diverse aktuelle Konzepte ausprobieren und beispielsweise sein modernes Haus über Erdwärme beheizen oder dank Dreifachverglasung und exzellentem Dämmsystem als gläsernes Designobjekt planen.

"Zu einem energieeffizienten modernen Haus gehört auch moderne Technik – die natürlich auch in einem Haus verborgen sein kann, das nach außen eher traditionell und rustikal wirkt, wie ein modernes Landhaus. Zu den moderneren Heiztechniken zählen die Wärmepumpe oder die Brennstoffzelle. Allerdings werden auch herkömmliche Heizsysteme weiterentwickelt. Moderne Gasheizungen sind relativ günstig und hocheffizient und lassen sich auch auf die Nutzung von Wasserstoff umrüsten. Wofür sich ein Bauherr entscheidet, hängt davon ab, worauf er Wert legt: Möglichst wenig Schadstoffproduktion, möglichst wenig laufende Kosten oder möglichst niedrige Anschaffungskosten."
Eine Übersicht über alle Heizsysteme, ihre Vor- und ihre Nachteile bietet dieser Artikel:
Ebenfalls zur hohen Energieeffizienz eines modernen Hauses tragen Lüftungsanlagen und Klimageräte bei. Moderne Häuser müssen absolut Luftdicht sein, um den Vorgaben des GEG gerecht zu werden. Ein Luftaustausch, beispielsweise über die Fenster, findet nicht statt und auch Luftfeuchtigkeit kann kaum entweichen. Deswegen gehört eine Lüftungsanlage – am besten mit Wärmerückgewinnung - zum Standard: Die KfW setzt sie ab einem gewissen Förderniveau voraus, die meisten Hausbaufirmen empfehlen den Einbau.
Ebenfalls interessant dürfte für manche Bauherren moderne und energieeffiziente Kühltechnik sein, gerade in Hinsicht auf die Klimaerwärmung und zu erwartende Hitzeperioden. Praktischerweise kann man die Heiztechnik zum Teil auch zum Kühlen nutzen, etwa bei Wärmepumpen in Kombination mit Fußbodenheizung.

Die Grauwassernutzung und die Verwendung von aufgefangenen Regenwasser ist ein weiteres Konzept, das im modernen Haus für mehr Nachhaltigkeit und Energieeffizienz zum Tragen kommen kann. Viele Hausbesitzer nutzen Grauwasser beispielsweise, um Blumen zu gießen. Wer mag, kann sich aber einen unterirdischen Tank einbauen lassen und das Grauwasser auch zum Wäsche waschen oder für die Toilettenspülung nutzen.
5.) Moderne Häuser: Smart Home & Elektromobilität
Heizung, Lüftung, zum Teil die Wasserversorgung, Stromversorgung sowieso, dazu Unterhaltungs- und Kommunikationstechnik: In einem modernen Haus steckt viel Technik. Und die meisten Geräte lassen sich noch dazu über das Internet steuern, also auch von unterwegs. So lassen sich beispielsweise Fenster und Türen per Handy öffnen und verriegeln. Das smarte Zuhause registriert aber auch, wenn der Wecker klingelt und macht rechtzeitig die Heizung im Bad und die Kaffeemaschine in der Küche an. Hierunter fällt auch eine Wallbox in der Garage, um über Nacht das Auto mit Strom aufzuladen.
Mit dem Katalog-Assistenten in nur 2 Minuten passende Hauskataloge finden.
Jetzt Bauprojekt startenModernes Haus bauen: Kosten
Ein modernes Haus ist nicht per se günstiger oder teurer als ein Eigenheim in einem anderen Stil und hat damit einen Durchschnittspreis von 2.700 Euro pro Quadratmeter ohne Grundstück, Nebenkosten und Fundament. Preislich kann die Effizienz bei der Gestaltung vorteilhaft sein. Wer mit weniger Platz und weniger Energie auskommt, kann nicht nur beim Hausbau in modernem Stil, sondern auch auf Dauer ebenfalls Geld sparen. Wer allerdings die absolut neueste Technik und revolutionäre Materialien möchte, muss damit rechnen, dass diese noch nicht für den Massenmarkt produziert werden – und deswegen noch relativ teuer oder auch noch nicht ausgereift sind. Auch der Einsatz von viel Glas kann bei modernen Fertighäusern die Preise in die Höhe schnellen lassen.
Generell gilt allerdings: Wer sein modernes Haus energieeffizient baut, muss zwar mit oftmals höheren Anschaffungskosten rechnen, kann aber langfristig Energiekosten sparen und außerdem von Förderungen profitieren.
Welche Förderungen es gibt und wie Bauherren diese beantragen können
Beim Hausbau beruht moderne Architektur auf Einfachheit, Geradlinigkeit und viel Licht durch große Fenster- und Glasflächen. Kubische Formen wie beim Bauhausstil sind typisch, aber nicht obligatorisch – denken Sie nur an den Hausbau mit modernem Satteldach, welches dann meist bündig mit den Außenwänden abschließt. Gerade besonders im Trend liegt das moderne Holzhaus, das einen traditionellen Werkstoff mit einer aktuellen Formgebung vereint. Moderne Fertighäuser und Massivbauten zeichnen sich außerdem durch neueste Technologien und damit besonders hohe Energiestandards aus.
Die aktuelle und hochwertige Ausstattung hat aber natürlich auch Ihren Preis: Je energieeffizienter Ihr modernes Haus ist und je mehr technische Spielereien Sie sich wünschen, desto höher die Baukosten. Auf Dauer lassen sich so allerdings die Verbrauchskosten senken. Als weiterer Bonus spart der offene Grundriss, der kennzeichnend für den modernen Hausbau ist, bares Geld beim zukünftigen Eigenheim. Denn jeden zusätzlichen umbauten Quadratmeter müssen Sie natürlich auch zusätzlich bezahlen.

















































































