Gute, funktionierende Grundrisse zu entwickeln ist die Aufgabe von Profis. Dennoch gibt es bewährte Grundregeln, was Anordnung, Größe und Zuschnitt der Räume betrifft, mithilfe derer sich auch Laien Gedanken machen können.
Die Erstellung des Grundrisses ist eine der wichtigsten Aufgaben bei der Planung eines Hauses. Der Grundriss beeinflusst nicht nur die spätere Nutzung des Hauses, sondern auch sein äußeres Erscheinungsbild. Ein paar Ideen sind schnell zu Papier gebracht, damit der Grundriss später aber funktioniert, sind schon einige Gedanken mehr notwendig.
Grundrissplanung: Von Raum zu Raum
Vor dem Grundrissentwurf sollten sich Bauherren fragen, welche Räume sie benötigen: Wie viele Kinder gehören zur Familie? Ist ein Arbeitszimmer fürs Home-Office erforderlich? Kommen häufig Freunde zu Besuch zum gemeinsamen Kochen? Diese Fragen sind wichtig, denn viele Bauherren überschätzen Ihren Platzbedarf – und wer zu groß baut, baut zu teuer. Eine vierköpfige Familie kann zum Beispiel mit einer Wohnfläche von 110 bis 120 Quadratmetern bei zweigeschossiger Bauweise gut auskommen und dabei komfortabel wohnen. Weniger ist häufig mehr, und das Gefühl von räumlicher Weite hängt nicht nur von den verfügbaren Quadratmetern ab, sondern auch von sinnvollen Raumanordnungen und -zuschnitten.
Ein klarer, schnörkelloser Grundriss funktioniert im Alltag am besten, kann flexibel gestaltet werden und bietet auch bei begrenzter Fläche ausreichend Platz. Dagegen kosten verwinkelte Bereiche und Nischen wertvolle Fläche und erschweren das Aufstellen von Möbeln. Annähernd quadratische Räume ohne Rücksprünge bieten die meisten Möglichkeiten zum Möblieren.
Wohnzimmer
Zu einem behaglichen Wohngefühl in den Aufenthaltsräumen trägt unter anderem ein ausgewogenes Verhältnis zwischen Glasflächen und geschlossenen Wandflächen bei. Großflächige Verglasungen sehen zwar gut aus, gehen jedoch häufig zu Lasten geschützter Bereiche. Ein gewisser Anteil geschlossener Wandflächen kann ein Gefühl von Geborgenheit vermitteln. Außerdem erschweren große Glasflächen das Platzieren von Möbeln.

Hier ist genügend Platz an den Wänden, um Möbel zu stellen. Foto: Inter IKEA Systems B.V.
Schlaf- und Kinderzimmer
In Schlaf- und Kinderzimmern lassen raumhohe Einbauschränke, die von Wand zu Wand reichen, den Raum optisch größer wirken, während Einzelschränke und -regale optisch in den Raum ragen und unter Umständen zu kaum nutzbaren Restnischen führen.
Kleine Kinder brauchen Platz zum Spielen, während sie sich dabei gerne in der Nähe der Eltern aufhalten. Ältere Kinder hingegen schätzen ihr eigenes Reich, in das sie auch Freunde einladen können. Leider werden Kinderzimmer häufig kleiner als Elternschlafzimmer geplant, und manchmal fällt sogar das Badezimmer größer als das Kinderzimmer aus. Hier sollte man ganz am Anfang der Planung klare Prioritäten setzen.
Küche und Bad
Küchen und Bäder sollten stets übereinander oder nebeneinander angeordnet werden, damit die nötigen Wasserleitungen wirtschaftlich in einer Wand verlegt werden können. Kurze Wege von Garage oder Haustür zur Küche sorgen dafür, dass die Einkäufe nicht unnötig weit getragen werden müssen.
Windfang
Der Eingangsbereich ist die Visitenkarte des Hauses. Ist die Haustür von außen gut erkennbar und bequem zugänglich, wirkt das Haus einladender, als wenn man den Hauseingang zum Beispiel nur über den Carport erreichen kann.
Wenn im Windfang oder in der Eingangsdiele mindestens zwei Personen gleichzeitig Schuhe und Jacken ablegen können, ist das bequemer und alltagstauglicher, als wenn sie durch das Nadelöhr einer minimal bemessenen Garderobe das Haus nur einzeln betreten können. Ein bis zwei Quadratmeter mehr im Eingangsbereich vermeiden Stress beim Ankommen und Gehen und lassen sich durch eine gute Grundrissplanung an anderer Stelle leicht wieder kompensieren.
Einfluss des Grundstücks auf den Grundriss

Dieser Hang ist besonders steil, doch auch flachere Hänge beeinflussen den Hausbau stark. Foto: Hermann / stock.adobe.com
Neben eher grundsätzlichen Überlegungen spielen aber auch einige spezifische Einflüsse eine wichtige Rolle, vor allem das Grundstück.
Ob dicht angrenzende Nachbarhäuser, Hanglagen oder schwierige Bodenverhältnisse, die vielleicht gegen einen Keller sprechen – all dies muss bei der Planung eines Grundrisses berücksichtigt werden. Des Weiteren kann der Bebauungsplan zum Beispiel die Hausgröße, die Anzahl der erlaubten Stockwerke oder die Dachform vorgeben.
Nicht zuletzt spielen die Himmelsrichtungen beim Grundrissentwurf eine entscheidende Rolle. Wenn das Haus von Norden oder von Osten erschlossen wird, können auf der Nord- und Ostseite die Nebenräume liegen und als Klimapuffer dienen, während die ruhige Südseite den Aufenthaltsräumen vorbehalten ist und große Fenster dort zum passiven Solarenergiegewinn beitragen können. Ist die Erschließung jedoch nur von Süden möglich und liegt der ruhige Bereich des Grundstücks nach Norden, muss ein ausgeklügelter Grundriss für genügend Ruhe, Sonne und Tageslicht in den Wohnräumen sorgen.
Bei Hanglagen ist es eine besondere Herausforderung, alle Wohnräume möglichst gut zur Sonne auszurichten. Hanghäuser bieten aber auch Chancen, wie freie Ausblicke in die Landschaft. Kompliziert wird es, wenn der Hauseingang auf der Talseite liegt, sodass die Raumaufteilung dem Hang nach oben folgt, und ganz besonders, wenn der Hang auch noch von Norden nach Süden hin ansteigt.
Haus am Hang mit Erschließung von oben

Grundriss: Architekten Ronacher ZT GmbH

Grundriss: Architekten Ronacher ZT GmbH
Idealerweise fällt wie in diesem Beispiel der Hang nach Süden hin ab, weshalb sich die mittige offene Treppe mit Panoramablick durch raumhohe Glasflächen anbietet. Die Treppe teil den gesamten Grundriss in zwei gleichgroße Hälften. Im Obergeschoss sind das verschiedene Privaträume, im Gartengeschoss liegen auf der einen Seite die Küche mit Essplatz, und auf der anderen Seite der Wohnbereich. Über Eck durchgehende Wandflächen im Wohnraum schaffen einen geborgenen Platz für die Sitzgruppe bei gleichzeitigem Ausblick über große Glasflächen. Im Hang sind die Nebenräume mit Gartenzugang untergebracht.
Haus am Hang mit Erschließung von unten

Grundriss: Arc Architekten Partnerschaft

Grundriss: Arc Architekten Partnerschaft
Im von Osten nach Westen ansteigenden Hang sind in der unteren Ebene - der Eingangsebene - Nebenräume und Privaträume untergebracht. Eine Treppe führt direkt nach oben in den offenen Wohnraum. Da von hier aus auch Arbeitszimmer und Gästebad erschlossen werden, fallen oben keine Verkehrsflächen an. Eine Terrasse nach Westen und eine Loggia nach Süden bieten trotz des ansteigenden Hangs viel Sonne und abwechslungsreiche Ausblicke. Eine halbhohe, mittig angeordnete Wand teilt die Sitzgruppe im Wohnbereich von Küche und Essplatz ab. Der große Holzschuppen hinter dem Carport dient als Lager und Kellerersatz.
Einfluss des Haustyps
Freistehende Einfamilienhäuser bieten bei der Grundrissgestaltung am meisten Flexibilität, da alle Seiten belichtet werden können. Dafür ist allerdings ein entsprechend großes Grundstück erforderlich.
Eingeschossige Häuser auf ebenen Grundstücken sind für eine barrierefreie Gestaltung ideal, zumal sie von allen Räumen einen direkten Zugang ins Freie bieten können. Allerdings ist bei solchen Bungalows der Anteil von Grundfläche und Außenwandflächen im Vergleich zum beheizten Raumvolumen relativ hoch, was nicht nur die Kosten für Erdaushub und Bodenplatte erhöht, sondern auch zu mehr Wärmeverlusten über die Außenwände führt.
Doppelhaushälften schränken die Grundrissgestaltung etwas ein, da auf einer Hausseite keinerlei Lichteinfall möglich ist. Bei Reihenhäusern ist das gleich auf zwei Hausseiten der Fall.
Kleine Häuser – Platz gewinnen durch clevere Lösungen

Tiny Houses brauchen besonders platzsparende Lösungen. Davon kann man sich auch in nicht ganz so kleinen Häusern inspirieren lassen. Foto: ppa5 / stock.adobe.com
Gerade in kleinen Häusern mit begrenzter Wohnfläche ist es wichtig, die vorhandene Fläche optimal zu nutzen, um wertvolle Quadratmeter für die Aufenthaltsräume zu gewinnen.
Viel Abstellraum bieten einfache unbeheizte Holzschuppen, die zum Beispiel an die Garage grenzen können. Für kleinere Abstell- oder Speisekammern eignet sich auch der Platz unter der Treppe. Dieser Bereich kann auch für maßgeschneiderte Einbauschränke mit integrierten Schubläden oder Bücherregalen genutzt werden. Sogar ein Gäste-WC kann unter der Treppe Platz finden.
Moderne Heizungsanlagen, wie Wärmepumpen oder Brennwertthermen, benötigen nicht viel Platz. Ist der Technikraum groß genug, können dort auch Waschmaschine und Trockner, Bügelbrett, Putzeimer, Gummistiefel oder Ablageregale untergebracht werden. Mit Fenster und Gartenzugang wird aus einem Technikraum ein gut nutzbarer Multifunktionsraum.
Raumhohe Einbauschränke können Trennwände zwischen Flur und Kinder- oder Schlafzimmer ersetzen und so konzipiert werden, dass sie sich von beiden Seiten öffnen lassen. Im Erdgeschoss kann statt einer Trennwand ein raumhoher Einbauschrank oder eine einläufige Treppe mit integriertem Schrank Wohnraum, Eingangsbereich und Nebenraumzone voneinander abgrenzen und ein Plus an Stauraum bieten.
Grundrisstypen
Die meisten Grundrisse verwenden ganz typische Elemente und können so in verschiedene Typen untergliedert werden.
Flurtyp
Wenn die Räume einzeln über einen Flur erschlossen werden, sorgt das für mehr Privatsphäre der Bewohner als wenn alle Raumbereiche offen ineinander übergehen. Manch einer schätzt etwa einen abgetrennten Raum fürs Lesen, Musizieren oder Fernsehen. Führt die Treppe vom Flur aus ins Obergeschoss, bleibt dieses räumlich und akustisch unabhängig vom Erdgeschoss, was gerade bei Familien mit heranwachsenden Kindern Vorteile bietet. Wenn der Flur im Obergeschoss etwas breiter als nötig ist und über ein Fenster natürlich belichtet wird, wertet ihn das zu einem zusätzlichen Aufenthaltsbereich auf, der sich ganz unterschiedlich nutzen lässt: als Spielflur, als Arbeitsplatz mit Schreibtischnische oder als Bibliothek mit Leseecke.
Eingeschossige Bauweise mit L-förmigen Riegeln

Grundriss: Innauer-Matt-Architekten ZT
Durch die L-Form wird das Haus auf der Nord- und Ostseite von der Straße abgeschirmt und im Grundriss klar in zwei Zonen gegliedert: Ein Riegel enthält die am Flur aufgereihten Privaträume, der andere den großen, offenen Wohnbereich mit Küche, an die eine kleine Speisekammer grenzt. An der Schnittstelle liegt der Eingang, außen von einem tiefen Vordach geschützt, sowie ein Arbeitszimmer. Alle Wohn- und Schlafräume öffnen sich zur vom Gebäude eingefassten Terrasse.
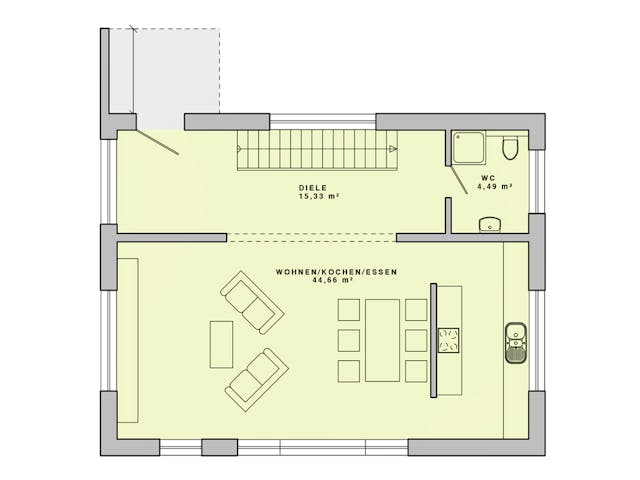
Offener Grundriss
Bei einem offenen Grundriss gehen mehrere Raumbereiche ineinander über, wodurch weniger Wandflächen und Türen anfallen. Ein typisches Beispiel ist der kombinierte Koch-Ess-Wohnbereich. Handelt es sich dabei um einen langen, durchgehenden Raum, blickt man vom Wohnzimmersofa allerdings auf die eventuell unaufgeräumte Küchenanrichte. Bei einem L-förmigen Wohnraum kann man dagegen die Küche um die Ecke, vom Wohnbereich aus blickgeschützt, jedoch offen zum Essplatz hin anordnen.
Eine Variante des offenen Grundrisses stellt die Raum-zu-Raum-Erschließung dar, bei der Verkehrsflächen so gut wie ganz wegfallen. Schiebetüren erlauben dann, das Erdgeschoss zu einem großen Raum zu öffnen oder bei Bedarf Räume abzuteilen. Offene Grundrisse sind kommunikativ, vermitteln räumliche Großzügigkeit und helfen, Kosten zu sparen. Sie bieten allerdings kaum Rückzugsmöglichkeiten, und auch akustisch sind alle Bereiche, unter Umständen auch das Obergeschoss, miteinander verbunden. Das gleich gilt für Gerüche aus der Küche.
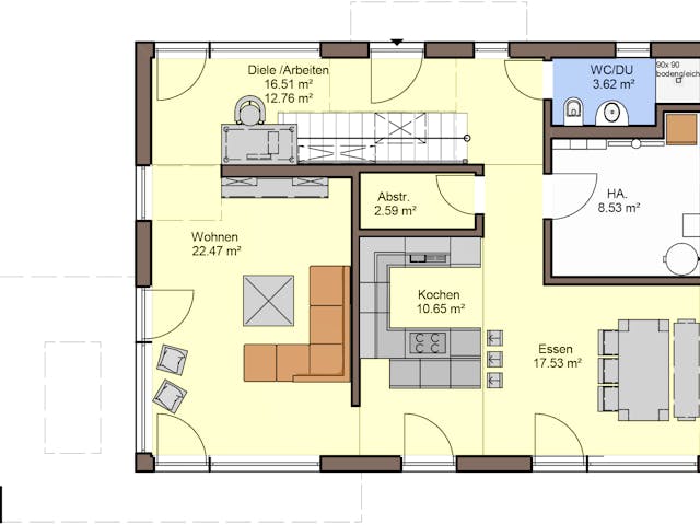
Offener Grundriss mit Treppe im Windfang

Grundriss: studio lot, Architektur/Innenarchitektur

Grundriss: studio lot, Architektur/Innenarchitektur
Im Erdgeschoss sorgt die L-Form des großen, offenen Wohnraums sowie eine halbhohe Trennwand mit integriertem Kamin für eine lockere Abfolge von kommunikativen und ruhigeren Bereichen. Die abgeschrägte Außenwand folgt der Grundstücksgrenze. Als Abschluss des Flurs im Obergeschoss bietet ein Panoramafenster mit einem tiefen, beheizten Sitzrahmen aus Holz nicht nur den Kindern einen besonderen Rückzugsort mit Fernblick.
Flexibler Grundriss
Um den Grundriss an einen späteren Bedarf anpassen zu können, beispielsweise wenn sich die Wohnsituation ändert, weil die Kinder ausziehen, die eigenen Eltern einziehen oder weil ein Büro eingerichtet werden soll, bieten sich flexible Grundrisslösungen an. Dazu gehört, dass Aufenthaltsräume ähnliche Größen aufweisen, sodass aus einem oder zwei zusammengelegten Kinderzimmern ein Wohnraum oder aus einem Büro ein Schlafzimmer und umgekehrt werden kann. Um Erdgeschoss und Obergeschoss als eigenständige Wohnungen nutzen zu können, muss die Treppe im Eingangsbereich angeordnet sein, idealerweise direkt an der Fassade. Dann kann man einfach eine Trennwand einziehen, um Treppe und Erdgeschossdiele voneinander zu trennen.
Damit das Erdgeschoss später als eigenständige Wohnung funktionieren kann, sollte dort das Gäste-WC von vornherein mit Dusche geplant werden. Aus Gästezimmer oder Büro wird dann das Schlafzimmer mit Doppelbett und Schrank. Diese Möblierung sollte von Anfang an bei der Planung von Raumgröße und Fensteranordnung mitgedacht werden. Auf diese Art flexibel geplante Grundrisse erhöhen den Wiederverkaufswert eines Hauses.
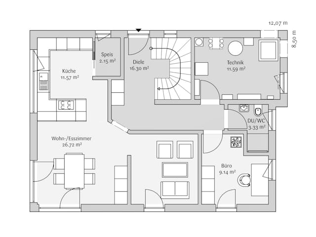
Flexibler Grundriss mit Mittelflur

Grundriss: fabi architekten bda

Grundriss: fabi architekten bda
Klar zonierter Grundriss mit Nebenraumzone im Norden und Wohnräumen im Süden. Durch die Lage der Treppe am Eingang und das zusätzliche Zimmer mit angrenzendem Bad kann das Haus leicht in zwei separate Wohnungen aufgeteilt werden. Im Erdgeschoss schirmt eine halbhohe Trennwand die Küchenanrichte vom Wohnraum ab. Die Räume im Obergeschoss haben ähnliche Größen und sind nur durch leichte Trennwände unterteilt, sodass sie sich leicht umnutzen lassen.
Wie wird die Erstellung eines Grundrisses beim Architekten abgerechnet?
Die Planung eines Grundrisses kann frei verhandelt und abgerechnet werden. Als Orientierung kann die HOAI (Honorarordnung für Architekten und Ingenieure) dienen. Nach dem Ermitteln der Grundlagen, zu denen unter anderem die Größe des Gebäudes, die Ansprüche des Bauherrn und die Vorgaben der Bauordnung gehören, erfolgt ein Vorentwurf, der bereits einen tragfähigen Grundriss als Diskussionsgrundlage liefern kann. Anschließend folgt die schon sehr genaue und detaillierte Entwurfsplanung. Für die dann folgenden Bauantragsplanung muss der Grundriss bereits feststehen. Insofern umfasst die Erstellung eines Grundrisses mindestens die Leistungsphasen 1 bis 2 der HOAI, unter Umständen auch die Phasen 1 bis 3.
Beispielrechnung:
- Bausumme (reine Bauwerkskosten): 300.000 Euro.
- Honorar eines Architekten, der den gesamten Bau begleitet: etwa 15 Prozent der Bausumme, also 45.000 Euro.
- Die Leistungsphasen 1 und 2 umfassen 9 Prozent des Architektenhonorars, also etwa 4.000 Euro.
- Die Leistungsphasen 1 bis 3 umfassen 24 Prozent des Architektenhonorars, also etwa 11.000 Euro.








































