Schneller kommen Sie nicht zum Eigenheim: In großen Produktionshallen werden für den Bau eines Fertighauses computergesteuert standardisierte oder auch individuell vorgeplante Bauelemente hergestellt, Fenster, Türen sowie Anschlüsse für Elektrik und Installationen werden dort vormontiert. Auf der Baustelle werden die einzelnen Bauteile Ihres Fertighauses dann zusammengesetzt. Die Möglichkeiten, ein Fertighaus zu bauen, sind hierbei quasi unbegrenzt, Sie können zwischen unterschiedlichen Ausführungen, Ausbaustufen, Stilen, Hausgrößen, Grundrissen und vielem mehr frei wählen.
Die einfachste Art, den Traum vom eigenen Zuhause zu verwirklichen, ist hierbei ein schlüsselfertiges Fertighaus. Auf individuelle Lösungen müssen sie dabei nicht verzichten.
Welche Anpassungsoptionen Sie haben, welche Fertighaus-Preise und Kosten zu erwarten sind und wie Sie hier sparen können, welche Fertighaus-Hersteller es gibt und welche Vorteile die Fertigbauweise hat, erfahren Sie auf dieser Seite.
Bau eines Fertighauses: Das Wichtigste in Kürze
Beim Hausbau eines Fertighauses werden Wände und andere Bauteile in der Produktionsstätte vorgefertigt und dann auf Ihrem Baugrundstück zusammengebaut
Fertighaus-Preise liegen im Schnitt bei 2.700 Euro pro Quadratmeter ohne Grundstück, Fundament und Nebenkosten
Wenn Sie ein Fertighaus bauen, bieten die meisten Hersteller vielfältige Individualisierungsmöglichkeiten an
Fertighaus-Bau: Mehr als nur Holzständerbauweise
Generell spricht man dann von Fertigbau, wenn die Hauselemente vorgefertigt werden und erst vor Ort zusammengesetzt werden. Auch Garagen und Keller können in Fertigbauweise entstehen.
Die wichtigsten Bauweisen für ein Fertighaus sind:
- Holzrahmenbau und Holztafelbau: Bei beiden Bauarten besteht die tragende Konstruktion für Ihr Fertighaus aus einem massiven Holzgerüst, dessen Zwischenräume mit Dämmung ausgefüllt werden, und das von beiden Seiten mit Holzwerkstoff oder Gipsplatten beplankt wird.
- Skelettbauweise: Neben Holzrahmen- sind auch andere Holzskelettbauweisen denkbar, typisch etwa bei einem Fertighaus mit Fachwerk.
- Strohballenbauweise: Dabei handelt es sich um eine Skelettbauweise mit einem Rahmen üblicherweise aus Holz, der mit Stroh gefüllt wird. Auch diese Fertighaus-Wände können in der Fabrik vorgefertigt werden.
- Holzblockbauweise: Die Wände bestehen aus Rund- oder Kantblockbohlen. Sind diese Bohlen dick genug, wird kein weiterer Wärmeschutz benötigt. In den meisten Fällen werden die Häuser allerdings zweischalig mit Zwischendämmung angelegt. Solche Fertighaus-Blockhauswände werden zum Teil erst auf der Baustelle zusammengesetzt. Dann handelt es sich allerdings nicht mehr um eine Fertigbauweise, sondern um eine Holzmassivbauweise.
- Massivfertigbauweise: Großflächige Mauerelemente aus Massivmaterialien wie Ziegel, Beton oder Leichtbetonsteinen werden in der Fabrik vorgefertigt und wie Holzbauteile auf dem Bauplatz Ihres Fertighauses zusammengesetzt.
Der Begriff Fertighaus beschreibt folglich keine eindeutige Bauweise. Gleichbleibend ist lediglich, dass die einzelnen Bauelemente, also ganze Wände und Geschossdecken in der Fabrik vorgefertigt, zum Bauplatz transportiert und dort zusammengesetzt werden. Dem fertigen Haus sieht man von außen nicht an, in welcher konkreten Bauweise es entstanden ist, üblicherweise bestehen Fertighäuser aber aus Holz und werden meist in Holztafelbauweise hergestellt..
Hausbau Fertighaus: Vor- und Nachteile
Die Vorteile eines Fertighauses
Die industrielle Vorfertigung der einzelnen Bauteile bringt beim Fertighaus einige Vorteile mit sich:
Schnelle Bauzeit und pünktlicher Einzug
Ist die Baustelle erst eingerichtet und die Bodenplatte gegossen, steht der Rohbau meist innerhalb von zwei Tagen, dann folgt auch schon der Innenausbau, der allerdings mehrere Wochen in Anspruch nehmen kann. Viele Fertighaus-Hersteller garantieren eine Fertigstellung innerhalb eines gewissen Zeitraums.
Erprobte Standards und Abläufe
Wer mit einem Fertighaus-Anbieter baut, entscheidet sich für gewisse Standards und Abläufe. Das beginnt bereits in der Planungsphase, in der ausgehend von gewissen Haustypen individuelle Wünsche geplant werden. Oft gibt es für die verschiedenen Möglichkeiten und architektonischen Details beim Fertighaus Preislisten. Die Vorstellungskraft der zukünftigen Bauherren wird nicht überstrapaziert, weil es von den meisten Details Fotos gibt oder sie in einem Musterhaus umgesetzt wurden. Die Baufirma hat außerdem meist sehr viel Erfahrung mit der immer gleichen Bauweise, ähnlichen Haustypen und den Handwerksunternehmen, mit denen sie zusammenarbeiten.
Die Nachteile eines Fertighauses
Individualisierung gegen Aufpreis
Zwar gibt es im Fertigbau standardisierte Elemente für bestimmte Typenhäuser. Das heißt aber nicht, dass keine Sonderwünsche oder gar individuelle Lösungen möglich wären. Die meisten Fertighaus-Hersteller können gegen Aufpreis so gut wie alle Kundenwünsche und Grundstückseigenheiten berücksichtigen, allerdings nicht in ganz dem gleichen Maße wie bei einem Massivhaus. Besonders günstige Fertighaus-Preise lassen sich aber nur in der Standardausführung realisieren, mehr dazu weiter unten. Gleiches gilt aber übrigens auch für die Massivbauweise, denn auch hier kosten Extrawünsche.
Wiederverkaufswert eventuell geringer
Will ein Bauherr sein Eigenheim viele Jahre später verkaufen, erzielt er mit einem Fertighaus oder Holzhaus möglicherweise schlechtere Preise, als mit einem Haus in Massivbauweise. Das liegt vor allem daran, dass Käufer oftmals niedrigere Preise für Fertighäuser bezahlen. Warum das so ist, darüber kann man nur mutmaßen. Möglicherweise halten sich hartnäckig Vorurteile über die mangelnde Qualität von Fertighäusern, die Preisentwicklungen auf dem Markt nachhaltig beeinflussen können. Ein Rückschluss auf die Qualität oder Lebensdauer eines Fertighauses lässt sich daraus allerdings nicht schließen. Es gibt allerdings für die späteren Marktwerte auch noch nicht ausreichend Erfahrungswerte. Die moderne und hochwertige Fertigbauweise gibt es erst seit den 1990er-Jahren. Letzten Endes entscheiden aber hauptsächlich die Ausstattung, Größe, Energieeffizienz und vor allem die Lage eines Fertighauses, welchen Preis es beim Wiederverkauf erzielen kann.
Fertighäuser: Verschiedene Ausführungen
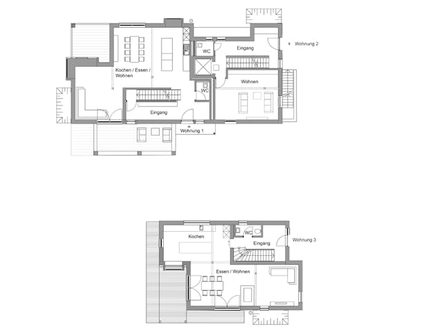
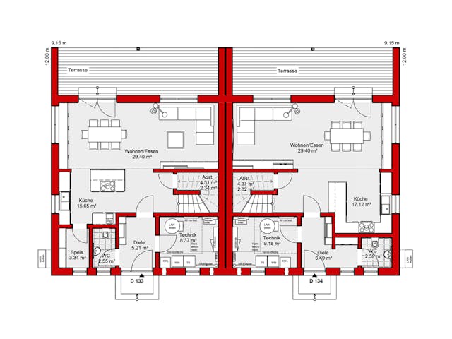
Fertighaus mit Einliegerwohnung, als Einfamilienhaus, Doppelhaus oder Mehrfamilienhaus
Fertighäuser gibt es bei den verschiedenen Fertighaus-Anbietern für im Grunde alle Nutzungsformen: Das klassische Fertighaus ist ein Einfamilienhaus, doch lassen sich auch Doppelhäuser, Zweifamilienhäuser und sogar Mehrfamilienhäuser umsetzen, genauso wie Reihenhäuser oder auch das Fertighaus mit Einliegerwohnung. Beim Fertighaus mit Einliegerwohnung können Sie die separate Wohneinheit entweder vermieten oder beispielsweise ältere Verwandte in unmittelbarer Nähe unterbringen.
Fertighaus als Einfamilienhaus
Fertighaus bauen als Doppelhaus
Fertighaus mit Einliegerwohnung oder als Zweifamilienhaus
Fertighaus-Typen: Bungalow, Stadtvilla oder Fachwerk
Grundsätzlich gilt: Kaum ein Haustyp lässt sich nicht als Fertighaus umsetzen. Beim Hausbau ist ein Fertighaus als Bungalow, Stadtvilla oder auch als modernes Fachwerkhaus möglich, genauso wie als gemütliches Ferienhaus oder kosteneffizientes Mehrgenerationenhaus. Der Bau mit vorgefertigten Elementen erlaubt gleichfalls die komplett freie Planung als ausgefallenes Architekten-Fertighaus oder exklusives Atriumhaus.
Fertighaus: Hausbau als Bungalow
Fertighaus-Bau als Stadtvilla
Fachwerk-Fertighaus
Fertighaus bauen nach Wohnfläche
Generell können Sie, was die Wohnfläche angeht, ein kleines Fertighaus ebenso gut planen wie ein großes, wobei kleine Fertighäuser gerade besonders im Trend liegen, denken Sie etwa an das Tiny House oder Minihaus. Denn ein Fertighaus mit kleiner Wohnfläche fällt selbstverständlich preiswerter aus als ein ansonsten baugleicher Fertigbau mit mehr Quadratmetern. Aber auch große Fertighäuser über 150 qm sind selbstverständlich möglich und kommen insbesondere für kinderreiche Familien oder auch den Luxusbereich in Frage, ob als klassischer 1,5-Geschosser ober als extravagantes kubisches Fertighaus mit drei Etagen.
Kleine Fertighäuser bis 100 qm
Fertighaus 150 qm
Fertighaus groß
Bau Fertighaus nach Stil und Dachform
Oft haben sich Fertighaus-Hersteller auch auf einen bestimmten Stil festgelegt. Wer ein schwedisches Holzhaus will, muss sich üblicherweise an einen solchermaßen spezialisierten Fertighaus-Anbieter wenden.
Gleiches gilt, wenn Sie sich ein mediterranes Fertighaus wünschen, oder einen modernen Fertigbau mit viel Glas im Stil des Bauhaus oder als Kubushaus.
Und selbstverständlich können Sie auch bei der Dachform Ihres Fertighauses frei wählen, vom klassischen Satteldach über das begrünbare Flachdach bis hin zum praktischen Pultdach oder dem besonders wetterfesten Walmdach.
Typenhäuser: Varianten von Fertighäusern
Beim Fertighaus-Bau wird oftmals nach einheitlichen Bauplänen und mit vorgegebenen Grundrissen gearbeitet. Diese Standardisierung beschleunigt den Bauablauf und dadurch auch die Fertigstellung. Zudem sind solche Standardausführungen oft günstiger als Fertighäuser mit individueller Anfertigung.
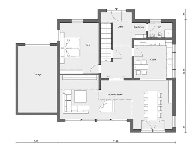
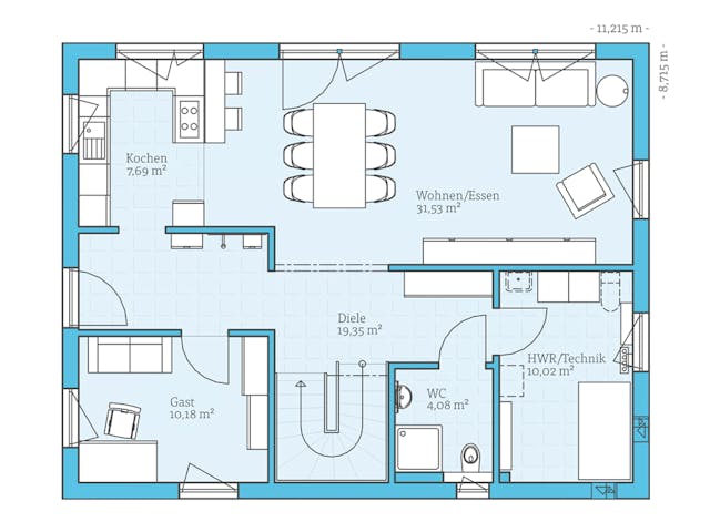
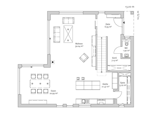
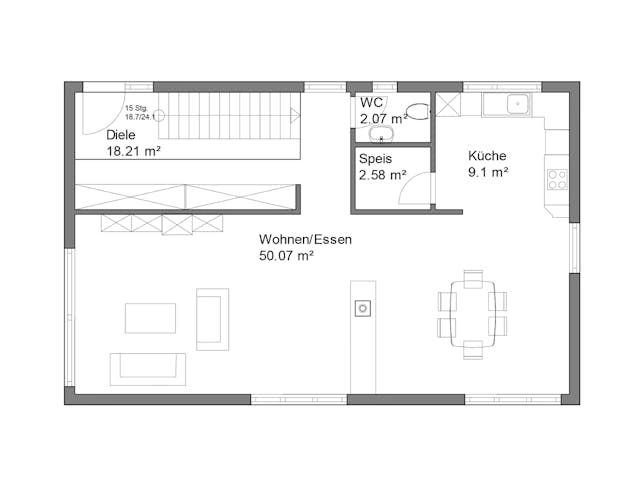
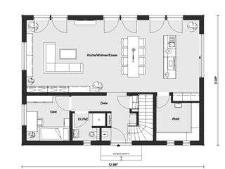
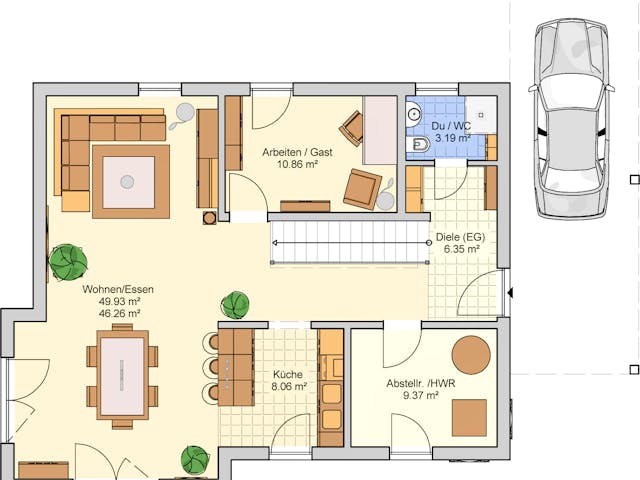
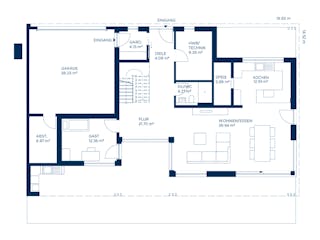
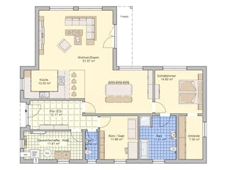
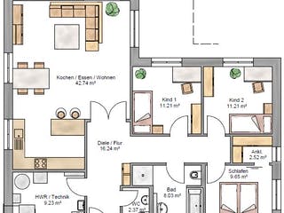
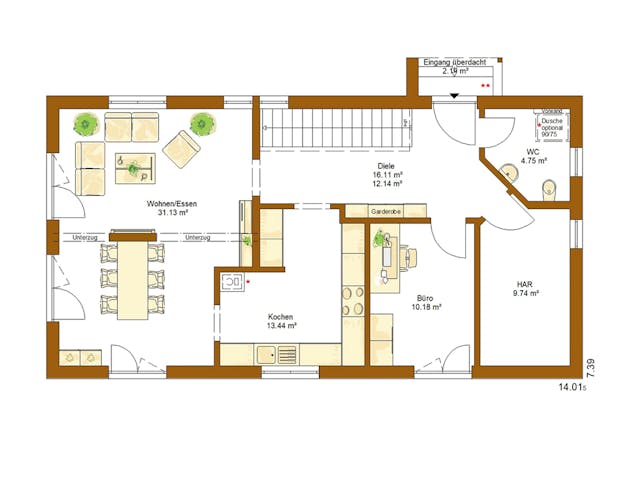
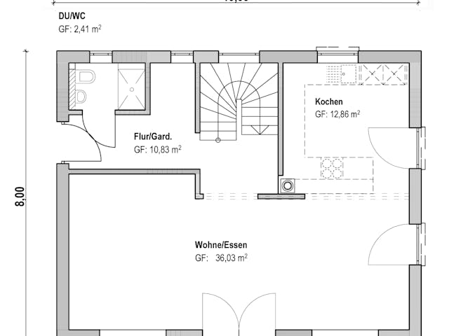
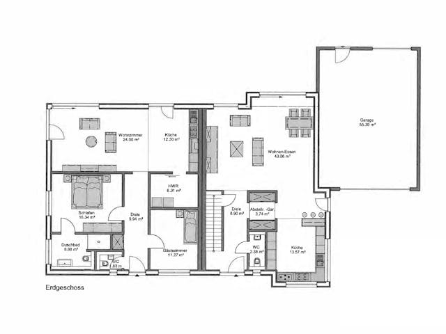
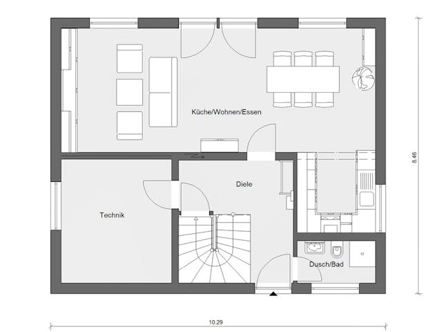
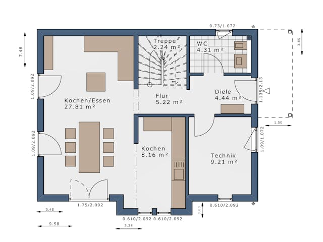
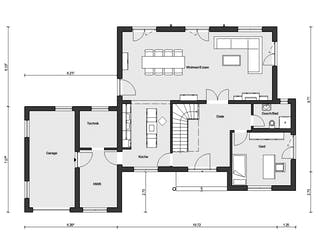
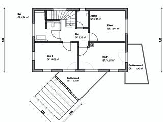
Fertighaus-Grundrisse: Erprobt & personalisierbar
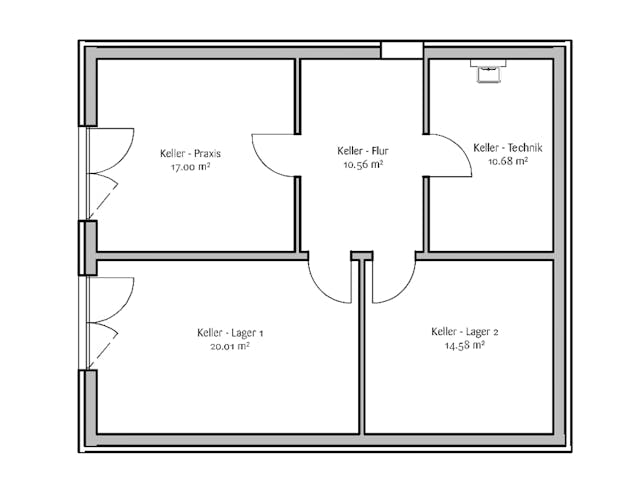
Solche Typenhäuser besitzen üblicherweise keinen Keller – unabhängig ob es sich um ein Fertig- oder ein Massivhaus handelt. Bauherren können diesen zwar einplanen lassen, müssen sich oftmals aber selbst um die Vergabe der Arbeiten kümmern. Dagegen lassen sich viele Typenhäuser in ihrem energetischen Konzept variieren und beispielsweise als KfW-40-Haus bauen, aber auch als Passivhaus.

“Wer sich nicht entscheiden kann, welchen Stil er gerne bauen würde, welchen Haustyp er gerne hätte und mit welchem Fertighaus-Anbieter er den Hausbau angehen möchte, kann sich in Musterhausparks inspirieren lassen. Hier stehen gleich mehrere Musterhäuser verschiedener Fertighaus-Hersteller fertig aufgebaut und eingerichtet. Manche Anbieter ermöglichen es sogar, in bestimmten Musterhäusern für ein paar Tage zur Probe zu wohnen.”
Fertighaus-Hausbau: Ausbaustufen
Engagierte Bauherren können während der Bauphase ihres Fertighauses auch selbst mit anpacken: Fertighäuser werden in verschiedenen Ausbaustufen angeboten:
- als schlüsselfertiges Fertighaus: Das Haus ist in der Regel so gebaut, dass der Bauherr den Schlüssel entgegennehmen und nach wenigen kleineren Arbeiten wie dem Malern der Wände einziehen kann.
- als Ausbauhaus, manchmal auch Mitbauhaus genannt: Verschiedene Arbeiten kann der Bauherr selbst übernehmen oder sie an Handwerksunternehmen vergeben. Um welche Arbeiten es sich genau handelt, hängt vom Bauvertrag ab. Denkbar wäre, dass der Bauherr beim Fertighaus die Holzständerwände selbst mit Dämmmaterial stopft, Innenwände selbst einzieht, den Fußboden verlegt, das Badezimmer fliest, Toiletten und andere Installationen durchführt oder zumindest die Wände streicht. Durch diese Eigenleistung können die Kosten zum Teil erheblich reduziert werden.
- als Bausatzhaus: Es werden nur die vorgefertigten Bauelemente geliefert. Der Käufer übernimmt nicht nur den Innenausbau, sondern auch den Hausaufbau. Dies ist die kostengünstigste, aber zeitintensivste Variante des Fertighausbaus. Der Hausanbieter schult die Bauherren zum Teil in Workshops oder stellt einen Bauleiter zur Verfügung, der die Arbeiten kontrolliert.
Der Begriff Schlüsselfertig ist rechtlich nicht geschützt. Welche Leistungen genau zu einem schlüsselfertigen Eigenheim gehören, legt jeder Anbieter selbst fest: in der Bau- und Leistungsbeschreibung.
Fertighaus bauen: Kosten schlüsselfertig
Fertighaus-Preise als Ausbauhaus
Fertighaus-Preise und Kosten: Unsere 8 Spartipps
Wie viel ein Fertighaus kostet, hängt von diversen Faktoren ab, etwa der Größe des Hauses und der technischen Ausstattung. Bauherren mit knappem Budget sollten auf folgendes achten, um ihr Fertighaus möglichst günstig bauen zu können:
- Das Grundstück sollte möglichst ebenerdig und gerade geschnitten sein.
- Auf Keller, Garage und Carport verzichten.
- Möglichst wenig Wohnfläche.
- Möglichst einfache Formen: keine Erker, keine Schmuckelemente, Flachdach.
- Die Mindesthöhe für Decken nicht überschreiten: In Deutschland liegt sie üblicherweise bei 2,40 Meter.
- Keine Sonderwünsche anmelden und umsetzen.
- Die einfachste Ausstattung des Anbieters wählen.
- Möglichst viele Arbeiten selbst erledigen.
Ein schlüsselfertiges, kleines und einfaches Fertighaus auf einem Grundstück, das den Bauherren bereits gehört und das ohne große Maßnahmen bebaut werden kann, mit einfacher technischer Ausstattung und ohne Küche kann um die 220.000 Euro kosten. Pro Quadratmeter Wohnfläche fallen bei einfacher Ausstattung für ein solches Fertighaus Preise von 2.200 bis 2.500 Euro pro Quadratmeter an, üblich sind jedoch 2.500 bis 3.000 Euro pro Quadratmeter. Dazu kommen noch verschiedene Nebenkosten, das Grundstück und das Fundament.
Bauherren sollten generell prüfen, welche Leistungen beim Fertighaus-Preis inbegriffen sind. Beispielsweise kommt es vor, dass Baupartner die Baustelleneinrichtung den Bauherren überlassen. Davon wären die meisten allerdings überfordert und müssen dann einen externen Baubegleiter engagieren, der sich um diese Aufgaben kümmert. Ist die Baustelleneinrichtung nicht Teil der Leistungsbeschreibung, sollten Bauherren 10 Prozent der Baukosten dafür einplanen. Kostet das Fertighaus beispielsweise 200.000 Euro, wären das 20.000 Euro.
In 3 Schritten zum passenden Finanzierungsangebot
Erhalten Sie individuelle Angebote und vergleichen Sie.
Jetzt Angebote anfordernNebenkosten beim Hausbau eines Fertighauses
Wer vom eigenen Fertighaus träumt und Kataloge durchblättert, könnte bisweilen auf die Idee kommen, ein vollständiges Fertighaus für 250.000 Euro bauen zu können. Doch dieser Preis gilt nur für das reine Wohnhaus, üblicherweise ohne Keller oder Bodenplatte und bei der Standardausführung. Neben den reinen Baukosten fallen folgende Fertighaus-Kosten an:
- Kaufpreis Grundstück
- Nebenkosten des Grundstückskaufes wie Maklerprovision, Notarkosten und Grunderwerbsteuer, Grundbucheintrag
- Vermessung des Grundstücks
- Erschließungskosten zwischen den öffentlichen Versorgungsnetzen und dem Grundstück
- Hausanschlusskosten zwischen Grundstücksgrenze und Haus
- Bauvorbereitung des Grundstücks wie Abtragung, Aufschüttung, Bäume fällen oder Grundwasserbohrungen
- Baustelleneinrichtung
- Verbrauch von Baustrom und Bauwasser
- Das Honorar eines Bausachverständigen, beispielsweise für die Hausübergabe
- Versicherungen
Bauherren sollten etwa 50.000 Euro, mindestens jedoch zwanzig Prozent der Bausumme, als Puffer bei den Kosten für Ihr Fertighaus einplanen. Davon können sie die meisten Baunebenkosten bezahlen und haben auch für unvorhergesehene Rechnungen Geld übrig. Für die Kaufnebenkosten sollten zehn Prozent der Kaufsumme eingeplant werden.
Fertighaus-Preise und Angebote genau prüfen
Zukünftige Bauherren sollten bei der Wahl ihres Baupartners sorgfältig vorgehen. Weil der spätere Bauvertrag samt Leistungsbeschreibung auf den ersten unverbindlichen Planungstreffen basiert, sollten Bauherren diese protokollieren und dann prüfen, ob tatsächlich alle Wünsche und Entscheidungen den Weg in die Leistungsbeschreibung einschließlich der Preise für ihr Fertighaus gefunden haben.
Die Bau- und Leistungsbeschreibung beschreibt detailliert alle im Fertighaus-Preis enthaltenen Leistungen. Bauherren sollten sie noch vor Vertragsabschluss prüfen und sich genau über den exakten Leistungsumfang des Fertighaus-Anbieters informieren. Je genauer und detaillierter der Vertrag formuliert ist, desto besser für den Bauherrn.
Fertighaus-Bauabnahme: Den Neubau sorgfältig untersuchen
Bevor der frischgebackene Hauseigentümer einziehen kann, findet die Übergabe des Fertighauses statt: Bei diesem Termin übergibt die Baufirma ihre Leistung und beendet damit den Auftrag. Der Bauherr hat bei diesem Termin die Möglichkeit, Mängel im Fertighaus festzustellen. Stellen sich die Mängel nach dem Termin heraus, muss er beweisen, dass tatsächlich das Bauunternehmen dafür verantwortlich ist. Ist das Fertighaus übergeben, steht einem baldigen Einzug nichts mehr im Wege.
Polnische Fertighäuser als günstige Alternative?
Sparfüchse wenden sich gerne an polnische Fertighaus-Anbieter, um ihre Baukosten zu senken. Bei einem polnischen Fertighaus können die Kosten tatsächlich etwas niedriger sein als bei einem vergleichbaren Objekt eines deutschen Anbieters. Hier machen sich die günstigeren Lohnkosten unseres Nachbarlandes bemerkbar.
Aber: Erwarten Sie keine übermäßig großen Preisunterschiede, denn Qualität hat ihren Preis, auch bei einem Fertighaus aus Polen. Auch bei polnischen Fertighaus-Anbietern legen nur die Leistungsbeschreibung und der Bauvertrag fest, was Sie letztendlich für Ihr Geld bekommen.
Vertrauen Sie auf seriöse polnische Hausbaufirmen wie Danwood und vergleichen Sie immer mehrere Angebote für ein Fertighaus in ähnlicher Ausführung. So bekommen Sie das beste Preis-Leistungs-Verhältnis.
Fertighaus aus Polen: Beliebte Angebote
Hausbaukataloge bestellen & sich inspirieren lassen
Mit dem Katalog-Assistenten in nur 2 Minuten passende Hauskataloge finden.
Jetzt Bauprojekt startenDas müssen Sie beim Bau eines Fertighauses beachten
Wollen Sie ein Fertighaus bauen, stehen Ihnen fast unbegrenzte Möglichkeiten bei der Gestaltung Ihres Zuhauses zur Verfügung. Entgegen der überholten Meinung sind nämlich auch bei einem Fertighaus weitreichende Individualisierungen und Anpassungen möglich, wenn Sie die Mehrkosten im Vergleich zum Typenmodell tragen können und wollen. Ob Stil, Dachform, Haustyp oder Bauweise, verschiedene Fertighaus-Anbieter haben sich auf bestimmte Formen des Fertigbaus spezialisiert und gehen gleichzeitig auf Ihre persönlichen Bauwünsche ein. Je nachdem, wie viele Anpassungen Sie vornehmen und für welche Ausbaustufe Sie sich entscheiden, werden die Preise für ein Fertighaus anders ausfallen. Neben dem Vergleich unterschiedlicher Angebote ist deshalb unser wichtigster Tipp, um die Kosten Ihres Fertighauses zu senken: Bauen Sie so einfach wie möglich. Verzichten müssen Sie auf Komfort aber nicht, denn auch die Standardversionen der Fertighaus-Anbieter sind auf dem neuesten energetischen Stand und punkten mit praktischen Grundrissen.










































































































































































































































































































































































































































