


Doppelhaus Doppelhaus DH 110 Basis von Baudirekt Architektenhäuser
Preis auf Anfrage
Bewertungen von Baudirekt Architektenhäuser
4,0
(26)
Wohnfläche
109 m²
Zimmer
4
Ausbaustufe
Schlüsselfertig
Bauweise
Massivhaus
Etagen
1,5
Energiestandard
Effizienzhaus 55
Dachform
Satteldach
Hausart
Doppelhaus
Beschreibung
Modernes Wohnen bedeutet auch, Wohnraum effizient und intelligent zu nutzen. Das DH 110 bietet nicht nur die Chance günstig und energieeffizient zu bauen, sondern vor allem auch sein ganz "privates Reich" zu verwirklichen. Bei dem DH 110 treffen Sie auf eine Massiv-Hausidee, die zwei Parteien so vereint, dass ein vollkommen eigenständiges Wohnen problemlos möglich ist.
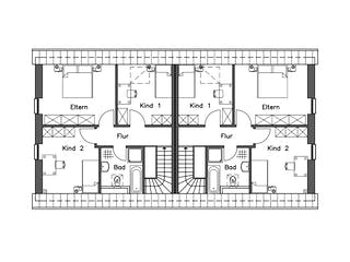
Grundrissfür Doppelhaus DH 110 Basis
Außenmaße
Länge: 16,8 m
Breite: 8,66 m
Grundrisse
Der Grundriss entspricht nicht Ihren Vorstellungen?
Passen Sie den Grundriss an Ihre persönlichen Bedürfnisse an und besprechen Sie Ihren individuellen Plan mit einem Bauberater des Anbieters.
Merkmale
Energiestandard und Förderung
Energiestandard
Effizienzhaus 55
Dach
Dachform
Satteldach
Preisdetails für Doppelhaus DH 110 Basis
Schlüsselfertig ab
Preis auf Anfrage
Dieser Preis ist ein Beispiel für den Anfang, ein Berater kann Ihnen ein detailliertes Angebot erstellen, das Ihren Bedürfnissen entspricht.
Möchten Sie bei Ihrem Projekt Geld sparen?
Durch einen Angebotsvergleich mit Bauen.de können Sie bis zu 20 % Ihrer Baukosten sparen.
Über den Anbieter Baudirekt Architektenhäuser
Zum Anbieterprofil
Bewertungen
4,0
(26)

Bewertungen
4,0
26 BewertungenGut
Baudirekt Architektenhäuser in Zahlen
Gründungsjahr
1995
Häuser im Angebot
64
Häuser pro Jahr
> 100
Mitarbeiter
51-100
Bewertungen von Baudirekt Architektenhäuser
Gute Beratung. Alles sehr transparent. Unsich...
Gute Beratung. Alles sehr transparent. Unsicher, ob Fertigstellungstermin auch eingehalten wird.
04 Apr. 2026Bernd D.
Gute Beratung. Günstiger Preis in guter Qualität.
Gute Beratung.
21 März 2026Bernd D.
Keine Rückmeldung
Erst einen Termin doppelt belegt, dann sollte ein neuer Termin vereinbart werden. Kein weiterer Kontakt
31 Jan. 2026Tom S.
Persönliche Beratung für Ihre individuellen Wünsche
Finden Sie jetzt Ihren Ansprechpartner
Baudirekt Architektenhäuser
Weitere Häuser
Beliebte Häuser von Baudirekt Architektenhäuser
Ähnliche Häuser Für Doppelhaus DH 110 Basis