Ein Haus, unzählige Möglichkeiten und alles auf einer Ebene: Die Planung für einen Bungalow Grundriss unterscheidet sich maßgeblich zu der eines mehrgeschossigen Hauses. Ohne Treppen, die die Geschosse verbinden, ist die optimale Anordnung der Räume von besonderer Bedeutung. Ein gut durchdachter Grundriss ist das Fundament für ein harmonisches Zuhause, das über Jahre hinweg flexibel bleibt. Er entscheidet darüber, wie Licht die Räume durchflutet, wie kurz die Wege im Alltag sind und wie gut sich private Rückzugsorte und gesellige Wohnbereiche voneinander trennen lassen.
Die Gestaltung des Bungalow-Grundrisses ist eine kreative und zugleich strategische Aufgabe. Unser Artikel führt Sie durch die wichtigsten Aspekte der Grundrissplanung eines Bungalows – von der passenden Form über die richtige Größe bis hin zur optimalen Raumaufteilung.
Zonierung mit einer klaren Trennung in „öffentliche“ Bereiche (Wohnen, Kochen, Essen) und einen „privaten" Trakt (Schlafen, Bad) sorgt für Ruhe und Privatsphäre.
Verwinkelte Grundrisse wie die L- oder U-Form schaffen von Natur aus geschützte und private Innen- wie Außenbereiche.
Für optimale Lichtversorgung, Wohnräume an der Süd- oder Westseite planen und Oberlichter oder Lichtkuppeln nutzen.
Ein guter Bungalow-Grundriss ist anpassungsfähig. Nichttragende Innenwände ermöglichen es, Räume später einfach zu verändern oder neu aufzuteilen.
Worauf es beim Bungalow-Grundriss ankommt
Da sich das gesamte Leben auf einer Etage abspielt, hat die Grundrissplanung bei einem Bungalow andere Schwerpunkte als bei einem mehrstöckigen Haus. Die fehlende Treppe bedeutet, dass Flure die einzigen Verkehrsflächen sind. Daher sollten diese möglichst kurz und effizient gehalten werden.
Eine bewährte Methode ist die Gliederung des Bungalows in Funktionszonen. Typischerweise werden hier ein öffentlicher und ein privater Bereich unterschieden:
- Der öffentliche Bereich: Hier befindet sich meist ein offener Wohn-, Ess- und Kochbereich, der als kommunikatives Zentrum der Familie dient. Direkt daneben oder fließend ineinander übergehend liegt der Eingangsbereich mit Garderobe.
- Der private Bereich: Dieser Trakt umfasst die Schlaf- und Kinderzimmer sowie das Hauptbadezimmer. Er kann durch eine Tür vom öffentlichen Bereich getrennt werden, um akustische und visuelle Ruhe zu gewährleisten.
Den Bungalow ins richtige Licht rücken
Ein weiteres zentrales Thema ist die Belichtung. Um dunkle Innenzonen zu vermeiden, ist die Ausrichtung des Hauses entscheidend. Wohn- und Aufenthaltsräume sollten idealerweise nach Süden oder Westen ausgerichtet sein, um von passivem Sonnenlicht zu profitieren. Nebenräume wie der Hauswirtschaftsraum oder das Gäste-WC können an der Nordseite platziert werden. Wird eine Garage geplant, so ist diese ebenfalls am besten an der Nordseite aufgehoben.
Die passende Form: Grundrisse für Bungalows im Überblick
Bungalows können in verschiedensten geometrischen Formen realisiert werden, die jeweils eigene Vor- und Nachteile mit sich bringen.
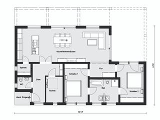
Rechteck-Bungalow: Kompakt und effizient
Die einfachste und unkomplizierteste Bauform ist der rechteckige oder quadratische Bungalow-Grundriss. Er zeichnet sich durch eine klare Struktur und ein gutes Verhältnis von Außenwand zu Wohnfläche aus. Die Planung und Umsetzung sind vergleichsweise einfach. Eine besondere Variante ist der Atrium-Bungalow, bei dem die Räume um einen innenliegenden, offenen Hof angeordnet sind. Dies sorgt für exzellente Belichtung und hohe Privatsphäre, da die Außenwände nur wenige Fenster benötigen. Allerdings wird für diese Bauform ein vergleichsweise großes Grundstück benötigt.
Winkelbungalow (L-Form): Der beliebte Klassiker
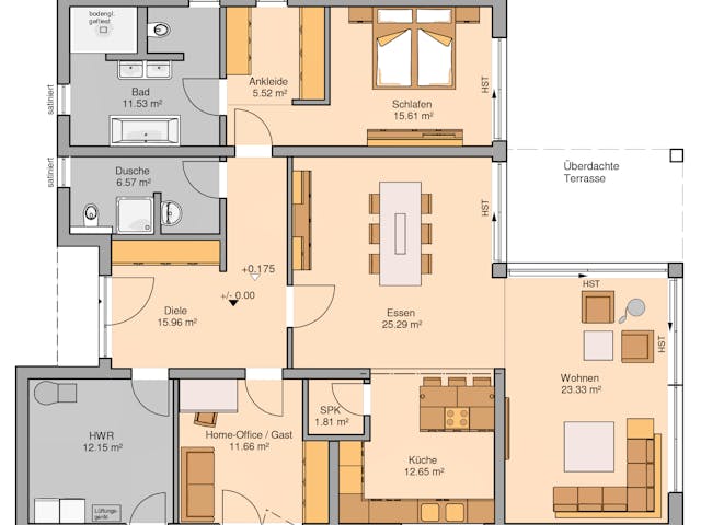
Der Winkelbungalow Grundriss in L-Form ist in Deutschland besonders verbreitet und beliebt. Durch den 90-Grad-Winkel entsteht auf natürliche Weise ein geschützter Außenbereich, der sich ideal für eine Terrasse eignet. Diese ist von zwei Hausseiten vor Wind und Blicken geschützt. Gleichzeitig ermöglicht die L-Form eine sinnvolle Gliederung der Wohnbereiche, indem beispielsweise der Wohn- und Schlaftrakt in den beiden unterschiedlichen Flügeln untergebracht werden.
Bungalow in U-Form: Maximale Privatsphäre
Ein Bungalow in U-Form ist theoretisch auch ein Winkelbungalow und erweitert das Prinzip der L-Form. Der Hof oder Gartenbereich wird an drei Seiten umschlossen, was einen äußerst privaten Innenhof schafft, der zugleich optimal vor Wettereinflüssen geschützt ist. Die U-Form eignet sich hervorragend für eine intelligente Raumaufteilung, etwa zur Abtrennung eines Home-Office-Bereichs, einer Einliegerwohnung oder eines separaten Trakts für Gäste oder Großeltern. Allerdings bedarf diese Form ein sehr großes Grundstück und ist konstruktiv aufwendiger und kostspieliger
Weitere Formen: T- und H-Grundrisse
Neben den gängigen Formen gibt es auch T- oder H-förmige Grundrisse. Ein T-förmiger Grundriss kann ebenfalls Bereiche funktionell trennen und schafft zwei teilgeschützte Außenbereiche. H-förmige Grundrisse sind sehr großzügig und seltener, da sie vor allem für Luxus-Bungalows auf weitläufigen Grundstücken gewählt werden.
Die richtige Größe: Wohnflächen und Zimmeraufteilung
Bungalows können von minimalistischen Tiny Houses bis hin zu weitläufigen Villen realisiert werden. Die passende Größe hängt von Ihrer Lebenssituation, Ihren Bedürfnissen als auch von Ihrem Budget ab.
Bungalow Tiny Houses unter 50 m²
Diese Kleinsthäuser sind als stationäre Mini-Bungalows eine Option für Minimalisten. Sie bieten einen offenen Wohnraum mit optimierter Raumnutzung.
Kleine Bungalows bis 100 m²
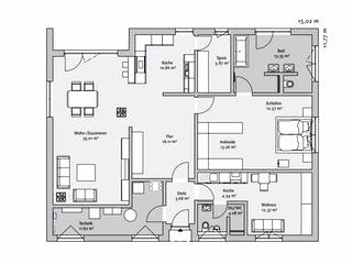
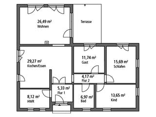
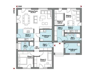
Diese Größe eignet sich ideal für Singles, Paare oder Kleinfamilien mit einem Kind. Klassisch ist hier ein Bungalow Grundriss mit 4 Zimmern, welcher typischerweise einen Wohnbereich, ein Elternschlafzimmer, ein Kinder- oder Arbeitszimmer und die nötigen Nebenräume umfasst.
Mittlere Bungalows von 100 bis 130 m²
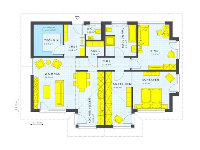
In dieser Größenordnung finden sich die meisten Bungalows, da dies auch der Durchschnittsbereich für eine vierköpfige Familie ist. Ein Grundriss für einen Bungalow mit 120 m² bietet bequem Platz für einen großzügigen Wohn- und Essbereich, zwei Kinderzimmer, ein Elternschlafzimmer. Für kinderlose Paare ermöglicht das Platzangebot die Einrichtung eines Gästezimmers und Home-Office. sowie ein zweites Badezimmer.
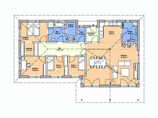
Große Bungalows ab 130 m²
Ab dieser Größe spricht man von großzügigen Wohnlösungen, die oft als Winkel- oder U-Form umgesetzt werden. Fünf bis sechs Zimmer, ein Wellnessbad oder ein separates Büro sind hier keine Seltenheit. Die größten Bungalows unserer Hausanbieter umfassen bis zu 220 m². Allerdings handelt es sich dann dabei um Luxusbungalows, die ihren Preis haben.
Wie viel Grundstück braucht ein Bungalow?
Ein wesentlicher Nachteil des Bungalows ist sein höherer Flächenbedarf. Da alle Räume ebenerdig liegen, benötigt er ein größeres Grundstück als ein mehrstöckiges Haus mit identischer Wohnfläche. Doch wie viel Platz ist nötig?
Als Faustformel gilt, dass die Grundstücksgröße etwa das Vier- bis Fünffache der Wohnfläche betragen sollte, um ein ausgewogenes Verhältnis von Haus zu Garten zu erzielen. Die folgende Tabelle zeigt beispielhaft den Mindestbedarf, der auch von den örtlichen Bauvorschriften zur maximal bebaubaren Fläche (Grundflächenzahl, GRZ) abhängt. Eine GRZ von 0,3 findet man eher in vorstädtischen Regionen, während eine GRZ von 0,2 eher in ländlichen Regionen einzuhalten ist.
| Bungalow-Größe (Wohnfläche) | Geschätzte Hausgrundfläche | Mindest-Grundstück bei GRZ 0,3 | Mindest-Grundstück bei GRZ 0,2 |
|---|---|---|---|
| 80 m² | 100 m² | 500 m² | 750 m² |
| 100 m² | 125 m² | 583 m² | 875 m² |
| 130 m² | 163 m² | 743 m² | 1.115 m² |
| 150 m² | 188 m² | 860 m² | 1.290 m² |
Diese Zahlen verdeutlichen, dass die Standortwahl und die lokalen Bauvorschriften für Bungalow-Interessenten von zentraler Bedeutung sind.
Barrierefrei planen: Ein kurzer Einblick
Bungalows sind ideal für barrierearmes Wohnen. Die Norm DIN 18040-2 regelt die Anforderungen an barrierefreie Wohnungen. Zu den wichtigsten Punkten gehören:
- Stufenlose Zugänglichkeit aller Räume.
- Türbreiten von mindestens 80 cm (besser 90 cm für Rollstuhlgerechtigkeit).
- Bewegungsflächen von 150 x 150 cm in Bädern, Küche und vor Türen, um das Wenden mit einem Rollstuhl zu ermöglichen.
- Ausreichend breite Flure von mindestens 120 cm.
Wer vorausschauend plant, kann seinen Bungalow so gestalten, dass er sich später ohne große Umbauten an veränderte Bedürfnisse anpassen lässt.
5 Tipps für die Innenraumgestaltung Ihres Bungalows
- Setzen Sie auf Helligkeit: Nutzen Sie helle Wandfarben, große Fenster und Spiegel, um Räume optisch zu vergrößern und Licht zu reflektieren. Oberlichter oder Lichtkuppeln können dunkle Flure und Raumzentren erhellen.
- Schaffen Sie Zonen mit Möbeln: In offenen Grundrissen können Teppiche, freistehende Regale oder Sofas dabei helfen, Funktionsbereiche wie Wohnen und Essen optisch voneinander abzugrenzen.
- Achten Sie auf die Deckenhöhe: Eine lichte Höhe von 2,50 m statt der üblichen 2,40 m lässt die Räume großzügiger und luftiger wirken. In Teilbereichen kann eine bis unter das Dach geöffnete Decke für einen luftigen Loft-Charakter sorgen.
- Planen Sie ausreichend Stauraum: Da mehrheitlich ein Bungalow ohne Keller oder Dachboden gebaut wird, sind ein gut geplanter Hauswirtschaftsraum und integrierte Einbauschränke unerlässlich.
- Denken Sie an die Akustik: Große, offene Räume können hallen. Textilien wie Vorhänge, Polstermöbel und Teppiche absorbieren Schall und schaffen Gemütlichkeit.
Mit unserem Bauprojekt-Quiz finden Sie in nur 2 Minuten heraus, welche Anbieter am besten zu Ihnen passen.
Jetzt Bauprojekt starten
































































