



Einfamilienhaus Bauhaus Linea von Kern-Haus
Ab 462.900 €
Bewertungen von Kern-Haus
3,9
(82)
Wohnfläche
160 m²
Zimmer
5
Ausbaustufe
Schlüsselfertig
Bauweise
Massivhaus
Etagen
2
Energiestandard
Effizienzhaus 55 EE
Dachform
Flachdach
Hausart
Einfamilienhaus
Beschreibung
Bereits der Eingang des Massivhauses ist ein Highlight: Die sich über zwei Etagen streckende Glasfassade sorgt für viel Licht, gleichzeitig haben Sie durch die offene Konstruktion den direkten Blick von der Eingangstür durch den Wohn- und Essbereich in den Garten.
Im Erdgeschoss gibt es zudem ein Gästezimmer und ein Duschbad. Über die geradläufige Treppe gelangen Sie in das Obergeschoss: Hier befinden sich die Individualräume (drei Schlafzimmer, eine Ankleide sowie zwei Badezimmer).
Kern-Haus steht für 40 Jahre Expertise für das massive, energieeffiziente Bauen und realisiert Architektenhäuser in Ziegel, Bims, Porenbeton oder Stahlbeton (DuoTherm). Darüber hinaus setzt der Massivhaushersteller auf Energieeffizienz bei all seinen Häusern, denn bereits im Standard ist jedes Haus in der höchsten Energieeffizienzklasse A+.
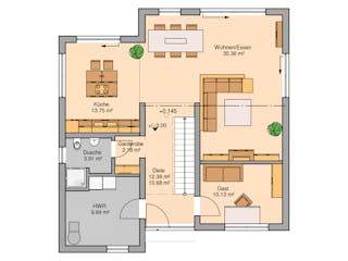
Grundrissfür Bauhaus Linea
Außenmaße
Länge: 11,35 m
Breite: 10,73 m
Grundrisse
Der Grundriss entspricht nicht Ihren Vorstellungen?
Passen Sie den Grundriss an Ihre persönlichen Bedürfnisse an und besprechen Sie Ihren individuellen Plan mit einem Bauberater des Anbieters.
Merkmale
Energiestandard und Förderung
Energiestandard
Effizienzhaus 40
Effizienzhaus 40 Plus
Effizienzhaus 55
Effizienzhaus 55 EE
Plusenergiehaus
Dach
Dachform
Flachdach
Preisdetails für Bauhaus Linea
Schlüsselfertig ab
462.900 €
ab 1.393,52 €
Dieser Preis ist ein Beispiel für den Anfang, ein Berater kann Ihnen ein detailliertes Angebot erstellen, das Ihren Bedürfnissen entspricht.
Möchten Sie bei Ihrem Projekt Geld sparen?
Durch einen Angebotsvergleich mit Bauen.de können Sie bis zu 20 % Ihrer Baukosten sparen.
Über den Anbieter Kern-Haus
Zum Anbieterprofil
Bewertungen
3,9
(82)

Bewertungen
3,9
82 BewertungenGut
Kern-Haus in Zahlen
Gründungsjahr
1980
Häuser im Angebot
60
Mitarbeiter
300
Bewertungen von Kern-Haus
Frau Kuss ist sehr nett und engagiert. Sie ke...
Frau Kuss ist sehr nett und engagiert. Sie kennt das Unternehmen und hat eine ausführliche Bedarfsanalyse durchgeführt.
21 März 2026Julia V.
Mail erhalten, leider war ich selbst schlecht...
Mail erhalten, leider war ich selbst schlecht erreichbar.
16 März 2024Florian W.
Email erhalten
Email erhalten
10 März 2024Ana Cecilia S.
Leistungsspektrum
Preisgarantie
Bauzeit Garantie
Individuelle Planung
Blower Door Test
Persönliche Beratung für Ihre individuellen Wünsche
Finden Sie jetzt Ihren Ansprechpartner
Kern-Haus
Auszeichnungen, Zertifikate & Mitgliedschaften





Ähnliche Häuser Für Bauhaus Linea