



Einfamilienhaus ARCHITEKTENHAUS CARA von Kern-Haus Chemnitz
Ab 346.900 €
Bewertungen von Kern-Haus Chemnitz
5,0
(1)
Wohnfläche
121 m²
Zimmer
4
Ausbaustufe
Schlüsselfertig
Bauweise
Massivhaus
Energiestandard
Effizienzhaus 55
Dachform
Satteldach
Hausart
Einfamilienhaus
Beschreibung
Das Satteldachhaus Cara zeigt schon von außen einige Besonderheiten und seinen ganz speziellen Charme: Neben einer flachen Dachneigung wurden Fenster im Drempelbereich für lichtdurchflutete Räume sowie eine Holzfassade angebracht. Innen überzeugt das Architektenhaus mit einer klaren Grundrissaufteilung auf 121 Quadratmetern Wohnfläche, vier Zimmern und zwei Vollgeschossen.
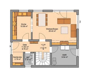
Im Erdgeschoss bietet das Familienhaus eine halboffene Küche zum großzügigen Wohn- und Essbereich mit bodentiefen Fenstern. Daneben gibt es auf dieser Etage ein Gäste-WC und eine Diele mit Garderobe. Praktisch ist auch der Hauswirtschaftsraum mit direktem Zugang in den Garten. Im Dachgeschoss stehen den Bewohnern große Individualräume zur Verfügung. Das Kinder- und das Eltern-Schlafzimmer bieten jeweils über 16 Quadratmeter Wohnfläche. Komplettiert wird die Etage durch ein Familien-Badezimmer und ein praktisches Home-Office.
Dieses Haus wird nach Ihren individuellen Wünschen geplant und ausgestattet!
Angaben zum Ausbauhauspreis: Die Ab-Preise, die aktuell hinterlegt sind, beziehen sich auf schlüsselfertige Häuser mit dem Energiestandard 55. Die Ausbauhäuser haben aber den Energiestandard 40.
Grundrissfür ARCHITEKTENHAUS CARA
Grundrisse
Der Grundriss entspricht nicht Ihren Vorstellungen?
Passen Sie den Grundriss an Ihre persönlichen Bedürfnisse an und besprechen Sie Ihren individuellen Plan mit einem Bauberater des Anbieters.
Merkmale
Energiestandard und Förderung
Energiestandard
Effizienzhaus 55
Dach
Dachform
Satteldach
Preisdetails für ARCHITEKTENHAUS CARA
Schlüsselfertig ab
346.900 €
Ausbauhaus ab243.900 €
ab 1.044,31 €
Dieser Preis ist ein Beispiel für den Anfang, ein Berater kann Ihnen ein detailliertes Angebot erstellen, das Ihren Bedürfnissen entspricht.
Möchten Sie bei Ihrem Projekt Geld sparen?
Durch einen Angebotsvergleich mit Bauen.de können Sie bis zu 20 % Ihrer Baukosten sparen.
Über den Anbieter Kern-Haus Chemnitz
Zum Anbieterprofil
Bewertungen
5,0
(1)

Bewertungen
5,0
1 BewertungHervorragend
Kern-Haus Chemnitz in Zahlen
Gründungsjahr
1995
Häuser im Angebot
52
Häuser pro Jahr
10-20
Mitarbeiter
1-10
Leistungsspektrum
Finanzierungsberatung
Preisgarantie
Bauzeit Garantie
Individuelle Planung
Blower Door Test
Persönliche Beratung für Ihre individuellen Wünsche
Finden Sie jetzt Ihren Ansprechpartner
Kern-Haus Chemnitz
Ähnliche Häuser Für ARCHITEKTENHAUS CARA