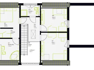
Einfamilienhaus massa Musterhaus Titz von massa haus
Preis auf Anfrage

Bewertungen von massa haus
4,0
(52)
Detailsfür massa Musterhaus Titz
Energiestandard und Förderung
Energiestandard
Effizienzhaus 55
Effizienzhaus 40 Plus
Ein Effizienzhaus 40 Plus verbraucht im Vergleich zum Referenzhaus 100 > 60 % weniger Energie. Sie müssen für den Hausbau mit Mehrkosten von ~ 13,5 % rechnen, die sich aber mittelfristig auszahlen. Es verfügt im Vergleich zum Effizienzhaus 40 über weitere Komponenten, wie beispielsweise eine Lüftungsanlage mit Wärmerückgewinnung, eine Anlage, mit der auf Basis erneuerbarer Energien Strom erzeugt werden kann und ein Batteriespeichersystem, mit dem überschüssige Energie eingespart werden kann.
Effizienzhaus 40
Seit dem 1. Juli 2010 gibt es neben dem Effizienzhaus 55 und dem Effizienzhaus 70 noch das Effizienzhaus 40. Das Effizienzhaus 40 darf nur 40 Prozent der nach Energieeinsparverordnung 2009 (EnEV) gültigen Höchstwerte hinsichtlich Jahres-Primärenergiebedarf und Transmissionswärmeverlust erreichen. Neben der Einsparung von 60 Prozent beim Jahres-Primärenergiebedarfs sind auch beim Transmissionswärmeverlust 45 Prozent einzusparen. Der maximale Jahresprimärenergiebedarf beträgt 30 kWh/m². Ein KfW-Effizienzhaus 40 Haus ist luftdicht und nutzt regenerative Energien, häufig eine Kombination aus Holzpellets, Solaranlage und Lüftungsanlage mit Wärmerückgewinnung.
Effizienzhaus 55
Ein Effizienzhaus 55 verbraucht im Vergleich zum Referenzhaus 100 45 % weniger Energie. Sie müssen für den Hausbau mit Mehrkosten von ~ 7,5 % rechnen, die sich aber mittelfristig auszahlen. Diese Effizienzklasse gilt heutzutage als Standard für alle neu gebauten Häuser.
Preisfür massa Musterhaus Titz
Ausbauhaus ab
Preis auf Anfrage
Dieser Preis ist ein Beispiel für den Anfang, ein Berater kann Ihnen ein detailliertes Angebot erstellen, das Ihren Bedürfnissen entspricht.
Möchten Sie bei Ihrem Projekt Geld sparen?
Durch einen Angebotsvergleich mit Bauen.de können Sie bis zu 20 % Ihrer Baukosten sparen.
massa haus

Bewertungen
4,0
(52)

Bewertungen
4,0
52 BewertungenGut
massa haus in Zahlen
Gründungsjahr
1978
Häuser im Angebot
67
Häuser pro Jahr
1.800
Häuser gesamt
>40.000
Mitarbeiter
1.540
Bewertungen von massa haus
Kontakt Hergestellt. Im Musterhauszentrum nac...
Kontakt Hergestellt. Im Musterhauszentrum nach Terminvereinbarung ein Gespräch geführt. Seither nichts mehr gehört.
08 Feb. 2026Herbert A.
Sehr gute Betreuung und Beratung
Gute Gespräche, offene Punkte über den Ablauf wurden erläutert, inklusive eines Vorvertrages, der abgeschlossen wurde. Suche nach passendem Grundstück ist jetzt ein Thema. Ich fühle mich gut mit Frau Stumpp an meiner Seite.
31 Jan. 2026Reinold S.
Sehr informativ
Der Berater war sehr freundlich und er konnte unsere offenen Fragen beantworten und uns alle hilfreichen Informationen weitergeben
27 Jan. 2026Josephine N.
Leistungsspektrum
Finanzierungsberatung
Preisgarantie
Bauzeit Garantie
Individuelle Planung
Blower Door Test



