




Mehrfamilienhaus Vitalhaus Fabienne von Regnauer Hausbau
Preis auf Anfrage
Bewertungen von Regnauer Hausbau
5,0
(1)
Wohnfläche
202 m²
Zimmer
6
Ausbaustufe
Schlüsselfertig
Bauweise
Fertighaus
Energiestandard
Effizienzhaus 40 Plus
Dachform
Flachdach
Hausart
Mehrfamilienhaus
Beschreibung
Was macht eine passionierte Innenausstatterin, wenn sie ein Fertighaus bezieht? Ein Paradies ganz aus Holz, nachhaltig, individuell und wohngemütlich – und das auch noch für drei Generationen.
Jessica Caprez hat schon immer gerne Wohnungen eingerichtet und Lösungen für ein ebenso funktionelles wie elegantes Zuhause entwickelt. Anfangs lebte die Lehrerin diese Passion im Freundeskreis aus und half beim Planen und Möblieren. Später führte sie ein Geschäft für Geschenk- und Dekoartikel. Mittlerweile setzt sie mit ihrem Unternehmen „Work in Progress“ ihre Fähigkeiten im Auftrag von Architekten und Bauherren ein und unterstützt diese bei der maßgeschneiderten Innenarchitektur ihrer Projekte. Aus der Berufung ist ein Beruf geworden.
Vorzeigeobjekt: das eigene ZuhauseIhr Meisterstück hat die Schweizerin nun mit ihrem eigenen Zuhause geliefert, einem Regnauer-Vitalhaus für drei Generationen: Die Eltern der Kreativen leben im Erdgeschoss, sie selbst bewohnt den 1. Stock – mit eigenem Zugang. Und im Untergeschoss hat sie für ihre Nichte gerade den Fitness-Raum in ein Studio verwandelt und diese freut sich nun darauf, unter dem gemeinsamen Dach der Großfamilie ihre Studentenzeit zu verleben. Natürlich ebenfalls mit eigenem Eingang.
Dass solch ein Hauskonzept überhaupt entstehen konnte, verdankt die Bauherrin nicht zuletzt dem Zufall, der ihr das Hanggrundstück direkt am Waldrand von Founex verschaffte. Denn eigentlich herrscht auf dem Markt für Bauland in dieser Gegend dauerhaft Ebbe. Die Bauherrin hatte daher ihren Wunschtraum, ihr früheres Zuhause an einer lauten Straße gegen einen Neubau in ruhiger Umgebung zu tauschen, schon fast aufgegeben, als sie im Gespräch mit einer Zufallsbekanntschaft erfuhr, dass deren Nachbarn in der Wunschgegend ein Grundstück verkauft hatten. Bei einem Besuch am selben Abend stellte sich heraus, dass der Notartermin mit dem Käufer just an diesem Tag geplatzt war.
Per Zufall zum perfekten BaupartnerCaprez griff sofort zu – und machte sich zunächst zusammen mit einem befreundeten Architekten an die Planung eines Mehrgenerationenhauses. „Nur überschritten die Vorstellungen des Planers mein Budget deutlich und ließen sich auch nicht mit meinem Wunsch nach einem praktikablen Zuhause vereinen“, bedauert sie. Doch der Zufall:half erneut. Ein Nachbar, der selbst ein Fertighaus aus Holz gebaut hatte, empfahl den Fertighausanbieter Regnauer Hausbau. Neben der individuellen Architektur lobte er insbesondere die Silence-Decke, die perfekt mit dem Wunsch der Bauherrin nach Ruhe – auch innerhalb des von mehreren Parteien bewohnten Hauses – harmonierte.
„An der Planung haben der Architekt von Regnauer und ich lange getüftelt“, lächelt die Hausbesitzerin heute, zumal jener zuerst den Vater der Bauherrin überzeugen musste, denn „er hatte noch die Fertighauskultur der 70er Jahre im Kopf.“ Dann aber war der Weg frei für einen Flachdachbau, der nicht weiß, sondernOff-White gestrichen wurde, um mit dem nahen Wald optisch zu verschmelzen. Die Geländer der Außentreppe und des Balkons sind anthrazitfarben, sodass das Holz vom ersten Moment an den Charme natürlich gealterter Fichte versprüht. Die Fassade öffnet sich mit großen Fenstern weit Richtung Wald underlaubt den Bewohnern beim Kochen, beim Zusammensitzen und sogar im Badezimmer ungestörte Blicke in die Natur.
Ein Haus, drei Parteien, drei separate ZugängeAlle drei Einheiten – Erdgeschoss, erster Stock sowie das Untergeschoss und die Garagenebene – verfügen über separate Zugänge. Ein Lift verbindet die Ebenen miteinander, sodass die Bewohner ein barrierefreies Zuhause vorfinden. Fließende Übergänge und offene Zonen verleihen den einzelnen Einheiten optischeGroßzügigkeit. Das beginnt schon bei den Eingangsbereichen, die sich fast wie Hotellobbys anfühlen, großzügig genug, um nicht nur als Garderoben zu dienen, sondern auch als gemütliche Sitz- und Leseecken. Im Erdgeschoss wurde dieser Ort sofort zu Mamas Lieblingsplatz.
„Tote Räume mag ich nicht. Ich möchte, dass jeder Raum wirklich täglich genutzt wird“, sagt Caprez und entwickelte aus diesem Wunsch heraus eine ausgeklügelte Badezimmeridee: Die Bäder im Erdgeschoss und im ersten Stock sind sowohl vom Schlafzimmer als auch vom Flur aus begehbar. Dabei kombinieren sie einezentrale Duschzone im Zentrum mit zwei rechts und links davon angeordneten Toiletten- bzw. Waschbereichen, die individuell abschließbar sind. Eine der beiden Toiletten kann zudem, wenn nötig, als Gäste-WC genutzt werden. In der übrigen Zeit dient sie als privates Bad. Neben dem Wohnzimmer ist jeweils noch Platz für eine gemütliche Büroecke, die sich auch als Gästezimmer nutzen lässt. Abgesehen von diesen separaten Räumen sind beide Geschosse als großzügig ineinander fließende Wohnräumemit Ess- und Kochecke geplant.
Neben dem mit reichlich Tageslicht versorgten, ehemaligen Fitnessraum im untersten nutzt die Bauherrin einen weiteren großen Raum als Atelier. Dort plant sie für ihre Kunden und hält Schulungen mit Studenten, die sich für Innendekoration interessieren. So leben drei Generationen friedlich neben- und doch miteinander unter einem Dach. Den Garten drum herum teilen sie sich dank mehrerer Ebenen und intimen Rückzugsbereichen sowie gemeinsamer Treffpunkte in vorbildlicher Weise.
Natürlich barrierefrei„So ist es perfekt für alle drei Generationen“, freut sich die Bauherrin, die natürlich die Innenarchitektur der Wohnungen gestaltet hat. Sandfarbene und Erdtöne mit roten Akzenten für die ältere Generation, passend zu den Masken, Statuen und Teppichen, die die Eltern von vielen Reisen mitgebracht haben. Grau, blau und gelb für die eigene Wohnung, Einbauschränke für alle. „Die Farbstimmung drinnen deckt sich jeweils mit der draußen, unten mit den Farben des Waldes und der Wiese, oben mit den Farben des Himmels und der Sonne“, erklärt die Bauherrin. Und damit die Eltern ihren Lebensabend im neuen Zuhause auch wirklichgenießen können, hat Caprez darauf Wert gelegt, dass Regnauer Hausbau die Wohnungen behindertengerecht gestaltet. Selbst wenn die älteren Bewohner einmal nicht mehr so gut laufen können,ja selbst wenn ein Rollstuhl notwendig werden würde, müssen diese ihr Zuhause nicht verlassen. Die Wohnebenen befinden sich jeweils „nur“ auf einer Etage und alle Türen sind breit genug für eventuell notwendige Hilfsmittel.
Die Silence-Decke schließlich stellt sicher, dass sich kein Hausbewohner von den drunter oder drüber lebenden Mitbewohnern akustisch gestört fühlt. Damit auch die Umwelt durch den Neubau möglichst wenig belastet wird, versorgt eine Wärmepumpe das neue Zuhause der drei Generationen mit energieeffizienter Heizenergie. Optische Wohlfühlwärme liefern zwei Kaminöfen, während eine 35 m2 große Photovoltaikanlage auf dem Dach das Haus mit Strom versorgt.
„Ein perfekter Königsweg für alle Bedürfnisse“, zieht Caprez Bilanz aus ihrem persönlichen Meisterstück. Und was sagt ihr Vater heute dazu, dass er in einem Fertighaus lebt? „Er ist begeistert“, schmunzelt sie. „Das neue Haus bietet ein Wohlfühlklima, dass er heute nicht mehr missen möchte.“
Ausführung gemäß aktueller Regnauer Bauleistungs- und Ausstattungsbeschreibung. Weitere Informationen auf www.regnauer.de. Abbildungen können Sonderausstattung zeigen. Wir legen großen Wert darauf, Ihr Vitalhaus ganz nach Ihren persönlichen Wünschen zu gestalten. Gemäß Ihren Wünschen und Ihrer Grundstückssituation ergibt sich dann ein exakter Festpreis für Ihr Traumhaus. Daher beziehen sich die Preise auf eine Vitalausstattung ohne spezifische Sonderausstattung.
Voraussetzung zur Erlangung der Bundesförderung für Effiziente Gebäude ist die Einhaltung der diesbezüglichen Förderrichtlinien. So wird hierfür unter anderem die Ausführung einer förderfähigen Haustechnik sowie die entsprechende Ausführung der bauherrenseitigen Leistungen (z.B. Keller und -ausbau) vorausgesetzt. Die Förderrichtlinien sind auch Änderungen unterworfen, sodass die Förderfähigkeit jeweils im Einzelfall geprüft und objektspezifisch durch das Förderinstitut bestätigt werden muss. Auch können einzelne Programme ausgesetzt oder verändert werden. Die Regnauer Hausbau GmbH & Co KG kann keine Finanzierungs- oder Förderberatung durchführen.
Merkmale
- Einliegerwohnung
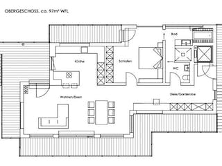
Grundrissfür Vitalhaus Fabienne
Grundrisse
Der Grundriss entspricht nicht Ihren Vorstellungen?
Passen Sie den Grundriss an Ihre persönlichen Bedürfnisse an und besprechen Sie Ihren individuellen Plan mit einem Bauberater des Anbieters.
Merkmale
Energiestandard und Förderung
Energiestandard
Effizienzhaus 40
Effizienzhaus 40 Plus
Dach
Dachform
Flachdach
Preisdetails für Vitalhaus Fabienne
Schlüsselfertig ab
Preis auf Anfrage
Dieser Preis ist ein Beispiel für den Anfang, ein Berater kann Ihnen ein detailliertes Angebot erstellen, das Ihren Bedürfnissen entspricht.
Möchten Sie bei Ihrem Projekt Geld sparen?
Durch einen Angebotsvergleich mit Bauen.de können Sie bis zu 20 % Ihrer Baukosten sparen.
Über den Anbieter Regnauer Hausbau
Zum Anbieterprofil
Bewertungen
5,0
(1)

Bewertungen
5,0
1 BewertungHervorragend
Regnauer Hausbau in Zahlen
Gründungsjahr
1929
Häuser im Angebot
26
Häuser pro Jahr
ca. 100
Häuser gesamt
über 3.000
Mitarbeiter
250
Bewertungen von Regnauer Hausbau
Wir waren den Sommer über im Allgäu und haben...
Wir waren den Sommer über im Allgäu und haben dort diese wunderschönen Häuser bestaunen können! In unserer Phantasie wünschen wir uns auch schon länger solch ein tolles Haus.
07 Dez. 2025Elphi W.
Leistungsspektrum
Finanzierungsberatung
Preisgarantie
Bauzeit Garantie
Individuelle Planung
Blower Door Test
Persönliche Beratung für Ihre individuellen Wünsche
Finden Sie jetzt Ihren Ansprechpartner
Regnauer Hausbau
Auszeichnungen, Zertifikate & Mitgliedschaften






Ähnliche Häuser Für Vitalhaus Fabienne