




Einfamilienhaus Vitalhaus Glonn von Regnauer Hausbau
Ab 593.195 €
Bewertungen von Regnauer Hausbau
5,0
(1)
Wohnfläche
170 m²
Zimmer
5
Ausbaustufe
Schlüsselfertig
Bauweise
Fertighaus
Energiestandard
Effizienzhaus 40 Plus
Dachform
Satteldach
Hausart
Einfamilienhaus
Beschreibung
Geradliniger Baukörper - Regel Nummer eins: Die Natur hat das Sagen, nicht die Architektur. Das Haus „Glonn“ hält sich durch einen kompakten, schnörkellosen Baukörper unter einem Satteldachzurück. Die Fassade ist weiß verputzt. Akzente setzen am Dachgeschoss nur Rhomboleisten aus Holz, die die Panoramafenster punktuell hervorheben. Über große Doppelfenster und doppelte Terrassentüren öffnet sich das Haus zum weitläufigen Garten, der den Wohnraum verlängert. Der Carport wirkt filigran und bietet mit einem Verbindungsgang einen gegen die Witterung geschützten Eingang. Auf Balkone hat die junge Baufamilie bewusst verzichtet, um die Geradlinigkeit des Baukörpers nicht zu unterbrechen.
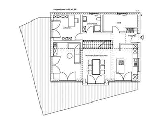
Transparenz und Weite - Die Weite der umgebenden Landschaft meint der Gast auch im Innern zu spüren: Der Baustoff wird durch Naturholzböden aufgenommen. Eine scheinbar frei im Raum schwebende, gläserne Treppe stellt Leichtigkeit her und schafft ebenso Transparenz wie die tonangebende Farbe Weiß. Den Lebensmittelpunkt der jungen vierköpfigen Familie stellt ein offener Wohnbereich mit Küche dar. Auch im Dachgeschoss bestimmt Großzügigkeit das Bild. Von einer Galerie aus erschließen sich Schlaf- und Kinderzimmer sowie Bad. Für die Eltern steht ein eigener Ankleideraum zur Verfügung. Im Erdgeschoss ist Platz für ein Büro und einen Hauswirtschaftsraum.
Energie tanken in den eigenen vier Wänden - Wohnen in der Natur: Nicht nur Kinder profitieren von einem Zuhause, das viel Platz zum Toben im Freien bietet. Auch die beruflich sehr engagierten Eltern – der Bauherr ist Leiter im Controlling, seine Frau im Einkauf tätig – finden im Regnauer-Haus eine Rückzugsoase. Der Baustoff Holz garantiert ein gesundes Raumklima, die Regnauer-Vitalwand ein ausgeglichenes Temperaturverhältnis – angenehm kühl im Sommer, kuschelig warm im Winter. Der spezielle Wandaufbaumit Holzfaserdämmung ermöglicht Energieeffizienz und hält die Sorgen um explodierende Energiepreise ebenso wie moderne Haustechnik im Griff.
Ausführung gemäß aktueller Regnauer Bauleistungs- und Ausstattungsbeschreibung. Weitere Informationen auf www.regnauer.de. Abbildungen können Sonderausstattung zeigen. Wir legen großen Wert darauf, Ihr Vitalhaus ganz nach Ihren persönlichen Wünschen zu gestalten. Gemäß Ihren Wünschen und Ihrer Grundstückssituation ergibt sich dann ein exakter Festpreis für Ihr Traumhaus. Daher beziehen sich die Preise auf eine Vitalausstattung ohne spezifische Sonderausstattung.
Voraussetzung zur Erlangung der Bundesförderung für Effiziente Gebäude ist die Einhaltung der diesbezüglichen Förderrichtlinien. So wird hierfür unter anderem die Ausführung einer förderfähigen Haustechnik sowie die entsprechende Ausführung der bauherrenseitigen Leistungen (z.B. Keller und -ausbau) vorausgesetzt. Die Förderrichtlinien sind auch Änderungen unterworfen, sodass die Förderfähigkeit jeweils im Einzelfall geprüft und objektspezifisch durch das Förderinstitut bestätigt werden muss. Auch können einzelne Programme ausgesetzt oder verändert werden. Die Regnauer Hausbau GmbH & Co KG kann keine Finanzierungs- oder Förderberatung durchführen.
Merkmale
- Einliegerwohnung
Grundrissfür Vitalhaus Glonn
Grundrisse
Der Grundriss entspricht nicht Ihren Vorstellungen?
Passen Sie den Grundriss an Ihre persönlichen Bedürfnisse an und besprechen Sie Ihren individuellen Plan mit einem Bauberater des Anbieters.
Merkmale
Energiestandard und Förderung
Energiestandard
Effizienzhaus 40
Effizienzhaus 40 Plus
Dach
Dachform
Satteldach
Preisdetails für Vitalhaus Glonn
Schlüsselfertig ab
593.195 €
ab 1.785,76 €
Dieser Preis ist ein Beispiel für den Anfang, ein Berater kann Ihnen ein detailliertes Angebot erstellen, das Ihren Bedürfnissen entspricht.
Möchten Sie bei Ihrem Projekt Geld sparen?
Durch einen Angebotsvergleich mit Bauen.de können Sie bis zu 20 % Ihrer Baukosten sparen.
Über den Anbieter Regnauer Hausbau
Zum Anbieterprofil
Bewertungen
5,0
(1)

Bewertungen
5,0
1 BewertungHervorragend
Regnauer Hausbau in Zahlen
Gründungsjahr
1929
Häuser im Angebot
26
Häuser pro Jahr
ca. 100
Häuser gesamt
über 3.000
Mitarbeiter
250
Bewertungen von Regnauer Hausbau
Wir waren den Sommer über im Allgäu und haben...
Wir waren den Sommer über im Allgäu und haben dort diese wunderschönen Häuser bestaunen können! In unserer Phantasie wünschen wir uns auch schon länger solch ein tolles Haus.
07 Dez. 2025Elphi W.
Leistungsspektrum
Finanzierungsberatung
Preisgarantie
Bauzeit Garantie
Individuelle Planung
Blower Door Test
Persönliche Beratung für Ihre individuellen Wünsche
Finden Sie jetzt Ihren Ansprechpartner
Regnauer Hausbau
Auszeichnungen, Zertifikate & Mitgliedschaften






Ähnliche Häuser Für Vitalhaus Glonn