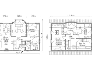
Einfamilienhaus Musterhaus Heßdorf von ScanHaus Marlow
Preis auf Anfrage

Bewertungen von ScanHaus Marlow
4,2
(104)
Detailsfür Musterhaus Heßdorf
Energiestandard und Förderung
Energiestandard
Effizienzhaus 55
Effizienzhaus 40 Plus
Ein Effizienzhaus 40 Plus verbraucht im Vergleich zum Referenzhaus 100 > 60 % weniger Energie. Sie müssen für den Hausbau mit Mehrkosten von ~ 13,5 % rechnen, die sich aber mittelfristig auszahlen. Es verfügt im Vergleich zum Effizienzhaus 40 über weitere Komponenten, wie beispielsweise eine Lüftungsanlage mit Wärmerückgewinnung, eine Anlage, mit der auf Basis erneuerbarer Energien Strom erzeugt werden kann und ein Batteriespeichersystem, mit dem überschüssige Energie eingespart werden kann.
Effizienzhaus 40
Seit dem 1. Juli 2010 gibt es neben dem Effizienzhaus 55 und dem Effizienzhaus 70 noch das Effizienzhaus 40. Das Effizienzhaus 40 darf nur 40 Prozent der nach Energieeinsparverordnung 2009 (EnEV) gültigen Höchstwerte hinsichtlich Jahres-Primärenergiebedarf und Transmissionswärmeverlust erreichen. Neben der Einsparung von 60 Prozent beim Jahres-Primärenergiebedarfs sind auch beim Transmissionswärmeverlust 45 Prozent einzusparen. Der maximale Jahresprimärenergiebedarf beträgt 30 kWh/m². Ein KfW-Effizienzhaus 40 Haus ist luftdicht und nutzt regenerative Energien, häufig eine Kombination aus Holzpellets, Solaranlage und Lüftungsanlage mit Wärmerückgewinnung.
Effizienzhaus 55
Ein Effizienzhaus 55 verbraucht im Vergleich zum Referenzhaus 100 45 % weniger Energie. Sie müssen für den Hausbau mit Mehrkosten von ~ 7,5 % rechnen, die sich aber mittelfristig auszahlen. Diese Effizienzklasse gilt heutzutage als Standard für alle neu gebauten Häuser.
Preisfür Musterhaus Heßdorf
Schlüsselfertig ab
Preis auf Anfrage
Dieser Preis ist ein Beispiel für den Anfang, ein Berater kann Ihnen ein detailliertes Angebot erstellen, das Ihren Bedürfnissen entspricht.
Möchten Sie bei Ihrem Projekt Geld sparen?
Durch einen Angebotsvergleich mit Bauen.de können Sie bis zu 20 % Ihrer Baukosten sparen.
ScanHaus Marlow
Zum Anbieterprofil
Bewertungen
4,2
(104)

Bewertungen
4,2
104 BewertungenHervorragend
ScanHaus Marlow in Zahlen
Gründungsjahr
1992
Häuser im Angebot
43
Häuser pro Jahr
ca. 650
Mitarbeiter
ca. 500
Bewertungen von ScanHaus Marlow
War sehr freundlich
War sehr freundlich
19 Dez. 2025Horst E.
Sehr nettes Telefonat. Sehr gute Beratung im ...
Sehr nettes Telefonat. Sehr gute Beratung im Musterhaus Potsdam. Sehr gute Unterlagen für eine Voranfrage mit dem Bauamt. Leider lässt der Bebauungsplan es nicht zu und es gibt auch keine Ausnahmen, schade der Traum ist geplatzt.
18 Nov. 2023Martina B.
Alles, von Anfang bis Ende! SERVICE ist TOP!
Alles, von Anfang bis Ende! SERVICE ist TOP!
17 Nov. 2023Will K.
Leistungsspektrum
Finanzierungsberatung
Preisgarantie
Bauzeit Garantie
Individuelle Planung
Blower Door Test
Persönliche Beratung für Ihre individuellen Wünsche
Finden Sie jetzt Ihren Ansprechpartner
ScanHaus Marlow
Auszeichnungen, Zertifikate & Mitgliedschaften






