

















Zweifamilienhaus Solitaire Generationenhäuser von SCHWABENHAUS
Ab 463.070 €
Bewertungen von SCHWABENHAUS
4,0
(274)
Wohnfläche
182 m²
Ausbaustufe
Schlüsselfertig
Bauweise
Fertighaus
Etagen
2
Energiestandard
Effizienzhaus 40
Dachform
Satteldach
Hausart
Zweifamilienhaus
Beschreibung
Solitaire Generationenhäuser – Gemeinsam wohnen, unabhängig leben
Mit den Solitaire Generationenhäuser von Schwabenhaus entscheiden Sie sich für ein Hauskonzept, das das Miteinander neu denkt. Ob Mehrgenerationenwohnen, gemeinsames Bauen mit Freunden oder Leben mit den Eltern unter einem Dach – die Solitaire Generationenhäuser bieten durchdachte Grundrisse für individuelle Lebensmodelle mit einem Maximum an Privatsphäre und Flexibilität.
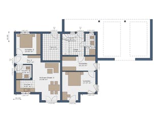
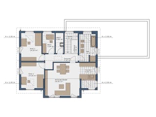
Zur Wahl stehen verschiedene Hausgrößen und -konzepte: mit einer klassischen Hauptwohnung und separater Einliegerwohnung im Erdgeschoss, mit zwei gleichwertigen Wohneinheiten übereinander oder mit zwei vollständig getrennten Bereichen auf Erd- und Obergeschoss – jeweils mit eigenem Zugang, aber unter einem Dach.
So wohnt jede Partei für sich – und trotzdem zusammen.
Moderne Architektur, flexible Grundrisse und hochwertige Ausstattung machen jedes Solitaire Generationenhaus zu einem zukunftsfähigen Zuhause, das sich mit dem Leben verändert.
Für wen sind die Solitaire Generationenhäuser gemacht?
Für alle, die das Leben gemeinsam gestalten wollen – mit den Großeltern, den erwachsenen Kindern oder einer zweiten Familie. Für Menschen, die ihre Zukunft planen und gleichzeitig Raum für Unabhängigkeit schaffen möchten. Für Bauherren, die mehr als ein Zuhause suchen: ein durchdachtes Wohnmodell mit Potenzial.
Preis-Information: Preise beziehen sich auf das zugrundeliegende Basishaus Solitaire-G-182 E2 in der Ausbau-Stufe "Fast-Vollendet", Effizienzhaus-55, inkl. Bodenplatte, inkl. All-Inklusive-Leistungspaket, Bilder und Abbildungen können aufpreispflichtige Extras zeigen. Preislisten Stand 03/24
Merkmale
Energiestandard und Förderung
Energiestandard
Effizienzhaus 40
Dach
Dachform
Satteldach
Preisdetails für Solitaire Generationenhäuser
Schlüsselfertig ab
463.070 €
ab 1.394,03 €
Dieser Preis ist ein Beispiel für den Anfang, ein Berater kann Ihnen ein detailliertes Angebot erstellen, das Ihren Bedürfnissen entspricht.
Möchten Sie bei Ihrem Projekt Geld sparen?
Durch einen Angebotsvergleich mit Bauen.de können Sie bis zu 20 % Ihrer Baukosten sparen.
Über den Anbieter SCHWABENHAUS
Zum Anbieterprofil
Bewertungen
4,0
(274)

Bewertungen
4,0
274 BewertungenGut
SCHWABENHAUS in Zahlen
Gründungsjahr
1966
Häuser im Angebot
44
Häuser pro Jahr
450
Mitarbeiter
400
Bewertungen von SCHWABENHAUS
Danke an Hrn. Simon. Er ist kompetent und fre...
Danke an Hrn. Simon. Er ist kompetent und freundlich!
03 Apr. 2026Dimitri S.
alles Ok
Bis jetzt Material erhalten. Erste Kontakte
02 Apr. 2026Kurt Heinz H.
Besprechungstermin findet demnächst statt.
Besprechungstermin findet demnächst statt.
16 März 2026Kirsten L.
Leistungsspektrum
Finanzierungsberatung
Preisgarantie
Bauzeit Garantie
Individuelle Planung
Blower Door Test
Persönliche Beratung für Ihre individuellen Wünsche
Finden Sie jetzt Ihren Ansprechpartner
SCHWABENHAUS
Auszeichnungen, Zertifikate & Mitgliedschaften


















Ähnliche Häuser Für Solitaire Generationenhäuser