
Einfamilienhaus Bauhaus 160 inkl. Eingangsüberdachung von Suckfüll Energiesparhaus
Ab 484.875 €
Bewertungen von Suckfüll Energiesparhaus
3,5
(57)
Wohnfläche
156 m²
Zimmer
8
Ausbaustufe
Schlüsselfertig
Bauweise
Fertighaus
Etagen
2
Energiestandard
Effizienzhaus 40
Dachform
Flachdach
Hausart
Einfamilienhaus
Beschreibung
Dieser Kubus liegt im Trend. Auf der Sonnenseite bietet er durch geschickte Anordnung von Gebäudevorsprüngen sowohl einen überdachten Terrassenbereich als auch einen Balkon als Highlight für Elternschlafbereich und Kinderzimmer. Die überwiegend bodentiefen Fensterelemente sorgen in beiden Etagen für viel Licht in den groß angelegten Räumen.
Preise verstehen sich inkl. Bodenplatte und 19 % MwSt. - Mehrpreis für Garage = 42.500 €
Merkmale
- Gästezimmer
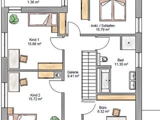
Grundrissfür Bauhaus 160 inkl. Eingangsüberdachung
Außenmaße
Länge: 10,15 m
Breite: 10,65 m
Grundrisse
Der Grundriss entspricht nicht Ihren Vorstellungen?
Passen Sie den Grundriss an Ihre persönlichen Bedürfnisse an und besprechen Sie Ihren individuellen Plan mit einem Bauberater des Anbieters.
Merkmale
Energiestandard und Förderung
Energiestandard
Effizienzhaus 40
Effizienzhaus 40 Plus
Effizienzhaus 55
Dach
Dachform
Flachdach
Preisdetails für Bauhaus 160 inkl. Eingangsüberdachung
Schlüsselfertig ab
484.875 €
Ausbauhaus ab368.325 €
ab 1.459,68 €
Dieser Preis ist ein Beispiel für den Anfang, ein Berater kann Ihnen ein detailliertes Angebot erstellen, das Ihren Bedürfnissen entspricht.
Möchten Sie bei Ihrem Projekt Geld sparen?
Durch einen Angebotsvergleich mit Bauen.de können Sie bis zu 20 % Ihrer Baukosten sparen.
Über den Anbieter Suckfüll Energiesparhaus
Zum Anbieterprofil
Bewertungen
3,5
(57)

Bewertungen
3,5
57 BewertungenAkzeptabel
Suckfüll Energiesparhaus in Zahlen
Gründungsjahr
1958
Häuser im Angebot
47
Bewertungen von Suckfüll Energiesparhaus
Herr Krämer hat einen kompetenten Eindruck ge...
Herr Krämer hat einen kompetenten Eindruck gemacht. Das Gespräch war vertrauensvoll und konstruktiv. Das Angebot ist absolut interessant. Suckfüll ist trotz kleinerer Firma eine Bereicherung.
15 Juni 2025Ulrike O.
Suckfull hat ein Online -Video gesendet und a...
Suckfull hat ein Online -Video gesendet und auch Schwabenhaus.
20 Jan. 2024Heike W.
nichts bestimmtes
nichts bestimmtes
02 Aug. 2023Paul B.
Leistungsspektrum
Preisgarantie
Bauzeit Garantie
Individuelle Planung
Blower Door Test
Persönliche Beratung für Ihre individuellen Wünsche
Finden Sie jetzt Ihren Ansprechpartner
Suckfüll Energiesparhaus
Weitere Häuser
Ähnliche Häuser Für Bauhaus 160 inkl. Eingangsüberdachung