
















Mehrfamilienhaus Mehrfamilienhaus Herndl von Bau-Fritz - Mehrfamilienhäuser
Ab 1.035.000 €
Bewertungen von Bau-Fritz - Mehrfamilienhäuser
0
(0)
Wohnfläche
237 m²
Ausbaustufe
Schlüsselfertig
Bauweise
Fertighaus
Etagen
2,5
Energiestandard
Effizienzhaus 40
Dachform
Satteldach
Hausart
Mehrfamilienhaus
Beschreibung
Mitten im Ort nahe der stattlichen Kirche ist Baugrund attraktiv und gesucht – ein guter Grund für die Errichtung des neuen Mehrfamilienhauses in klassischer Kubatur und mit Satteldach. Mit seiner silbergrauen „Credo“-Holzverschalung, kombiniert mit weißer Mineralputzfassade, fügt es sich harmonisch ins Gesamtbild der Gemeinde und wird neuer Nachbar eines traditionellen Bauernhauses am Fuße des Schweizer Juramassivs. Hier wurde schon immer Gemüse selbst angebaut, streng ökologisch im eigenen Garten. Gesundheit und das respektvolle Leben mit der Natur ziehen deshalb auch in den Neubau ein, der darauf ausgelegt ist, unterschiedlichen Lebensphasen geeigneten Raum zu bieten. So wird irgendwann die Bauersfrau vermutlich das barrierefreie Wohnen im Erdgeschoss schätzen. Und was den Energiebedarf angeht, verbraucht eine Partei im alten Bauernhaus so viel wie drei Parteien im neuen Haus. Denn dieses ist mit Solarthermie-Panels ausgestattet, nach modernen Standards ideal isoliert und spürbar wohngesund.
Architektur und Besonderheiten
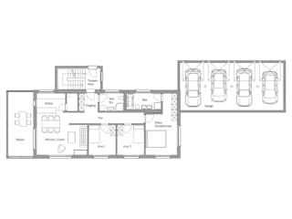
- Mehrfamilienhaus mit 3 Wohnungen mit Balkon (EG/OG) bzw. Terrasse mit Gartenzugang (UG)
- Zentrales, innenliegendes Treppenhaus
- 4 Reihengaragen plus Außenparkflächen
- Badezimmer mit schwellenfreier Dusche
- Edles Farb- und Materialspiel
Baufritz-Inklusivleistungen
- Individuelle Architektur – Jedes Baufritz-Haus ist ein Unikat. Wir fertigen Ihr Haus in unserer Manufaktur. Maßgefertigt für Sie und abgestimmt auf Ihre Wünsche.
- Holz-Alu-Fenster mit hochwertigem Schreinereinbau ohne PU-Bauschäum
- Ganzheitliches Gesundheitskonzept mit ausgezeichnetem Raumklima – Jedes Baufritz-Haus wird mit dem strengsten Siegel für Wohngesundheit zertifiziert: VDB-Zert
- Effektive X-und-E-Elektrosmog-Schutztechnik und abgeschirmte Elektroinstallation
- Hochwertiger und baubiologisch einwandfreier Innenausbau mit selbst entwickelten Baufritz-Innovationen (wie z.B. Innenraumfarben, Parkettkleber etc.) für ein einmalig gesundes Wohnklima
- Hochwertige Ausstattung bereits im Standard: Fußbodenheizung, Echtholzparkett, Vollholztüren, renommierte und namhafte Markenhersteller: Sanitär, Fliesen etc.
- Wärmedämmung „HOIZ": Unser biologischer Naturdämmstoff aus Holzspänen – eigens entwickelt, von natureplus geprüft und IBN-zertifiziert
- Persönliche Ansprechpartner von Anfang bis Einzug
- Ein erfahrener Innenraumplaner, der Sie während der Bemusterung begleitet und Ihnen z.B. bei Fragen zur Badgestaltung oder Lichtplanung mit Rat und Tat zur Seite steht
- Produktion und Montage durch ausgebildete Fachkräfte, die für faire Löhne und unter besten Bedingungen arbeiten
- Festpreisgarantie, Terminsicherheit und transparenter Prozess
Preis schlüsselfertig ab OK Keller/Bodenplatte, ohne Möbel und Küche im Liefergebiet Deutschland, basierend auf Preiskalkulation
Stand 02/2026, inkl. 19 % MwSt.
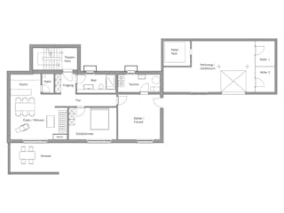
Grundrissfür Mehrfamilienhaus Herndl
Außenmaße
Länge: 16,33 m
Breite: 7,58 m
Grundrisse
Der Grundriss entspricht nicht Ihren Vorstellungen?
Passen Sie den Grundriss an Ihre persönlichen Bedürfnisse an und besprechen Sie Ihren individuellen Plan mit einem Bauberater des Anbieters.
Merkmale
Energiestandard und Förderung
Energiestandard
Effizienzhaus 40
Dach
Dachform
Satteldach
Dachneigung
35°
Kniestockhöhe
277 cm
Preisdetails für Mehrfamilienhaus Herndl
Schlüsselfertig ab
1.035.000 €
ab 3.115,78 €
Dieser Preis ist ein Beispiel für den Anfang, ein Berater kann Ihnen ein detailliertes Angebot erstellen, das Ihren Bedürfnissen entspricht.
Möchten Sie bei Ihrem Projekt Geld sparen?
Durch einen Angebotsvergleich mit Bauen.de können Sie bis zu 20 % Ihrer Baukosten sparen.
Über den Anbieter Bau-Fritz - Mehrfamilienhäuser
Zum Anbieterprofil
Bewertungen
0
(0)

Bewertungen
0
0 BewertungenKeine
Bau-Fritz - Mehrfamilienhäuser in Zahlen
Gründungsjahr
1896
Häuser im Angebot
12
Mitarbeiter
580
Leistungsspektrum
Finanzierungsberatung
Preisgarantie
Bauzeit Garantie
Individuelle Planung
Blower Door Test
Persönliche Beratung für Ihre individuellen Wünsche
Finden Sie jetzt Ihren Ansprechpartner
Bau-Fritz - Mehrfamilienhäuser
Weitere Häuser
Beliebte Häuser von Bau-Fritz - Mehrfamilienhäuser
Ähnliche Häuser Für Mehrfamilienhaus Herndl