
Raumgröße: Beispielwerte für die Planung der Zimmer


Der Entwurf Ihres Traumhauses beginnt mit der sorgfältigen Planung des Grundrisses, der als Ihre persönliche Blaupause für das zukünftige Wohnen dient. Diese strukturierte Skizze, ähnlich einer Karte, legt die Verteilung und Größe der Räumlichkeiten fest und ist somit ein zentraler Bestandteil der Bauplanung.
In diesem Artikel erfahren Sie, wie Sie ideale Raumgrößen bestimmen und Ihre Wohnräume effektiv gestalten können, um sowohl Komfort als auch Funktionalität zu maximieren.
Grundlagen der Raumplanung
Der erste Schritt zur Realisierung Ihrer Wohnträume ist das Verständnis des benötigten Wohnraumbedarfs. Besonders relevant ist dies bei der Entscheidung, wie viel Platz Familienmitglieder benötigen:
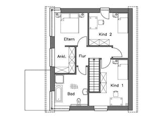
Ein durchschnittlicher Vier-Personen-Haushalt erfordert etwa eine Küche, ein Wohnzimmer, ein Elternschlafzimmer, zwei Kinderzimmer und mindestens ein Badezimmer mit separatem WC.
Zusätzliche Raumoptionen
Zusätzlich zu den Standardräumen eines Hauses gibt es weitere, die Ihren Bedürfnissen entsprechend hinzugefügt werden können, wie etwa ein Arbeitszimmer, ein Gästezimmer oder zusätzliche Sanitärräume. Die Planung dieser Räume beeinflusst direkt die Gesamtwohnfläche und sollte daher genau überlegt sein.
Es ist auch wichtig, Nebenflächen wie Eingangsbereiche und Treppenhäuser zu bedenken, da sie essentiell für die Funktionalität und das Raumgefühl des Hauses sind. Diese Bereiche dienen nicht nur dem Verkehr innerhalb des Hauses, sondern prägen auch den ersten Eindruck Ihres Zuhauses.
Verhältnis von Grundfläche zu Wohnfläche
Ein genereller Richtwert besagt, dass circa 75-80% der Grund- oder Geschossfläche als Wohnfläche nutzbar sind. Dies bedeutet, dass aus 150 Quadratmetern Grundfläche etwa 120 Quadratmeter Wohnfläche realisiert werden können.
Wohnfläche definieren
Die Berechnung der Wohnfläche nach der Wohnflächenverordnung ist eine wertvolle Ressource, um exakte Größenangaben zu erhalten. Sie spezifiziert, welche Bereiche zum Wohnen zählen und welche Abzüge gemacht werden müssen, beispielsweise für Wände und nicht nutzbare Dachschrägen.
Nicht zur Wohnfläche zählende Bereiche
Manche Bereiche, wie zum Beispiel niedrige Dachschrägen und Kellerräume, zählen nicht zur Wohnfläche. In diese Kategorie fallen auch technische Räume und Stiegen, die mehr als drei Stufen umfassen. Diese Flächen werden als Nutzflächen klassifiziert, die zwar zum Gesamtareal gehören, jedoch nicht direkt bewohnbar sind.
Räume mit anteiliger Wohnfläche
Einige Bereiche, wie unter Treppen und Dachschrägen mit einer Höhe von 1 bis 2 Metern, zählen anteilig zur Wohnfläche. Ähnliches gilt für nicht beheizte Wintergärten und teilweise für Balkone und Terrassen, je nach deren Beschaffenheit und Nutzungsmöglichkeit.
Diese komplexen Überlegungen zur Raumgröße und -nutzung sind essenziell, um ein Zuhause zu schaffen, das sowohl praktisch als auch einladend ist. Die genaue Kenntnis und Berücksichtigung dieser Faktoren in der Planungsphase führen zu einem effizienteren und angenehmeren Wohnraum.
Notwendige Quadratmeter pro Raumtyp
Die Größe der Räume in Ihrem Heim kann entscheidend für die Schaffung eines angenehmen und funktionellen Umfelds sein. Hier finden Sie Empfehlungen zu den minimalen und idealen Größen, die je nach Raumtyp variieren können, um sowohl Alltagsbedürfnisse als auch besondere Ansprüche zu erfüllen.
Eingangsbereich: Das Tor zum Zuhause
Oft unterschätzt, ist der Eingangsbereich doch eine Schlüsselzone für Ordnung und erste Eindrücke. Eine Grundfläche von mindestens 5 Quadratmetern ist ratsam, um ausreichend Platz für Garderobe und Alltagsgegenstände wie Schuhe und Taschen zu bieten.
Wohn- und Essbereich: Herz des Hauses
Für eine moderne, offene Gestaltung des Wohn- und Essbereichs sollten Sie mindestens 30 bis 40 Quadratmeter einplanen. Ist der Essbereich separat, empfiehlt sich zusätzlicher Raum von 7 bis 12 Quadratmetern, um eine freie und komfortable Atmosphäre zu gewährleisten.
Küche: Funktionalität trifft Lebensart
Die Küche, ob als separater Raum oder Teil einer offenen Wohnküche, benötigt eine Mindestfläche von 10 Quadratmetern. Für zusätzliche Ausstattung wie eine Kochinsel sind weitere 5 bis 10 Quadratmeter einzukalkulieren, um Bewegungsfreiheit und praktische Nutzung zu sichern.
Sanitärräume: Von funktional bis luxuriös
Ein standardmäßiges Badezimmer sollte über etwa 8 Quadratmeter verfügen, um grundlegende Funktionen abzudecken. Für eine luxuriösere Gestaltung sind mehr Quadratmeter erforderlich. Ein Gäste-WC kann auf etwa 3 Quadratmetern effizient eingerichtet werden.
Schlafzimmer: Ruhe und Rückzug
Das Hauptschlafzimmer sollte, insbesondere wenn es eine Ankleide enthält, zwischen16 und 20 Quadratmeter messen. Für reine Schlafzwecke sind etwa 12 Quadratmeter ausreichend, während ein separater Ankleidebereich zusätzliche 6 bis 8 Quadratmeter erfordern kann.
Kinderzimmer: Raum zum Wachsen
Für Kinderzimmer sind Mindestmaße von 10 Quadratmetern oft zu knapp bemessen, da neben Möbeln auch Spielraum erforderlich ist. Eine Fläche von 15 bis 20 Quadratmetern wird empfohlen, um eine entwicklungsfördernde Umgebung zu schaffen.
Arbeitszimmer: Kompakt und konzentriert
Für ein effizientes Home Office genügen 8 bis 10 Quadratmeter, die Platz für einen Schreibtisch und notwendige Ablagen bieten.
Gästezimmer: Willkommen und wohlgefühlt
Ein Gästezimmer benötigt nicht viel Platz; 10 Quadratmeter sind ausreichend, um Gästen einen angenehmen Aufenthalt zu ermöglichen.
Wirtschafts- und Vorratsräume: Effizienz im Verborgenen
Diese funktionsorientierten Räume, wie Wirtschafts- und Vorratsräume, sind oft mit 3 bis 5 Quadratmetern ausreichend dimensioniert.
Optimierung von Verkehrsflächen
Diese essenziellen Bereiche umfassen Eingänge, Durchgänge und Treppen, welche die Zugänglichkeit und Verbindung zwischen verschiedenen Wohnbereichen sicherstellen. Geschlossene Verkehrsflächen trennen effektiv den Wohnbereich vom Durchgangsverkehr, benötigen jedoch mehr Platz. Offene Verkehrsflächen können hingegen in den Wohnraum integriert werden, was die nutzbare Fläche vergrößert und das Raumgefühl verbessert.
Optimierung der Raumgestaltung: Zugänge und Durchgänge
Kernaspekte der Raumplanung in Wohnbereichen
Die Architektur eines Hauses muss durchdachte Verkehrsflächen aufweisen, die sowohl funktional als auch ästhetisch ansprechend sind. Diese Bereiche umfassen Eingänge, Durchgänge und Treppen, die es ermöglichen, die Wohnräume effizient zu erschließen und eine fließende Verbindung zwischen den verschiedenen Etagen herzustellen. Während abgeschlossene Verkehrsflächen eine klare Trennung zwischen den Wohnbereichen und dem Durchgangsverkehr bieten und somit Privatsphäre und Ruhe sichern, nehmen sie jedoch auch wertvolle Wohnfläche in Anspruch. Offene Gestaltungskonzepte hingegen können diese Flächen nahtlos in den Wohnraum integrieren, wodurch die Gesamtwohnfläche effektiv vergrößert wird und eine offene, einladende Atmosphäre entsteht.
Innovative Nutzung ungenutzter Flächen
Räume, die traditionell als ungenutzt gelten, wie beispielsweise die Bereiche unter Treppen, bieten ideale Möglichkeiten zur Schaffung zusätzlicher Lagerflächen durch den Einbau von Schränken oder Regalen. Diese kreativen Lösungen tragen zur Optimierung der Wohnfläche bei und ermöglichen eine umfangreichere Nutzung des vorhandenen Raums. Solche Anpassungen sind besonders wertvoll in Häusern mit begrenzter Grundfläche, da sie helfen, jeden Quadratmeter effizient zu nutzen.
Empfehlungen zur Raumaufteilung
Es ist ratsam, Flure und Ähnliches kompakt zu halten, doch sollten sie strategisch so integriert werden, dass sie die Wohnqualität nicht beeinträchtigen, sondern vielmehr die Funktionalität und Ästhetik des Hauses verbessern. Durch eine kluge Anordnung dieser essentiellen Verkehrsflächen lässt sich selbst auf einer begrenzten Grundfläche eine großzügige und offene Raumwirkung erzielen.
Perfekte Raumplanung mit Einliegerwohnungen
Definition und Nutzung einer Einliegerwohnung
Eine Einliegerwohnung, oft als separate, voll ausgestattete Wohnung innerhalb eines größeren Hauses definiert, ermöglicht es, unabhängig zu wohnen, während man doch Teil einer größeren Einheit bleibt. Diese Wohnungen, die häufig eigene Eingänge und komplette Haushaltsfunktionen wie Küchen und Bäder umfassen, bieten ideale Bedingungen für Vermietungen oder für Familienmitglieder, die ein gewisses Maß an Autonomie schätzen. Die Größen dieser Wohnungen variieren, wobei eine Fläche von 25 bis 50 Quadratmetern als Standard gilt, um Komfort und Funktionalität zu gewährleisten.
Strategien zur effektiven Raumaufteilung
Die optimale Anordnung der Räume ist entscheidend für das Wohngefühl und die Funktionalität eines Hauses. Bei mehrstöckigen Gebäuden wird der meist genutzte Wohnbereich idealerweise im Erdgeschoss angeordnet, während private Räume wie Schlafzimmer und Arbeitszimmer in den oberen Etagen Platz finden. Einliegerwohnungen befinden sich oft im Erdgeschoss oder Keller, was eine klare Trennung der verschiedenen Wohneinheiten ermöglicht. Die Platzierung von Wirtschafts- und Technikräumen im Keller optimiert die Raumausnutzung und zentrale Haustechnik.
Raumform und ihre Effekte auf die Raumplanung
Beim Entwurf der Raumverteilung sollte beachtet werden, dass rechteckige Räume generell leichter zu möblieren und effizienter zu nutzen sind als Räume mit vielen Nischen oder ungewöhnlichen Formen. Dies ermöglicht eine flexible Nutzung des Raumes und erleichtert die Einrichtung.
Einflussfaktoren auf Haus- und Raumgrößen
Die Rolle der Architektur und Planung
Individuelle Präferenzen in der Raumgestaltung sind ein guter Ausgangspunkt, doch die endgültige Umsetzung hängt maßgeblich von Fachleuten ab. Nicht jeder Wunsch lässt sich realisieren, besonders bei Fertig- und Massivhäusern, wo strukturelle und statische Einschränkungen die Raumverteilung limitieren. Bei Doppelhäusern sind die Möglichkeiten zur Aufteilung der Räume oft durch technische und baurechtliche Vorgaben weiter eingeschränkt.
Ökonomische und ökologische Überlegungen
Der Stil und die Kosten eines Hauses beeinflussen ebenfalls die Raumgrößen und ihre Anordnung. Jeder eingesparte Quadratmeter reduziert nicht nur die Baukosten, sondern auch die laufenden Betriebskosten, da kleinere Räume weniger Heizenergie benötigen. Diese ökonomischen und ökologischen Aspekte spielen eine wichtige Rolle in der modernen Architektur und tragen zur Nachhaltigkeit bei.
Ein idealer Grundriss, der perfekt alle Wohnbedürfnisse erfüllt, ist selten zu erreichen. Kompromisse sind oft notwendig, doch durch geschickte Planung lässt sich ein angenehmes Wohngefühl erzeugen. Bauunternehmen nutzen ihr Fachwissen, um Grundrisse zu entwickeln, die sowohl den Raum effizient nutzen als auch den Wohnkomfort erhöhen.
Häufig gestellte Fragen zu Raumgrößen






















