Die Entscheidung, ein Haus mit Einliegerwohnung zu bauen, gewinnt zunehmend an Beliebtheit und verspricht eine hohe Flexibilität. Solche Immobilien eignen sich hervorragend für das Zusammenleben mehrerer Generationen – sei es mit Kindern, Großeltern oder einem Au-pair – unter einem Dach. Zudem bietet sich die Möglichkeit, die Einliegerwohnung als attraktive Kapitalanlage zu vermieten oder sogar für gewerbliche Zwecke zu nutzen. Das Konzept des Doppelvorteils beim Bauen liegt im Trend.
Was versteht man unter einem Haus mit Einliegerwohnung?
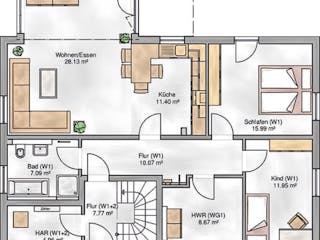
Charakteristisch für ein Haus mit Einliegerwohnung ist, dass innerhalb eines Einfamilienhauses eine weitere, in sich abgeschlossene Wohnung existiert. Diese ist von außen oder über das Treppenhaus separat erschließbar und hat seinen eigenen Eingang. Genau wie andere Wohnungen verfügt sie über eine Küche und Sanitäranlagen. Auch wenn diese Form rechtlich eher einem Zweifamilienhaus ähnelt, ist zu bedenken, dass ein Haus mit Einliegerwohnung sich in der Größe zu einem Zweifamilienhaus unterscheidet, in dem das Haus normal in zwei geteilt wird. Bei einer Einliegerwohnung gibt es ein ‘Haupthaus’ und eine dazugehörige separate Wohnung.
Ist eine Einliegerwohnung ein Mehrwert oder doch eher eine Belastung?
Damit die Planung einer zusätzlichen Wohneinheit in einem Einfamilienhaus eine Bereicherung ist, sollte diese am besten kleiner ausfallen. Wirtschaftliche Vorteile ergeben sich durch niedrige Zinsen und mögliche Zuschüsse, wie sie etwa von der KfW-Bank angeboten werden. Nicht zuletzt kann die Einliegerwohnung steuerliche Vorteile mit sich bringen, indem Baukosten und Kreditzinsen steuerlich geltend gemacht werden.
Flexibilität für jetzt und später
Der zusätzliche Wohnraum in einem Einfamilienhaus öffnet vielfältige Nutzungsmöglichkeiten. Bevor der Bau beginnt, sollte die Lage der Einliegerwohnung genau durchdacht werden, um sowohl die Privatsphäre der Bewohner als auch die funktionale Nutzung optimal zu gewährleisten. Die Wohnung kann verschieden platziert werden, beispielsweise im Keller, Dachgeschoss oder als Anbau. Entscheidend ist dabei auch, inwieweit die Wohnung für eine Vermietung vorgesehen ist oder lediglich privaten Zwecken dient.
Eine gute Investition – drei Gründe für ein Haus mit Einliegerwohnung
1.) Zukunftssicherheit durch Vermietung
Das Errichten einer Einliegerwohnung kann als solide finanzielle Absicherung gesehen werden, denn die Vermietung dieser separaten Wohneinheit generiert zusätzliche Einkünfte, die helfen, Kreditraten zu bedienen und eine Altersvorsorge aufzubauen. In Anbetracht der angespannten Wohnungsmarktsituation, stellt eine Einliegerwohnung eine attraktive Mietoption dar und verspricht eine kontinuierliche Einkommensquelle.
2.) Anpassungsfähigkeit des Wohnraums
Ein Haus mit Einliegerwohnung bietet vielseitige Nutzungsmöglichkeiten. Ob als Wohnraum für heranwachsende Kinder, Großeltern oder als Unterkunft für ein Au-pair – die Flexibilität steht im Vordergrund. Auch für gewerbliche Zwecke oder als Ferienwohnung lässt sich die Einliegerwohnung nutzen, was sie zu einem echten Multitalent in der Immobilienlandschaft macht.
3.) Doppelte Förderung durch die KfW
Dank der Anerkennung als separate Wohneinheit durch das "Energieeffizient Bauen"-Programm der KfW, lässt sich für das Haus mit Einliegerwohnung eine doppelte Förderung realisieren. Pro Wohneinheit kann spezifische finanzielle Unterstützung in Anspruch genommen werden, was den Bau und die Instandhaltung der Einliegerwohnung erheblich erleichtert.
Häuser mit Einliegerwohnung: Diese Haustypen lassen Wohnträume wahr werden
Ob ein barrierefreier Bungalow mit cleverer Raumaufteilung oder ein flexibles Mitwachshaus, die Möglichkeiten, ein Eigenheim mit Einliegerwohnung zu gestalten, sind vielfältig. Ein Bungalow mit ausreichend Raum für eine abgetrennte Einliegerwohnung bietet Privatsphäre und Zugänglichkeit, ideal für Vermietung oder berufliche Nutzung im eigenen Heim. Alternativ bietet ein Mitwachshaus zusätzliche Räume, die sich je nach Lebensphase adaptieren lassen, sei es als zusätzliches Kinderzimmer oder Büro.
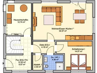
Für diejenigen, die mehr Platz benötigen, stellt ein großzügiges Zweifamilienhaus mit Einliegerwohnung eine ausgezeichnete Wahl dar. Mit großflächigen Wohnbereichen sowohl im Erd- als auch im Dachgeschoss, bietet dieses Modell ausreichend Raum für zwei Familien sowie eine zusätzliche kleine Einliegerwohnung, die sich ideal für ein Büro eignet.
Ein zweigeschossiges Massivhaus wiederum ermöglicht die Realisierung eines Mehrgenerationswohnprojekts, bei dem jede Generation ihren eigenen, abgetrennten Wohnbereich genießen kann. Die Integration einer Einliegerwohnung schafft eine zusätzliche abgeschlossene Wohneinheit, die sowohl für ältere Familienmitglieder als auch für junge Erwachsene attraktiv sein kann.
Fazit: Vor- und Nachteile beim Bauen eines Hauses mit Einliegerwohnung
Ein Haus mit Einliegerwohnung zu bauen, bedeutet, Flexibilität und finanzielle Vorteile zu genießen. Die Möglichkeit, die Einliegerwohnung zu vermieten, bietet eine solide Kapitalanlage und die Chance, bei Bedarf die Räumlichkeiten selbst zu nutzen oder umzugestalten. Die doppelte KfW-Förderung, die für abgeschlossene Wohneinheiten gewährt wird, stellt einen weiteren finanziellen Anreiz dar. Nicht zuletzt bietet ein Haus mit Einliegerwohnung eine praktische Lösung für die Altersvorsorge, da die Mieteinnahmen ein zusätzliches Einkommen darstellen.
Vorteile
Das Büro in der Einliegerwohnung bietet steuerliche Vorteile, da die Umsatzsteuer für Planungs- und Bauleistungen steuerlich absetzbar ist, solange die dienstleistenden Unternehmer ebenfalls umsatzsteuerpflichtige Leistungen anbieten.
Als Vermieter genießt man das Privileg des Sonderkündigungsrechts, das es ermöglicht, Mietverhältnisse flexibler zu gestalten und bei Bedarf Anpassungen vorzunehmen, um die eigenen Lebensumstände optimal zu unterstützen.
Nachteile
Ein Haus mit Einliegerwohnung zu errichten bedeutet eine höhere Investition während der Bauphase, wobei zusätzliche Kosten von etwa 50.000 bis 80.000 Euro im Vergleich zu einem herkömmlichen Einfamilienhaus anfallen können.
Es besteht zusätzlicher Aufwand, die Einliegerwohnung sauber und intakt zu halten, sofern diese regelmäßig an neue Bewohner vermietet wird.
Privatsphäre und Zusammenleben
Das Zusammenwohnen mit einer weiteren Partei im gleichen Haus kann die persönliche Privatsphäre beeinträchtigen. Das tägliche Miteinander erfordert ein gewisses Maß an Nähe, das nicht jedem behagt. Es ist ratsam, mögliche Konflikte, wie die Nutzung gemeinsamer Bereiche wie des Gartens, vorab im Mietvertrag festzuhalten, um das Zusammenleben harmonisch zu gestalten.
Mietersuche und -management
Die Suche nach einem passenden Mieter kann mit Kosten und Aufwand verbunden sein, sei es durch die Beauftragung eines Maklers oder durch eigene Anzeigen auf Immobilienportalen. Der Prozess der Mietersuche in einem Haus mit Einliegerwohnung ist oft intensiver, da der persönliche Eindruck und die Beziehung zum Mieter eine größere Rolle spielen, insbesondere wegen der räumlichen Nähe.
Komplikationen beim Immobilienverkauf
Der Verkauf eines Hauses mit Einliegerwohnung kann unterteilt werden in den Verkauf der Einliegerwohnung selbst, falls diese rechtlich eigenständig ist, und den Verkauf des gesamten Objekts. Eine Herausforderung beim Verkauf der gesamten Immobilie besteht darin, dass ertragene Gewinne steuerpflichtig sein können, wenn die Immobilie innerhalb der zehnjährigen Spekulationsfrist verkauft wird und nicht selbst genutzt wurde. Dies kann zu einer Besteuerung des Gewinns nach dem persönlichen Einkommensteuersatz führen.
Für den Käufer kann ein Nachteil darin bestehen, dass eine vermietete Einliegerwohnung nicht sofort für persönliche Zwecke wie das Einziehen eines Familienmitglieds genutzt werden kann.
Fragen zum Thema Haus mit Einliegerwohnung







































