Atriumhäuser sind in der Regel um einen Innenhof herum gebaut, weshalb sie auch Hofhäuser heißen. Sie bieten ihren Bewohnern 5 Vorteile, die keine andere Bauform aufweist – und sind deswegen oft für ganz spezifische Wohnsituationen geeignet – mehr dazu im Folgenden. Atriumhäuser mit Innenhof wurden bereits im alten Ägypten errichtet. In der Antike übernahmen die Römer die Bau-Idee von den Etruskern und ergänzten die Atrien um einen Säulengang. Die Idee der Hofhäuser wurde in Spanien und Südamerika anhand des Patio weiterentwickelt und breitete sich vor allem in heißen Ländern des Südens aus. Das Atriumhaus findet sich auch in vielen Varianten in der arabischen und asiatischen Kultur.
Wie ein modernes Atriumhaus aussieht, wie hoch bei einem Atriumhaus die Kosten sind und wie man den Grundriss beim Hofhaus gestaltet, erfahren Sie auf dieser Seite.
Ein Atriumhaus, auch als Fertighaus, wird oftmals individuell geplant
Atrium- oder Hofhäuser bieten maximale Privatsphäre auf kleiner Fläche
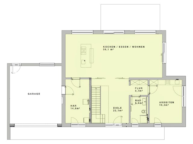
Der Grundriss eines Atriumhauses sorgt in den Innenräumen für viel Sonnenlicht
Hofhäuser können höhere Heizkosten wegen ihrer größeren Außenfläche verursachen – hohe Energieeffizienz schafft Abhilfe

Modernes Atriumhaus
In der heutigen Architektur Westeuropas werden die Hofhäuser als modernes Atriumhaus ebenfalls wieder aufgegriffen. Vor allem Bungalows werden in diesem Stil gebaut. Auch zweistöckige Stadthäuser, mediterran anmutende Bauten wie Toskanahäuser und japanisch inspirierte Atriumhäuser mit Zen-Garten im Innenhof gibt es in Mitteleuropa. Dieser Innenhof oder eben das Atrium ist dabei üblicherweise nicht überdacht, denn es geht ja genau darum, eine Außenfläche zu schaffen. Es gibt aber auch Konzepte für Atriumhäuser mit verglastem Innenhof. So entsteht ein geschützter heller Raum, ähnlich wie ein Wintergarten mitten im Haus.
Die Gründe für ein Atriumhaus sind oftmals:
- Nicht einsehbarer Außenbereich,
- mehr Tageslicht im Haus, insbesondere bei schwierigen architektonischen Bedingungen,
- reizvolle Gemeinschaftsflächen im Innern des Atriumhauses.
Atriumhaus-Grundriss planen
Hofhäuser individuell geplant
„In der Regel handelt es sich bei Atriumhäusern um geplante Häuser, die ganz individuell auf die jeweiligen Flächen zugeschnitten sind“, sagt Marcus Langheinrich von Langheinrich + Manke Architektur in Leipzig. Das Unternehmen hat bereits mehrere Atriumhäuser realisiert. Auf die Idee der Hofhäuser kamen Langheinrich + Manke, als ihnen ein älterer Kollege von Atriumhäusern berichtete, die er in der ehemaligen DDR realisiert hatte.
Neben Atriumhäusern vom Architekten gibt es aber auch Typen- und Fertighäuser. Ein Atriumhaus als Fertighaus wird beispielsweise in Form von Bungalows von Bien Zenker oder Okal angeboten. Generell ermöglichen es die meisten Fertighaushersteller, Ihr Traumhaus individuell anzupassen und so beispielsweise ein Grundmodell wie eine Stadtvilla um ein Atrium zu ergänzen – gegen einen Aufpreis.
So oder so: Es gibt verschiedene Möglichkeiten, beim Atriumhaus den Grundriss modern umzusetzen.
Klassischer Grundriss beim Atriumhaus mit Zugang zum Hof
Klassischerweise umschließt beim Atriumhaus-Grundriss das Gebäude einen offenen Innenraum von allen vier Seiten, heutzutage meist mit komplett verglasten Flächen. Wo genau dieser Hof seinen Platz im Haus findet, kommt allerdings auf verschieden Faktoren an.

„Der Grundriss eines Atriumhauses ist abhängig von der Fläche, auf der ein Hofhaus entstehen soll. Idealerweise wird der Innenhof vom Wohnzimmer und der Küche aus ebenerdig erreicht, so dass man draußen essen kann. Auch andere Zimmer, in denen man viel Licht haben möchte, werden gerne um den Innenhof herum gruppiert. WC, Flur und Bad hingegen müssen nicht zum Innenhof liegen – es sei denn, ein besonderer Wellness-Bereich eventuell sogar mit Sauna wird mit eingeplant.“
Atriumhaus-Grundriss: Moderne Varianten
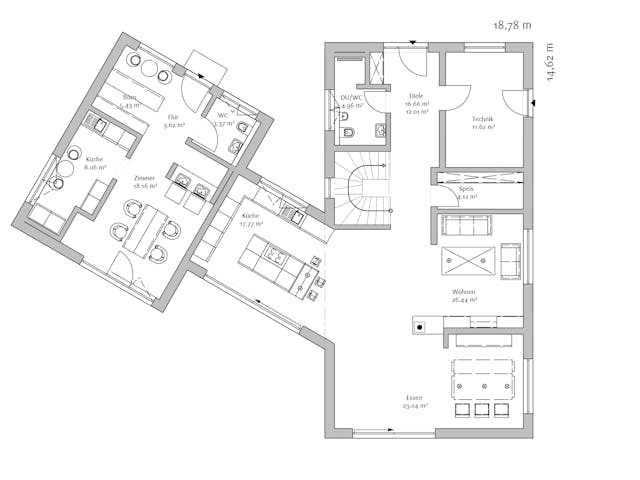
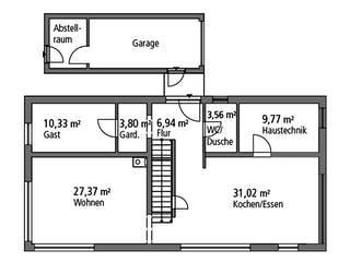
Es gibt aber auch für Atriumhäuser und Hofhäuser neue Beispiele moderner Grundrisse, in denen ein Flur oder große Koch-Ess-Wohnflächen um das Atrium herum verlaufen. Diese Form ist in den vergangenen Jahren interessant geworden und geht mit der Weiterentwicklung klassischer Grundrisse beim Hausbau einher. Hinzu kommen Atriumhäuser, die das Atrium nur andeuten und nicht alle vier Seiten vollständig umschließen. Dennoch bilden diese zu einer Seite offenstehenden Hofhäuser durch ihren Grundriss einen offenen Innenhof. Das kann zum Beispiel ein Haus in der Form eines L oder eines U sein, dazu kommt möglicherweise noch eine Garage oder ein anderes Nebengebäude.
Atriumhaus mit Pool
Gerade ein Atriumhaus-Grundriss, der modern mit einer offenen Hausseite zum Beispiel als Winkelbungalow in U-Form gestaltet ist, bietet sich für die Integration eines Schwimmbeckens an. Denn bei einem geschlossenen Grundriss eines Hofhauses wäre der Innenhof in den meisten Fällen zu klein.
Beim modernen Atriumhaus mit Öffnung zum Garten- und Terrassenbereich verhilft Ihnen der Grundriss nicht nur zu einer Extraportion Weitläufigkeit und Naturnähe. Beim Atriumhaus mit Pool sorgt die moderne Vollverglasung zusätzlich einerseits für noch mehr Licht im Inneren, und Sichtachsen zum Pool schaffen eine ganz besondere Atmosphäre.
Generell lässt sich das Atriumhaus mit Pool und auch der moderne, offene Grundriss beim Hofhaus allerdings nur auf einem entsprechend großen Grundstück mit größerem Baubudget umsetzen.
5 Vorteile von Atriumhäusern
Wie alle Bauformen hat auch das Atriumhaus im eigentlichen Sinne, also mit einem vierseitig umschlossenen Hof, wie das moderne, zu einer Seite geöffnete Hofhaus, Vor- und Nachteile.
Maximale Privatsphäre im Atriumhaus
Als größten Vorteil sieht Marcus Langheinrich, der vorwiegend in Städten baut, die Privatsphäre. „Atriumhäuser bei uns in Deutschland machen insbesondere dann Sinn, wenn man auf kleiner Fläche die maximale Privatsphäre erzielen möchte. Sie bieten eine gute Alternative zu einem Reihenhaus, in dem Gartenfläche an Gartenfläche grenzt.“ Anstatt also nur einen Teil des kleinen Grundstücks zu überbauen und dann eine kleine Gartenfläche zur Verfügung zu haben, wird so viel Fläche wie möglich überbaut – im Innern gibt es stattdessen ein Atrium.
Hofhäuser bieten Ruhe und Windschutz im Außenbereich
Ein weiteres Argument dafür, ein Atriumhaus zu bauen, ist die Ruhe, die man im Innenhof selbst in der Stadt genießen kann. „Sie können sich gewissermaßen von der Außenwelt abschotten, sowohl akustisch als auch mental“, sagt Danny Manke. Auch vor Wind bietet das Atriumhaus Schutz.
Atriumhaus-Grundriss sorgt für Sicherheit und Helligkeit
Der Innenhof kann durch große Fenster oder Glasfronten zur zusätzlichen Lichtquelle werden. Das ist besonders dort relevant, wo von außen wenig Fensterflächen möglich oder gewünscht sind. Zum Beispiel bei geschlossener Bebauung und engem Hinterhof.
Ein Vorteil ist zudem die Sicherheit, die ein geschlossenes Atriumhaus bieten kann. Da das Licht aus den innen liegenden, oft bodentiefen Fenstern kommt, können Atriumhäuser außen sogar komplett fensterlos sein. Das wird man in unseren Breitengraden kaum machen. Doch auch hier hat man bei der Gestaltung der Außenwände unter Sicherheitsaspekten mehr Freiheit.

Atriumhaus schafft Freiraum für Sauna-Fans und Eltern
Hofhäuser bieten weitere positive Besonderheiten. So kann es für Saunafans, die sich nach dem privaten Saunagang gerne draußen erfrischen möchten, einen speziellen Reiz ausüben: Im Atrium lassen sich Abkühlbecken und Ruheplätze unterbringen. Auch kleinere Kinder können unter Beobachtung bleiben, wenn sie an der frischen Luft – etwa in einem Sandkasten im Atrium – spielen.
Soziale Funktion eines modernen Atriumhauses
Auch die soziale und psychologische Funktion des Atriumhauses wird immer wieder von der Wissenschaft betont. Wie zeitgemäß die Urform des Atriumhauses wieder ist, hat zuletzt der Stardesigner Sebastian Herkner gezeigt. Er entwarf für die Kölner Möbelmesse die idealtypische Wohninstallation eines runden Hauses, das um ein gemeinsames Zentrum herum angeordnet ist. Sebastian Herkner: „Wir wollten mit diesem Haus das Thema Gastfreundschaft, Offenheit, Zeit miteinander verbringen transportieren – das, was ich auch immer auf Reisen erlebe in anderen Kulturen.“
Nachteile des Atriumhauses
Daneben gibt es natürlich auch einige Nachteile beim Atriumhaus.
Atriumhaus-Freifläche entfällt im Winter
Die Freifläche im Innenhof eines Atriumhauses kann das Zusammenleben im Sommer bereichern, entfällt aber in unseren Breitengraden im Winter. Viele entscheiden sich deshalb doch lieber für ein klassisches Haus mit großzügigem Wohn- und Essbereich.
Je nach Höhe und Lage des Hauses kann im Außenbereich, also im Atrium, extrem viel Schatten entstehen. Die Ausrichtung des Atriumhauses muss also genau bedacht werden.

Eventuell höhere Heizkosten in Hofhäusern
Da das Atriumhaus über zusätzliche Außenwände verfügt, sind die Heizkosten in der Regel höher als für ein herkömmliches Haus mit ähnlicher Wohnfläche. Dieser Kostenfaktor ist jedoch – zumindest was zweistöckige Stadthäuser in Form von Reihenhäusern betrifft – anders. Marcus Langheinrich: „Wir haben Häuser mit und ohne Atrium in ihrem Verbrauch miteinander verglichen und keine nennenswert höheren Kosten feststellen können.“ Auch beim Atriumhaus als Fertighaus verhindert die hervorragende Wärmedämmung große Energieverluste.
Atriumhaus-Grundriss modern: Größeres Baugrundstück
Nicht zuletzt brauchen Sie im Vergleich zu einem gleich großen Haus ohne Innenhof ein wesentlich größeres Baugrundstück, wenn Sie sich einen Atriumhaus-Grundriss mit moderner U-Form wünschen. Das größere Grundstück erhöht dann natürlich auch Ihre gesamten Baukosten.
Was kostet ein Atriumhaus?
Für ein durchschnittliches Atriumhaus als Kosten oberhalb der Bodenplatte muss man zirka 2.700 Euro pro Quadratmeter kalkulieren – so viel, wie für jedes andere Haus auch. Da ein Atriumhaus aber oftmals große Fenster benötigt und auch mit etwas höheren Ansprüchen der Bauherren an die Innenausstattung einhergeht, können die Kosten auch bei 4.000 Euro pro Quadratmeter oder darüber liegen. In der Regel werden Atriumhäuser mit Flachdach konzipiert. Kommen außerordentliche Dachkonstruktionen hinzu, liegen die Kosten höher. Allein für die Planung eines solchen Atriumhauses inklusive Statik, Haustechnik und Wärmeschutz liegen die Kosten zum Beispiel bei Langheinrich + Manke bei rund 380 Euro pro Quadratmeter. Weitere Atriumhaus-Kosten beziehen sich auf das Grundstück, Extras wie den Pool, das Fundament und die Baunebenkosten.
Das Atriumhaus hat eine lange architektonische und kulturgeschichtliche Entwicklung durchlebt. Ein modernes Atriumhaus greift diese Vergangenheit auf und holt sie mit viel Glas und geradlinigem, offenem Grundriss in die Gegenwart. Stilistisch gesehen sind die Hofhäuser definitiv ein Hingucker, und der Innenhof sorgt für besonders viel Privatsphäre. Ein Atriumhaus-Grundriss in moderner Fassung ist dabei oft zu einer Seite geöffnet, um beispielsweise Zugang zu einem größeren Pool zu ermöglichen.
Ob als auf Ihre Ansprüche maßgeschneidertes Atriumhaus als Fertighaus oder von einem Architektur-Büro geplant, bei dieser Grundrissgestaltung ist dann aber auch ein größeres Grundstück nötig. Dementsprechend sind bei einem solchen Atriumhaus auch die Kosten höher – auch weil die durchgehenden Glasfronten mit Isolierglas, ein hoher Energiestandard und häufig besonders exklusive Ausstattung ihren Preis haben.


























