Beim Hausbau mit Architekt plant dieser das Haus des Bauherrn ganz nach seinen persönlichen Wünschen und passt es perfekt an das vorhandene Grundstück an. Das ist zwar oft nicht ganz billig, doch dafür erhält der Bauherr ein Unikat, das genau seinen Wünschen entspricht. Ob beim freien Architektur-Büro oder beim Architekten-Fertighaus, eine solche Planung erfordert nicht nur professionelles Engagement, sondern auch Ihre eigene Kreativität und Mitarbeit, damit Sie ein wirklich individuell geplantes Haus umsetzen können. Auf Wunsch steht Ihnen der Architekt beim Hausbau dabei in allen Bauphasen zur Seite. Die Betreuung durch den Profi hat allerdings ihren Preis – ein freies Architektenhaus ist oft teurer als eines von einem Full-Service-Anbieter, genau wie ein Fertighaus mit durch den Architekten des Anbieters eingeplanten Anpassungen teurer ist als das Standardmodell des Herstellers. Dafür erhält man in beiden Fällen ein Gebäude, das bis ins kleinste Detail den eigenen Wünschen und Anforderungen entspricht.
Wie Sie einen passenden Architekten für den Hausbau finden, was er kostet und welche Vor- und Nachteile ein Architektenhaus hat, erklären wir auf dieser Seite.
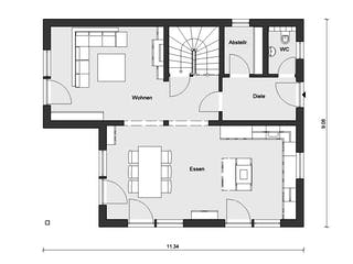
Ein Architekt plant den Hausbau gemeinsam mit Ihnen anhand eines vorhandenen Grundstücks mit hochindividuellem Design
Bei Hausbau mit Architekt sind die Kosten aufgrund des separaten Honorars oft etwas höher als beim Bau mit einem Haushersteller
Auch beim Fertighaus ist ein Architekt des Hausanbieters für die Planung zuständig und kann Ihr Zuhause auf Wunsch und gegen Aufpreis größtmöglich individualisieren

Hausbau mit Architekt: Grundlagen
Architekt darf sich in Deutschland nur nennen, wer in der Architektenliste der Architektenkammer eingetragen ist. Voraussetzung dafür sind ein Hochschulstudium sowie in den meisten Bundesländern mindestens zwei Jahre Berufserfahrung. Nur wer als Architektin eingetragen ist, darf Bauanträge einreichen. Das Aufgabenfeld einer Architektin oder eines Architekten beim Hausbau ist breit: Im Prinzip betreut sie oder er den Bauherren vollumfänglich von Anfang an bis zur Fertigstellung des Gebäudes in allen Belangen. In diesem Fall erhält sie oder er eine Architektenvollmacht und darf beispielsweise auch die Unternehmen, die letztendlich die Arbeiten ausführen, beauftragen.
Die wesentlichen Tätigkeiten eines Architekten beim Hausbau sind allerdings die Vor-, Entwurfs- und Genehmigungsplanung vor Baubeginn und die Ausschreibung der einzelnen Gewerke. Aber auch das Baumanagement und die Kostenkontrolle während der Bauausführung gehören zu seinen Pflichten.
Wer einen Architekten für seinen Hausbau gefunden hat, kann also sicher sein, dass die formelle Qualifikation stimmt.
Den richtigen Architekten zum Bauen finden
Der richtige Architekt kann den Baustil, den sich der Bauherr vorstellt, gut umsetzen und zu einem Preis bauen, den sich der Bauherr leisten kann. Ob diese Dinge der Fall sind, finden Bauherren nur heraus, indem sie mit verschiedenen Architekten reden und sich ansehen, welche Gebäude diese bisher verwirklicht haben. Bei diesen Gesprächen sollten Bauherren möglichst offen kommunizieren – dann kann auch der Architekt möglichst frühzeitig einschätzen, ob er die Vorgaben des Bauherrn umsetzen kann oder nicht.
Dennoch bedarf die Suche nach dem passenden Architekten für Ihr Haus einiger Recherche. So sollte man sich Referenzgebäude der infrage kommenden Architekten anschauen und herausfinden, ob diese dem eigenen Stil entsprechen. Auch ganz wichtig: Bauherr und Architekt sollten gut miteinander auskommen. Denn wenn beide aneinander vorbeireden, kann die Zusammenarbeit, die ja über einen längeren Zeitraum hinweg andauert, beschwerlich werden.
Mit einem Architekt ein Haus bauen: Ablauf
Während Typenhaushersteller und Bauträger oft auch Grundstücke verkaufen oder vermitteln, muss sich der Bauherr eines Architektenhauses selbst um Grund und Boden kümmern. Ein Architekt ist beim Hausbau üblicherweise nur Planer und kein Makler.
Spätestens dann, wenn ein Grundstück vorhanden und die Entscheidung zum Bauen gefallen ist, sollten Bauherren einen passenden Architekten finden und sich mit ihm darüber einigen, welche Leistungen er übernimmt - und zu welchem Preis.
Eine recht transparente Möglichkeit der Abrechnung ist die Honorarordnung für Architekten und Ingenieure (HOAI) – mehr dazu weiter unten –, die die Arbeit des Architekten beim Hausbau in neun Leistungsphasen eingeteilt:
- Die Grundlagenermittlung
- Die Vorplanung samt Kostenschätzung
- Die Entwurfsplanung samt Kostenberechnung
- Die Genehmigungsplanung
- Die Ausführungsplanung
- Die Vorbereitung der Vergabe der einzelnen Gewerke
- Die Beauftragung der Handwerks- und Bauunternehmen
- Die Betreuung der Baustelle samt Dokumentation
- Die Objektbetreuung nach Fertigstellung
Diese Leistungsphasen sind frei kombinierbar, auch wenn es beispielsweise wenig sinnvoll wäre, beim Hausbau einen Architekten ausschließlich mit den Phasen 3 und 5 zu beauftragen. Möglich wäre aber, einen Architekten mit der Planung zu betrauen, den Handwerkern selbst den Auftrag zu erteilen und einen Baubegleiter zu engagieren, der die Baustelle überwacht.
Zu Beginn der Zusammenarbeit – also in Leistungsphase 1 – werden bei einem klassischen Architektenhaus nun alle Grundlagen des Hausbaus ermittelt. Dazu gehören die Beschaffenheit des Grundstückes, die Vorgaben des Bebauungsplanes, die Vorstellungen der Bauherren sowie mögliche Einschränkungen durch das Budget.
Anschließend wird ein Architektenhaus in vier Stufen geplant. Die Vorplanung dient dazu, Vorstellungen der Bauherren und tatsächliche Baukosten aufeinander abzustimmen. Auf Basis der Entwurfsplanung werden die voraussichtlichen Gesamtkosten berechnet und der Bauherr kann sich ein genaues Bild seines künftigen Eigenheims machen. Um eine Baugenehmigung zu erhalten, müssen bestimmte Pläne und Anträge eingereicht werden. Auch darum kümmert sich der Architekt beim Hausbau und passt die Pläne bei Bedarf an die Vorgaben des Bauamtes an. Auf Basis des genehmigten Planes erstellt der Architekt die Ausführungsplanung und auch alle Unterlagen, die die Handwerksunternehmen brauchen.
Nun geht es an den Hausbau selbst, den der Architekt leitet, betreut und dokumentiert. Der Bauherr muss dabei nur so viel tun und vor Ort sein, wie er es selbst möchte. Er kann alle Arbeiten komplett an den Architekten abgeben und ein bezugs- und schlüsselfertiges Haus beauftragen. Er kann aber auch ein Ausbauhaus bestellen und dann einzelne handwerkliche Leistungen selbst ausführen. Passionierte Heimwerker packen sogar schon beim Rohbau mit an.
Für den Architekten ist bei Hausbau die Arbeit nach Schlüsselübergabe je nach Auftrag aber auch noch nicht beendet, zumindest nicht, wenn der Bauherr ihn auch mit Leistungsphase 9, also der Objektbetreuung beauftragt hat. In diesem Fall kümmert sich der Architekt nach dem Hausbau auch um möglicherweise auftretende Mängel. Es ist seine Aufgabe, die Mängelbeseitigung bei den Handwerkerunternehmen durchzusetzen. Das gilt solange, bis die Gewährleistungsfristen der Handwerkerleistungen abgelaufen sind. Erst anschließend beginnt seine eigene Gewährleistungsfrist, die aber nur jene Mängel betrifft, die aufgrund von Fehlern des Architekten beim Hausbau entstanden sind. Das können aber Mängel sein, die er bei seiner Schlusskontrolle hätte entdecken müssen.
Moderne Architektenhäuser: Bauweisen & Baustile
Ein Architektenhaus ist in keinster Weise auf bestimmte Stile oder Bauweisen festgelegt. Wenn Sie mit einem freien Architekten ein Haus bauen, kann dieses grundsätzlich in jeder Form geplant werden, ob als modernes Massivhaus, extravagantes Holzhaus, mit Glas, Stahl und Beton oder als rustikales Architekten-Fertighaus im Landhausstil. Allerdings sind Architekten beim Hausbau möglicherweise auf bestimmte Stile oder Bauweisen spezialisiert. Sie kennen sich also beispielsweise mit Holzbauweisen besonders gut aus, haben für diese Lösungen parat, kennen wiederum Statiker, die sich im Holzbau besonders gut auskennen oder haben diverse Zimmereiunternehmen an der Hand. Auch bei den jeweiligen Hausanbietern sind Massiv- oder Fertighaus-Architekten beschäftigt, die eine hohe Expertise in ihrem jeweiligen Spezialgebiet haben und – gegen Aufpreis – die Grundversionen der angebotenen Häuser zu Ihrem individuellen Traumhaus umwandeln.
Hausbaukataloge bestellen & sich inspirieren lassen
Mit dem Katalog-Assistenten in nur 2 Minuten passende Hauskataloge finden.
Jetzt Bauprojekt startenEine Bauweise nimmt allerdings eine Sonderstellung ein: Die Fertigbauweise. Denn die basiert zumindest teilweise auf serieller Herstellung in der Fabrik. Möglich wäre es einerseits, den Architekten mit einer Grobplanung zu beauftragen und ab diesem Zeitpunkt mit einem Fertighausunternehmen weiterzuarbeiten. Der Bauherr bezahlt dem Architekten nur die beauftragte Leistungsphase, in diesem Fall beispielsweise die Phasen 1 bis 3 sowie 8 und 9, wenn der Architekt als Bausachverständiger auch die Baustelle betreuen soll.

“Ein Architektenhaus als Fertighaus können Sie bei den meisten Fertighausherstellern bauen, die auf Wunsch extravagante, in jedem Fall aber stark individualisierte Haustypen, -formen und auch Stile anbieten. Ein solches Fertighaus mit Architekten-Anpassungen wird damit zu einem ganz individuellen Eigenheim mit einer sehr persönlichen Note. Dass bei einem solchen Fertig-Architektenhaus die Kosten höher ausfallen als beim kostengünstigen Standardhaus des Herstellers liegt dann eben an der Individualisierung.”




Hausbau mit Architekt: Kosten
Architekten und ihre Auftraggeber können das Honorar frei verhandeln. Eine Möglichkeit ist, wie zuvor angesprochen, die Abrechnung nach der Honorarordnung für Architekten und Ingenieure (HOAI), an die Architekten früher per Gesetz gebunden waren. Diese schlägt bestimmte Honorarsätze für die einzelnen Leistungsbereiche eines Architekten vor, wobei es auch noch Staffelungen je nach Schwierigkeitsgrad des Bauvorhabens gibt. Für die Erfüllung der einzelnen Leistungen ist jeweils ein gewisser Prozentsatz des Gesamthonorars fällig.
Architekt fürs Haus: Kosten Honorar
Das Gesamthonorar des Architekten liegt als Faustformel in der Regel bei rund 15 Prozent der Baukosten, kann sich aber je nach Vertrag auch weit darüber oder darunter einpendeln. Das ist eine Menge Geld. Wer beispielsweise mit einem Architekten ein Haus für 300.000 Euro baut, kann ein Honorar von ungefähr 45.000 Euro veranschlagen, womit das Haus insgesamt 345.000 Euro kostet. Doch dieser Gesamtpreis ist nicht unbedingt höher als der von einem Fertig- oder Bauträgerhaus. Auch dort sind Architekten oder Bauingenieure angestellt, die bezahlt werden wollen. Die Kosten sind allerdings in den Gesamtpreis mit eingerechnet. Wer ein Architektenhaus baut, baut also nicht zwangsläufig teurer. Im Gegenteil kann man sogar sparen, weil der Architekt nur das baut, was der Bauherr tatsächlich braucht.
Grundsätzlich ist es möglich, den Architekten auch nur mit einem Teil der in der HOAI aufgeführten Leistungen zu beauftragen. Das bietet sich allerdings nur für sehr erfahrenen Bauherren an, denn Laien haben es oft schwer, bei Ausschreibungen die Unterschiede zu erkennen.


Die Frage, ob beim Hausbau mit Architekten die Kosten teurer als mit einem Bauunternehmen sind, lässt sich pauschal nicht beantworten. Es gibt durchaus Architekten, die auf preiswertes Bauen spezialisiert sind, im Schnitt dürften Architektenhäuser aber teurer sein als ein vergleichbares Standardmodell eines Hausherstellers. Nicht die Art und Weise der Planung macht ein Haus teuer, sondern eher die verwendeten Materialien, eine aufwändige Bauweise und hochwertige Innenausstattung. Zu den Kosten für das Haus kommt beim Architekten natürlich noch sein Honorar, das frei verhandelbar ist. Allerdings ist das vom Architekten geplante Haus auch ein Unikat und ein Teil der Mehrkosten lässt sich vielfach durch eine besonders hochwertige Ausstattung begründen. Eine wertigere Ausführung bedeutet aber auch beim Massiv- oder Fertighaus vom Hausanbieter einen höheren Preis.
Beim Architektenhaus Kosten sparen
Trotzdem hat auch der Bauherr, der den Architekten mit dem Hausbau beauftragt, viele Einsparmöglichkeiten: Das fängt schon bei der Planung des Architektenhauses an sich an: Einfache Baukörper und Bauformen sind günstiger herzustellen als beispielsweise solche mit vielen Erkern. Wer günstig bauen will, sollte möglichst klein und möglichst einfach bauen. Dabei kann ein Architekt gleich Konzepte mitentwickeln, wie der geringere Platz möglichst gut genutzt werden kann. Außerdem kann er das Haus so planen, dass zu einem späteren Zeitpunkt bei Bedarf möglichst einfach an- oder ausgebaut werden kann.
Der Verzicht auf bestimmte Ausstattungsdetails hilft bei weiteren Kosteneinsparungen, sollte aber wohl überlegt werden, da eine spätere Nachrüstung kaum möglich ist. Ein nicht unerhebliches Einsparpotenzial haben Bauherren zudem durch Eigenleistungen. Wenig geübte Heimwerker sollten sich hier aber auf Malerarbeiten oder die Begrünung der Außenanlagen beschränken. So können Sie zumindest hier am Handwerkerlohn sparen: Fliesen legen oder Tapeten kleben schaffen viele Bauherren selbst. Wer eher organisatorisch begabt ist, kann den Architekten mit der Planung beauftragen und die Bauleitung eigenhändig übernehmen. Hier ist die Herausforderung, die Arbeiten der einzelnen Gewerke aufeinander abzustimmen. Auch können Bauherren andere Leistungsphasen weglassen, etwa die Baubegleitung oder die Objektbetreuung nach Fertigstellung.
Wer den Keller sinnvoll ins Gesamtkonzept des Architektenhauses integriert, kann hier Geld sparen, weil unterirdischer Raum günstiger sein kann als oberirdischer. Wer den Keller allerdings nicht wirklich braucht und dort nur immer mehr Dinge ansammelt, zahlt drauf. Die Frage, welche Wohn- oder Nutzräume sinnvollerweise im Keller Platz finden, sollte also gut durchdacht sein.


Bauen mit Architekt: Die Vor- und Nachteile
Wenn Sie mit einem Architekten ein Haus bauen, hat dies bestimmte Vor- und Nachteile:
3 Vorteile eines Architektenhauses
Maximale Individualisierung möglich
Der große Vorteil der Zusammenarbeit mit dem Architekten beim Hausbau ist die Möglichkeit, ein frei und völlig unabhängig geplantes Unikat zu erstellen, sofern dies im Rahmen des Baurechts genehmigungsfähig ist. Denn bestimmte Abstandsflächen oder Dachneigungen müssen freilich immer eingehalten werden. Doch gerade bei schwierigen, weil unregelmäßig geschnittenen Grundstücken oder bei einem starken Gefälle, kann der Architekt beim Haus das Optimum der Möglichkeiten herausholen und bringt zusätzlich einen ganz persönlichen Stil mit ein. Dieser Vorteil gilt übrigens auch für die meisten Massiv- und Fertighausanbieter, die gegen Aufpreis so gut wie alle Bauwünsche möglich machen.
Freie Auswahl der Gewerke
Wer sich für den Architekten beim Hausbau als Partner entscheidet, vergibt in der Regel die Bauaufträge für die einzelnen Gewerke nach einer Ausschreibung des Architekten selbst an verschiedene Handwerksunternehmen. Damit ist die Auswahl der Gewerke wie beispielsweise beim Fertig-Ausbauhaus freier als bei der Zusammenarbeit mit einem schlüsselfertigen Haushersteller, was noch individuellere Gestaltung ermöglicht, wenn Sie sich beispielsweise eine ganz spezielle Putztechnik wünschen. Andererseits ist dies aber natürlich auch mit mehr Aufwand in Bezug auf Beaufsichtigung der Handwerker und auch Gewährleistung verbunden. Ist der Architekt, um das Haus zu bauen, mit einer Architektenvollmacht ausgestattet, kümmert er sich auch um die Beauftragung aller Gewerke und um die Kontrolle der Handwerker. Er ist dann der einzige Ansprechpartner des Bauherren. Das heißt auch, dass der Architekt alle Unstimmigkeiten mit Handwerkern und Baufirmen diskutiert. Für Bauherren kann das, ähnlich wie beim schlüsselfertigen Bau, sehr zu einer entspannten Bauzeit beitragen.
Auf Wunsch Betreuung auch nach dem Hausbau
Architekten übernehmen auf Wunsch die Betreuung auch nach der Bauzeit. Bis zum Ende der Gewährleistung kümmern sie sich beispielsweise um eventuell auftretende Mängel und haben damit einen vergleichbaren Vorteil wie bezugs- und schlüsselfertige Anbieter.
Nachteile Architektenhaus
Architektenhaus-Kosten oft höher
Die Planungskosten für ein Gebäude, das in gleicher oder ähnlicher Ausführung mehrfach von einem Bauträger oder auch Hausanbieter errichtet wird, sind geringer als beim Haus vom Architekten, das nur einmal gebaut wird. Auch bei den reinen Baukosten ergeben sich oft geringere Kosten als beim Bau mit dem Architekten: Bauunternehmen, die viele Gebäude errichten, können oft günstigere Preise mit den ausführenden Handwerksunternehmen aushandeln.
Mehr Zeitaufwand für den Bauherren
Zwar kann sich ein Bauherr theoretisch dazu entscheiden, dem Architekten beim Hausbau freie Hand zu geben. Wer aber sein persönliches Traumhaus erhalten will, wird für einen längeren Zeitraum sehr zeitintensiv beim Hausbau mit dem Architekten zusammenarbeiten müssen. Denn immerhin sollen selbst kleinste Details geklärt werden. Auch entscheidet der Bauherr – anders als beim Bauträgerhaus – mit welchen Handwerkern zusammengearbeitet wird.
Grundstückssuche
Das Bauträgerhaus wird meist mit vorhandenem Grundstück erworben, und auch viele Hausanbieter bieten einen Grundstücksservice. Wer mit einem Architekten ein Haus bauen will und noch kein eigenes Grundstück hat, muss sich selbst auf Grundstückssuche begeben. Doch gerade in Ballungsräumen sind die Grundstücke knapp. Außerdem ist darauf zu achten, ob auf den infrage kommenden Grundstücken überhaupt so gebaut werden darf, wie es sich der Bauherr vorstellt. Denn die Bauordnung oder ein vorhandener Bebauungsplan begrenzen oft die gestalterischen Spielräume.
Architektenhaus: Garantien und Gewährleistungen
Der Architekt haftet beim Hausbau für Planungsfehler und Fehler, die aufgrund mangelnder Bauüberwachung entstehen, nicht jedoch für Fehler der Handwerker. Ausnahme: Er hätte sie bei vertragsgemäßer Bauüberwachung erkennen müssen. Für die Gewerke der einzelnen Handwerker gilt: jeder beteiligte Handwerker haftet separat für das von ihm umgesetzte Gewerk – allerdings seinem Auftraggeber gegenüber. Und das kann auch der Architekt sein.
Die Gewährleistungsfrist für Bauleistungen beträgt üblicherweise fünf Jahre nach den Regelungen des Bürgerlichen Gesetzbuches (BGB). Will ein Handwerker stattdessen die Regelungen der Vergabe- und Vertragsordnung (VOB) vereinbaren, so sind nur diejenigen Regelungen wirksam, die den Bauherren nicht benachteiligen. Grund: Bei der VOB handelt es sich um sogenannte allgemeine Geschäftsbedingungen und für solche gilt: Klauseln, die den Bauherrn unangemessen benachteiligen, sind unwirksam. Klauseln, die den Bauherrn dagegen besser stellen, bleiben wirksam. Eine Verkürzung der VOB-üblichen Gewährleistungspflicht von fünf auf vier Jahre ist somit unwirksam. Doch Achtung: Wenn der Bauherr selbst über seinen Architekten die VOB in den Vertrag mit dem Handwerker einbringt, so ist er für das Vertragswerk verantwortlich. Er gilt dann als sogenannter Verwender der Klauseln, dem sich der Handwerker beugen muss, will er den Auftrag erhalten. Der Handwerker wäre in diesem Fall der schwächere, schützenswerte Vertragspartner mit der Folge, dass diejenigen Klauseln, die für ihn günstig sind, wirksam bleiben, während diejenigen, die ihn benachteiligen, unwirksam sind. In diesem Fall betrüge die Gewährleistungsfrist des Handwerkers nur vier Jahre, sofern dies VOB-konform vereinbart wurde.
Letztendlich heißt das alles, dass, wenn Sie mit einem Architekten bauen, dieser, wenn er das komplette Leistungsspektrum erfüllt, möglicherweise erst zehn Jahre nach Ende des Baus aus der Haftung entlassen wird. Denn er kann seinen Auftrag erst dann komplett abschließen, wenn die Gewährleistungsfrist der Handwerker erlischt. Im Rahmen der Nachbetreuung müsste er also kurz vor Ablauf der Handwerkergewährleistung also das Bauwerk noch einmal kontrollieren. Damit ist sein Auftrag beendet – und seine fünfjährige Gewährleistungsfrist auf das Gesamtpaket beginnt.
Alternativen zum Bauen mit Architekt
Wer keinen Architekten mit der Planung des eigenen Hauses beauftragen will, sollte wissen, dass auch manche Bauträger und die meisten Bauunternehmen individuelle Planungen ermöglichen, die über Details wie die Auswahl der Fliesen oder des Bodenbelags hinausgehen. Auch bei Fertighäusern sind wie gesagt eine Vielzahl von Individualisierungen möglich.



Wollen Sie Ihr Traumhaus mit einem Architekten bauen, dann sollten Sie idealerweise bei freier Planung schon über ein Grundstück verfügen. Dann gilt es, anhand bereits umgesetzter Projekte und durch viel persönlichen Austausch den idealen Architekten für Ihren Hausbau zu finden. Auf Wunsch können Sie, wenn Sie mit einem Architekten ein Haus bauen, diesen für alle Leistungen bis weit über die Baufertigstellung hinaus beauftragen. Die absolute Individualisierbarkeit Ihres Bauvorhabens und die freie Verhandelbarkeit des Honorars lassen bei einem Architektenhaus die Kosten oft umfangreicher werden als bei einem auf standardisierten Prozessen basierenden Objekt eines Massiv- oder Fertighausanbieters. Aber: Auch ein Massiv- oder Fertighaus wird vom Architekten des jeweiligen Hausanbieters sorgfältig geplant und zu Mehrkosten auf Ihre Ansprüche maßgeschneidert. Letzten Endes kostet ein stark individualisiertes und besonders hochwertig ausgestattetes Haus immer mehr, egal ob als frei geplantes Architektenhaus oder Architekten-Fertighaus.








































































