Wenn vollgestopfte Stauräume und ausschließlich der Dekoration dienendes Mobiliar Ihnen ohnehin ein Graus sind, sollten Sie das Wohnkonzept des Minihauses näher betrachten. Denn Downsizing und minimalistisches Lebensgefühl haben längst schon in der Architektur Ihren Platz gefunden. Neben der Freiheit von als Ballast empfundenem Überfluss beim Wohnen hat ein Minihaus zu bauen auch einen ganz praktischen Vorteil: Je kleiner Sie bauen, desto geringer werden auch Ihre Baukosten – das ermöglicht ein Minihaus, welches es in verschiedenen Haustypen wie dem Tiny House oder Modulhaus gibt. All diese Wohnformen haben gewisse Gemeinsamkeiten und Unterschiede.
Auf dieser Seite finden Sie einen Überblick über die 9 wichtigsten Variationen von Minihäusern, Minihaus-Grundrisse, die Kosten für ein Minihaus und erfahrene Anbieter.
Minihaus: Das Wichtigste in Kürze
Als Minihaus werden ganz allgemein Häuser bis 100 qm Wohnfläche bezeichnet
Sie können ein Minihaus als Fertighaus oder in anderen Bauweisen bauen
Durchschnittlich liegen Minihaus-Kosten pro Quadratmeter bei 2.700 Euro ohne Grundstück, Nebenkosten und Fundament
Was ist ein Minihaus?
Ein Minihaus ist ein kleines Haus bis 100 qm Wohnfläche, eine darüber hinausgehende einheitliche Definition gibt es nicht. So können unter dem Begriff Minihaus verschiedene Haustypen verstanden werden, die für unterschiedliche Zwecke geeignet sind. Wenn Sie ein Minihaus bauen, kann dieses mehrere Etagen haben oder – typisch für Minihäuser für Senioren – ebenerdig als Bungalow geplant werden, das Minihaus kann als Fertighaus, in Massiv- oder Blockbauweise konstruiert werden, es kann eher spartanisch oder sogar exklusiv ausgestattet sein. Als Dachform passt zum Minihaus alles vom modernen Flachdach mit Begrünung bis zum praktischen Satteldach.
Kurz und gut: Ein Minihaus zu bauen eröffnet Ihnen grundsätzlich genauso viele Möglichkeiten wie ein regulär großes Haus, stellt aber auch die gleichen Bedingungen: Eine Baugenehmigung ist in der Regel Pflicht.
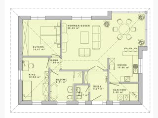
Grundrisse Minihaus
Die 9 Spielarten von Minihäusern
- Minihaus als Tiny House: Hier geht es in erster Linie darum, auf kleiner Fläche zu leben und den Boden nach Möglichkeit nicht oder nur wenig zu versiegeln. Gelegentlich wird folglich ein solches Minihaus auf Rädern errichtet und muss dann für den Transport zusätzlich straßenverkehrsrechtlich zugelassen werden.
- Minihaus als Singlehaus: Ähnliches gilt für das Minihaus, das für eine Person konzipiert ist und aus diesem Grund wenig Wohnfläche benötigt.
- Minihaus als Modulhaus: Ein solches Minihaus besteht aus Baumodulen, die einzeln oder kombiniert verwendet werden können. Ein Minihaus in Modulbauweise bietet also die Möglichkeit, relativ flexibel zu wohnen. So könnte es beispielsweise ein Basismodul geben und zusätzliche Module zum Schlafen und Arbeiten, die bei Bedarf einfach an- oder zurückgebaut werden können. Eventuell kann ein solches modular gebautes Minihaus komplett im ganzen geliefert werden.
- Minihaus als Ferien- oder Wochenendhaus: Wer nur wenig Zeit in einem Haus verbringt, etwa nur an Wochenenden, möchte es vielleicht etwas kleiner, einfacher und möglichst günstig bauen. Eventuell ist für ein solches, nur für die Freizeit genutztes Minihaus keine Baugenehmigung, sondern ein einfacheres Antragsverfahren ausreichend.
- Minihaus als kleines Wohnhaus in Baulücken: Einige Grundstücke ermöglichen nichts anderes als Minihäuser, etwa sehr schmale Grundstücke in Innenstadtlage.
- Minihaus als günstige Bauoption: Wer eine hochwertige Ausführung beim Hausbau wünscht, aber trotzdem sparen möchte, kann die Kosten mit einem Minihaus senken – in gleicher Qualität zahlen Sie bei kleinerer Wohnfläche weniger.
- Minihaus als Containerhaus: Ein Minihaus kann ebenfalls bei entsprechender Baugenehmigung aus Containern errichtet werden.
- Eingeschossige Minihäuser für Senioren: Als barrierearmer Bungalow eignen sich Minihäuser für Senioren, die so unabhängig wohnen können und wenig Aufwand in die Pflege Ihres kleinen Eigenheims stecken müssen.
- Minihaus als Gartenhaus: Ein ganz anderer Ansatz wäre ein Minihaus, das nicht als Wohnraum, sondern für Aufbewahrungszwecke im Garten gedacht ist. Aber lassen Sie Vorsicht walten: Auch hier kann bereits eine Baugenehmigung oder zumindest eine Bauanzeige nötig sein, informieren Sie sich vorher beim zuständigen Bauamt.
Minihaus als Fertighaus & Modulbau
Massives Minihaus bauen
Minihaus schlüsselfertig bauen

“Ein Minihaus schlüsselfertig zu bauen ist die unkomplizierteste Methode, das eigene kleine Traumhaus zu erhalten. Denn Baupartner, die ein Minihaus schlüsselfertig anbieten, planen dieses zusammen mit Ihnen genau so, wie Sie sich Ihr Zuhause vorstellen. Im Idealfall kümmert sich dann der Anbieter um alle weiteren Schritte von Grundstücksservice, Bauantrag über Bestellung und Kontrolle der Gewerke bis hin zur Installation der Solaranlage.
Prüfen Sie hierfür aber ganz genau die angebotene Leistungsbeschreibung, denn welche Arbeiten, Ausstattungen und Ähnliches beim Minihaus mit schlüsselfertiger Übergabe abgedeckt sind, setzt nur der Bauvertrag fest. Was hier nicht drinnen steht, wird auch nur gegen Aufpreis geleistet. Im Regelfall sollten bei einem Minihaus in schlüsselfertiger Ausführung aber so gut wie alle Innenausbauarbeiten abgeschlossen sein, eventuell müssen Sie noch Streichen und Fußböden verlegen.
Da im Vergleich zum Ausbau- und Bausatzhaus beim Minihaus die schlüsselfertige Ausbaustufe wesentlich mehr enthält, sind auch die Preise entsprechend höher. Allerdings müssen Sie selbst natürlich für weitere Materialien aufkommen, Handwerker wie für die Elektroinstallation bezahlen und auch Ihre eigene Arbeitszeit anrechnen, wenn Sie beispielsweise für Ihr Minihaus den ganzen Innenausbau in Eigenleistung erledigen.”
Minihaus schlüsselfertig: Angebote & Preise
Mehr zu den Minihaus-Preisen bei schlüsselfertiger Abnahme erfahren Sie weiter unten im Abschnitt zu den Baukosten.
Minihaus selbst bauen
Wollen Sie bei Ihrem Minihaus als Fertighaus oder auch in anderen Bauweisen selbst Hand anlegen, können Sie selbst entscheiden, wie viel Arbeit und Zeit Sie investieren wollen und können. Ob Bauherren und Heimwerker ihr komplettes Minihaus selbst bauen können, also ein Minihaus als Bausatz wählen sollten, hängt neben dem handwerklichen Können und dem zeitlichen Faktor vom Haustyp ab. Ein Gartenhaus als Lagerfläche lässt sich relativ einfach selbst errichten. Bei allen anderen Bauformen ist es schwieriger, vor allem dann, wenn sie als Wohnfläche genutzt werden sollen und entsprechend allen gesetzlichen Vorgaben für Wohnhäuser wie dem Gebäudeenergiegesetz Folge leisten müssen. Ein Minihaus als Bausatz vom Anbieter erfüllt dies, die meisten Baupartner bieten in diesem Fall auch umfangreiche Schulungen an. Trotzdem müssen Sie sich bei einem Minihaus, das Sie selbst bauen, oft noch zusätzliche Handwerksfirmen dazuholen, um komplexe Arbeiten wie die Errichtung des Dachstuhls von Profis durchführen zu lassen. Gleiches gilt, wenn Sie den Innenausbau Ihres Minihauses durchführen, denn beispielsweise von der Heizung sollten Laien in jedem Fall die Finger lassen.

“Seien Sie ehrlich zu sich selbst, wenn Sie entscheiden, wie viel Sie bei Ihrem Minihaus selbst bauen wollen. In der persönlichen Beratung mit Ihrem Baupartner erfahren Sie ganz genau, welche Arbeiten noch anfallen und inwiefern auch Unerfahrene diese erfolgreich bewältigen können. Schließlich soll auch die Zeitplanung beim Bau eingehalten werden, damit keine Mehrkosten entstehen – denken Sie etwa an Bereitstellungszinsen durch die Bank. Auch wenn der niedrigere Preis eines Bausatz-Minihauses verlockend ist: Nehmen Sie im Zweifelsfall lieber die höhere Ausbaustufe. Denn so vermeiden Sie Baumängel und Frust beim Bau. Mit den meisten Anbietern können Sie sehr individuell vereinbaren, welche Teilleistungen noch übernommen werden. So können Sie zumindest teilweise Ihr Minihaus selbst bauen, indem Sie genau die Arbeiten, die Ihnen liegen, verantworten, und dabei auch noch sparen.”
Minihaus als Ausbauhaus
Generell müssen alle, die ein Minihaus bauen möchten, sich mit folgenden Themen auseinandersetzen:
- Baugenehmigung: Wird ein Haus als Wohnfläche genutzt, muss es genehmigt werden. Die Größe des Hauses ist nicht erheblich. Wird es lediglich als Lagerfläche genutzt, sieht das anders aus, dann gelten andere Regeln, die von Bundesland zu Bundesland aber abweichen können.
- Gebäudeenergiegesetz: Das Gebäudeenergiegesetz gilt nur für alle Wohngebäude. Das heißt, selbst ein Minihaus bis 50 qm, das zu Wohnzwecken gebaut werden soll, braucht eine Baugenehmigung und muss dafür die Ansprüche an Dämmung und Heizung erfüllen.
- Sonstige Regeln: Bauherren sollten sich außerdem mit Abstandsregeln, Regeln zur Grenzbebauung, dem Bebauungsplan und Nachbarschaftsgesetzen auseinandersetzen, um herauszufinden, wo und wie Sie auf einem Grundstück Ihr Minihaus aufstellen dürfen.
Wo kann ich ein Minihaus bauen?

Wo Minihäuser gebaut werden können, hängt in erster Linie davon ab, ob und in welchem Umfang sie bewohnt werden.
- Minihäuser, die dauerhaft als Wohnraum dienen, dürfen nur auf erschlossenen Baugrundstücken gebaut werden. In Einzelfällen kann es Ausnahmen geben, beispielsweise am Rand von Dörfern, dann kann die Gemeinde Grundstücke umwidmen, erschlossen werden müssen solche Grundstücke dennoch.
- Wochenend- und Ferienhäuser, die nur temporär zu Wohnzwecken genutzt werden, können zusätzlich auf Freizeitgrundstücken gebaut werden, wenn diese für eine entsprechende Bebauung vorgesehen sind.
- Gartenhäuser und Schuppen, also Minihäuser, die nicht zu Wohnzwecken gedacht sind, können im eigenen Garten oder auch auf Außenflächen, also außerhalb einer Ortschaft oder auf landwirtschaftlichen Flächen gebaut werden. Doch auch hier gilt die Landesbauordnung, unter Umständen benötigen Sie trotzdem eine Baugenehmigung. Informieren Sie sich vorher, wie Ihr Minihaus gestaltet sein muss, um genehmigungsfrei errichtet zu werden, und welche Anträge trotzdem anfallen.
In allen Fällen müssen die Baugesetze, örtliche Bestimmungen, die Vorgaben des jeweiligen Bebauungsplanes und etwaige Bestimmungen des Bauamtes befolgt werden. Das heißt beispielsweise nur dann auf Baugrundstücken gebaut werden darf, wenn die jeweiligen Grund- und Wohnflächenzahlen noch nicht überschritten sind. Diese Zahlen geben an, wie viel Fläche eines Grundstückes überbaut werden darf und wie viel Wohnfläche maximal auf einem Grundstück vorhanden sein darf.
Welche Baustoffe sind für Minihäuser geeignet?
Prinzipiell sind für Minihäuser die gleichen Rohstoffe geeignet, wie für jedes andere Haus auch. Sie können massiv oder in Leichtbauweise gebaut werden, aus Stein oder Holz und aus anderen Materialien. Auch das Dach kann aus den auch sonst üblichen Materialien wie Ziegel, Beton oder Aluminium bestehen. Je nach Einsatzgebiet oder Haustyp sind bestimmte Materialien aber ungeeignet.
Minihäuser auf Rädern müssen zum Beispiel platzsparend und leicht gebaut werden. Stein kommt dabei nicht in Frage, der wichtigste Baustoff ist Holz, dazu Aluminium, je nach Dachaufbau auch Bitumenbahnen. Viele Gartenhäuser bestehen ebenfalls aus Holz oder Kunststoff, obwohl auch massive Bauweisen denkbar sind. Modulhäuser sind nicht gemauert, sondern bestehen üblicherweise aus Beton-, Stahl- oder auch Holzelementen. Bei Minihäusern in Baulücken oder auf Baugrundstücken kommen neben Holzrahmen- und Holzständerbauweisen auch klassische Massivbauweisen mit Stein, Stahl und Beton in Frage. Als neuester Trend werden solche Minihäuser 3D-gedruckt.
Minihaus bauen: Empfohlene Anbieter
Autarkes Wohnen im Minihaus
Autarkie bedeutet wirtschaftliche Unabhängigkeit. Autarkes Wohnen bedeutet also, keinen Strom, keine Heizrohstoffe oder Wärme und auch kein Wasser von außerhalb zu beziehen, sondern selbst zu produzieren, beziehungsweise aus der Umgebung zu beziehen. Bei einem Minihaus ist es vorteilhaft, dass es aufgrund der geringen Größe weniger Energie benötigt als konventionelle Häuser. Beachten Sie aber, dass in den allermeisten Fällen ein Anschluss an Versorgungsnetze Voraussetzung für die Baugenehmigung Ihres Minihauses ist ist.
- Stromversorgung: Als alternative Stromlieferanten kommen in erster Linie Sonnen- und Windenergie in Frage. Die Stromversorgung im Winter ist problematisch. Dann gibt’s zwei Möglichkeiten: Für Notfälle gibt es einen ganz normalen Stromanschluss oder einen Dieselgenerator.
- Heizung: Ein Minihaus kann relativ einfach mit einem kleinen Holzofen beheizt werden. Je nach Bauweise kommen auch eine Wärmepumpe oder andere Stromheizungen in Frage.
- Wasserversorgung: An manchen Standorten kann ein Brunnen gegraben werden. Dafür ist allerdings eine Genehmigung erforderlich. Dieser dient in der Regel auch nicht zur Trinkwasserversorgung, diese muss dann durch Wassertanks sichergestellt werden.
- Kanalisation: Kann ein Haus nicht an die Kanalisation angeschlossen werden, können chemische Toiletten oder Trockentoiletten gebaut und Sickergruben angelegt werden.
Hausbaukataloge bestellen & sich inspirieren lassen
Mit dem Katalog-Assistenten in nur 2 Minuten passende Hauskataloge finden.
Jetzt Bauprojekt startenMinihaus-Preise und Kosten
Beim Minihaus ist der Preis im Vergleich zu einem ansonsten baugleichen größeren Haus ein überzeugender Vorteil. Denn die kleine Wohnfläche hilft Ihnen, die Kosten Ihres Minihauses vergleichsweise zu reduzieren. Auch das Grundstück kostet Sie weniger, denn Sie benötigen auch weniger Baugrund. Generell kosten Minihäuser im Schnitt 2.700 Euro pro Quadratmeter ohne Grundstück, Baunebenkosten und Keller oder Bodenplatte. Auch die Außenanlage kommt noch hinzu.
Dabei sind Minihaus-Preise je nach Ausbaustufe und Ausstattung höher oder niedriger. Wählen Sie beispielsweise ein Minihaus schlüsselfertig in der günstigen Standardversion des Herstellers ohne weitere Extras oder Änderungen beim Grundriss, dann ist pro Quadratmeter ein Preis fürs Minihaus ab 2.200 Euro möglich. Planen Sie den Grundriss Ihres Minihauses dagegen ganz individuell mit Ihrem Baupartner, suchen sich hochwertigste Ausstattungselemente wie bei Dusche und Waschtisch aus und legen Sie Wert auf höchste Energiestandards mit neuester Haustechnik wie PV-Anlage und Wärmepumpe, dann kann der Minihaus-Preis pro Quadratmeter auch um die 4.000 Euro und mehr betragen.
Trotzdem bleibt der preisliche Vorteil gegenüber einer ansonsten äquivalenten Immobilie mit mehr Quadratmetern. Und haben Sie Ihr Minihaus erst einmal bezogen, sparen Sie sich nicht nur Aufwand beim Putzen und Instandhalten, sondern auch bei den Betriebskosten.
Das müssen Sie beim Bau eines Minihauses beachten
Wollen Sie ein Minihaus bauen, müssen Sie sich an die gleichen baurechtlichen Regeln wie bei einem ‘normalgroßen’ Haus halten. Sprich: Sie benötigen normalerweise eine Baugenehmigung und ein erschlossenes Grundstück, auch wenn es einige Ausnahmen, beispielsweise bei Ferienhäusern, geben kann. Ein Minihaus hat aber gerade wegen seiner geringeren Wohnfläche einige Vorteile. So ist bei einem Minihaus der Preis relativ gesehen geringer, Sie kommen auch mit einem kleinen oder unregelmäßigen Grundstück aus und haben vor allem weniger Arbeit bei der Wartung und Pflege. Auch die Heizkosten sind vergleichsweise niedriger. Für Paare, Singles, kleine Familien aber auch als Minihäuser für Senioren werden die kleinen Eigenheime deswegen immer beliebter. Ob Sie Ihr Minihaus selbst bauen bzw. ausbauen oder doch lieber ein Minihaus schlüsselfertig errichten lassen, hängt dabei einerseits von Ihrem Baubudget ab. Andererseits aber sollten Sie Ihre Entscheidung auch dahingehend treffen, wie handwerklich begabt und belastbar Sie sind und wie viel Zeit Sie neben Beruf und Familie für Ihren Hausbau haben.





















































































































































































































