Ein Haus im Doppelpack: Wer ein Doppelhaus bauen möchte, profitiert von verschiedenen Vorteilen, kann beispielsweise Geld und Platz sparen. Doch nicht in jedem Fall ist der Bau einer Doppelhaushälfte die beste Lösung, denn es gibt auch einige Dinge, die Bauherren beachten müssen.
Welche dies genau sind, welche Vorteile eine Doppelhaushälfte zu bauen hat und welche Kosten beim Bau eines Doppelhauses anfallen, erfahren Sie auf dieser Seite.
Doppelhausbau: Das Wichtigste in Kürze
Bei einem Doppelhaus werden zwei eigenständige Wohnhäuser mit einer gemeinsamen Trennwand errichtet
Bei einer Massiv- oder Fertighaus-Doppelhaushälfte sind die Baukosten im Vergleich zum Einfamilienhaus günstiger
Pro Quadratmeter sind Kosten für ein Doppelhaus von 2.700 Euro ohne Nebenkosten, Grundstück und Fundament der Durchschnitt
Doppelhaushälfte bauen: Was bedeutet das?
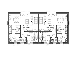
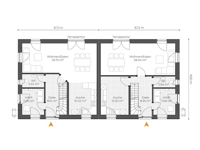
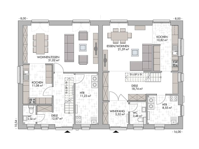
Ein Doppelhaus besteht aus zwei eigenständigen Gebäuden – es gibt zwei getrennte Eingänge, aber die Heizungsanlage wird in der Regel gemeinsam betrieben, wenn auch separat abgerechnet wird. In den allermeisten Fällen stehen die beiden Doppelhaushälften auf zwei benachbarten Grundstücken und sind genau auf der Grundstücksgrenze durch eine dicke Wand mit Brandabschluss getrennt. Üblicherweise sind die beiden Hälften symmetrisch gestaltet, einen Zwang dazu gibt es aber nicht. Allerdings kann ein mit der Nachbarsfamilie gemeinsam gebautes Doppelhaus auch auf einem Grundstück stehen oder eine der Doppelhaushälften ähnlich wie eine Einliegerwohnung funktionieren und vermietet werden. Eine Doppelhaushälfte kann auch mehrere Wohneinheiten beinhalten.
Moderne Doppelhäuser
Welche Form auch immer: Doppelhäuser haben bestimmte Vor- und Nachteile und wer ein Doppelhaus bauen möchte, sollte sich vorher einige Gedanken machen.
Bau Doppelhaus: Vor- und Nachteile
Doppelhaushälfte Vorteile
- Kleinere Grundstücke sind möglich beziehungsweise können effizienter genutzt werden. Jede Doppelhaushälfte ist nur an drei Seiten von Grund umgeben.
- Beim Doppelhaus bauen ist eine Kostenersparnis gegenüber einem freistehenden Haus möglich, weil beispielsweise die Fenster und die Fassadengestaltung auf einer Hausseite komplett wegfallen.
- Gemeinsame Heizung möglich, was ebenfalls Kosten und Platz spart.
Doppelhaushälfte Nachteile
- Höhere Ansprüche an Schallschutz zwischen den beiden Doppelhaushälften.
- Nachbarn sollten sich in gewissen Baudetails einigen, unterschiedliche Fassadengestaltungen und sogar unterschiedliche Baufirmen sind aber möglich – letzteres ist aber nicht unbedingt empfehlenswert.
- Oftmals gibt es eine gute und eine schlechtere Grundstückshälfte. Das gilt insbesondere bei der Anbindung an Verkehrsflächen und der Sonnenausrichtung. Beim Doppelhaus-Fertighaus oder Massivbau muss deshalb auf eine gerechte Planung geachtet werden.
Bau einer Doppelhaushälfte planen: Diese 4 Punkte müssen Sie berücksichtigen
Häufig planen Bauträger Doppelhäuser und verkaufen die Hälften einzeln. Dann hat der spätere Eigentümer wenig Planungsaufwand – aber auch kein Mitspracherecht. In allen anderen Fällen, also wenn ein Bauherr auf seinem eigenen Grundstück eine Doppelhaushälfte bauen will, muss er sich mit seinem Nachbarn, der die andere Doppelhaushälfte baut, absprechen.
Ein Sonderfall tritt ein, wenn ein Bauherr sein eigenes Grundstück teilt und auf den beiden Hälften dann ein Doppelhaus baut. So wird er im Grunde zum Bauträger und kann anschließend beide Hälften verkaufen oder aber nur eine, und die andere selbst nutzen.
Wenn zwei Parteien gemeinsam ein Doppelhaus bauen, sollten sie sich in vielen Details abstimmen. Dazu gehören beispielsweise die Dachform, die Firstrichtung oder die ungefähre Größe der Doppelhaushälften. Da es sich um eigenständige Häuser handelt, ist es grundsätzlich möglich, mit unterschiedlichen Baufirmen und sogar in unterschiedlichen Bauweisen zu bauen – etwa der eine in Massiv-, der andere in Fertighausbauweise. Dies bietet sich aber nicht unbedingt an, da Koordinierung und auch Statik hier wesentlich komplexer sind, als wenn Sie sich für einen Anbieter entscheiden. Ihr Baupartner gestaltet Ihr modernes Doppelhaus dann auf Wunsch wie aus einem Guss oder auch mit zwei unterschiedlichen Doppelhaushälften – während eine Doppelhaushälfte einen Balkon zusätzlich zur Terrasse hat, hat die andere beispielsweise einen Erker. Generell ist es aber sinnvoll, möglichst einheitlich und symmetrisch zu bauen.

“Es sieht einfach nicht so schön aus, wenn beim Doppelhaus Fenster komplett unterschiedlich ausgerichtet und gestaltet werden. Auch wenn einer von beiden Bauherren mit Wärmedämmverbundsystem baut und der andere ein Wandsystem ohne zusätzliche Dämmung wählt, wirken die Doppelhaushälften wie Fremdkörper. Es gibt aber auch andere Gründe, sich gut anzusprechen. So ist es beispielsweise sinnvoll, Treppenhäuser und Bäder aneinander angrenzend zu bauen, sodass zwischen den Schlaf- und Wohnzimmern zusätzlicher Schallschutz entsteht. Die Bauherren sollten sich darauf einigen, mit oder ohne Keller zu bauen. Baut nur einer von beiden einen Keller, muss dies statisch ausgeglichen werden, was für den Bauherren ohne Keller enorme Zusatzkosten bedeutet.”

Deswegen sollten die beiden Bauparteien die ersten Planungstreffen für ihr Doppelhaus am besten gemeinsam wahrnehmen und sich auf die wichtigsten Details einigen:
- Baustil
- grober Grundriss
- Fassadengestaltung und Art der Fenster
- Bauen mit oder ohne Keller
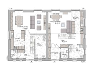
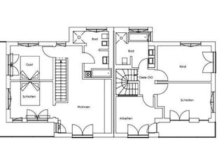
Bei der weiteren Planung haben die Parteien dann freie Hand und können ihre Doppelhaushälfte beispielsweise etwas in die Breite ziehen oder einen Anbau planen. Demnach ist es also kein Problem, beim Doppelhaus den Grundriss in den beiden Wohneinheiten zu verändern, während beispielsweise eine Doppelhaushälfte komplett offen und mit einer Schlafgalerie gestaltet sein kann, weist die andere Seite mehrere getrennte Räume wie ein Arbeitszimmer, zwei Kinder- und ein Elternschlafzimmer auf. Um Kosten beim Bau des Doppelhauses zu sparen, können die Absprachen noch etwas mehr ins Detail gehen.
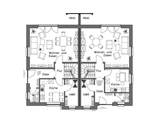
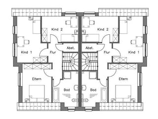
Doppelhaus-Grundriss modern und anpassbar
Doppelhaus bauen: Kosten & Preise
Ein Doppelhaus zu bauen, kann Kosten im Vergleich zu zwei ansonsten gleichartigen Einfamilienhäusern einsparen:
- Bauherren können eine Fassadenseite sparen und brauchen weniger Fenster, was die Kosten für eine Doppelhaushälfte verhältnismäßig senkt.
- Die trennende Innenwand ist anders aufgebaut als die Außenwände, Wärmedämmung ist nicht notwendig, insgesamt ist sie dünner als zwei Außenwände zusammengenommen. Dafür sind die Anforderungen an den Brand- und Schallschutz höher, sodass hierbei kaum gespart werden kann.
- Bauen beide Bauherren mit einer Baufirma, stärkt das die Verhandlungsposition für Preisnachlässe.
- Die Bauherren können sich für eine gemeinsame Heizung und einen gemeinsamen, von außen zugänglichen Technikraum entscheiden. Das kann Kosten beim Doppelhaus sparen, macht allerdings einen möglichen späteren Wiederverkauf unter Umständen komplizierter.
Insgesamt können sich die Differenzen zwischen den Kosten einer Doppelhaushälfte und einem vergleichbaren Einzelhaus auf eine Summe im hohen vierstelligen oder niedrigen fünfstelligen Bereich belaufen. Wirklich vergleichen können Sie aber am besten, wenn Sie sich vom selben Baupartner ein Angebot für ein Doppelhaus mit schlüsselfertigem Preis und ein freistehendes Einzelhaus in gleicher Ausführung machen lassen.
Massiv- und Fertighaus-Doppelhaus-Preise liegen im Schnitt bei 2.700 Euro pro Quadratmeter. Keller und Fundament sowie die Baunebenkosten wie für den Bauantrag, die Finanzierung oder eine professionelle Baubegleitung sind hierbei noch nicht berücksichtigt, und auch das Grundstück müssen Sie separat erwerben.
Fertighaus-Doppelhaus: Preise
Massives Doppelhaus bauen: Kosten
Doppelhaus schlüsselfertig: Preise
Massiv- & Fertighaus-Doppelhaus: Das richtige Grundstück
Ein Grundstück, das für ein Doppelhaus geeignet ist, kann etwas schmaler sein, als ein Grundstück für ein freistehendes Einfamilienhaus, denn die Abstandsflächen fallen auf einer Seite weg. Wer beispielsweise ein schmales Haus mit einer Breite von sechs Metern baut, braucht bei normalen Abstandsflächen ein Grundstück mit einer Breite von mindestens zwölf Metern. Bei einer Doppelhaushälfte muss das Grundstück lediglich 9 Meter breit sein. Allerdings braucht man ein Nachbargrundstück, dessen Besitzer am Doppelhausbau teilnimmt.
Suchen die künftigen Nachbarn ein gemeinsames Grundstück, besteht die Möglichkeit, ein großes Grundstück zu kaufen und dieses teilen zu lassen. Diese Teilung muss die Gemeinde allerdings genehmigen. In einem solchen Fall lohnt es sich, eine Bauvoranfrage zu stellen. Dann sollten die Bauherren unbedingt auf die Ausrichtung achten und sich im Optimalfall schon vor dem Kauf darauf einigen, wer welche Grundstückshälfte bekommt.
Eine Doppelhaushälfte nutzt immer nur drei Himmelsrichtungen aus. Damit beide Nachbarn gleich gut wegkommen, sollte das Doppelhaus in Nord-Süd-Richtung geteilt werden. Auch andere Standortfaktoren wie der Anschluss an die Verkehrsflächen sollten bedacht werden. Letztendlich können die Bauherren ein solches Grundstück nicht einfach in der Mitte teilen. Sie müssen es so teilen, dass das gesamte Doppelhaus mit beiden Hälften in das vorgegebene Baufenster passt. Das kann in Einzelfällen bedeuten, dass sich die künftigen Nachbarn mit unterschiedlich großen Grundstücken zufriedengeben müssen.
Beachtet werden sollte bei der Grundstückswahl außerdem, ob die notwendigen Stellplätze untergebracht werden können. Je nach Bauordnung sind pro Wohneinheit zwei Stellplätze vorzuweisen. Auf einem kleinen Doppelhausgrundstück kann das zum Problem werden.
Ausgewählte Baufirmen für Doppelhäuser
Bau eines Doppelhauses: Bebauungsplan, Baugenehmigung & Voranfrage
Die Bebauungspläne für Baugrundstücke kann jeder Interessent im Internet oder im zuständigen Bauamt einsehen. Baugebiete, in denen Doppelhäuser gebaut werden dürfen, sind im Bebauungsplan folgendermaßen markiert:
- O für offene Bauweise
- D für Doppelhaus – dann sind Doppelhäuser sogar Pflicht
- ED für Einzelhaus oder Doppelhaus
Außerdem gibt es weitere Begrenzungen, wie beispielsweise die Grundflächenzahl (GRZ), die sich immer auf die Grundstücksgröße bezieht und für ein Einzelhaus ausreicht, beim Doppelhaus aber knapp werden kann. Beim Doppelhaus sind Gauben oder Zwerchhäuser besonders sinnvoll, weil es sonst möglicherweise Dachzimmer gibt, die ausschließlich durch schräge Dachflächenfenster Licht bekommen. Gauben sind aber nicht immer erlaubt oder in ihrer Form oder Größe eingeschränkt.
Wenn bereits absehbar ist, dass Bauherren den Vorgaben vermutlich nicht in jedem Punkt gerecht werden, sollten sie unbedingt eine Bauvoranfrage stellen, bevor sie ein Grundstück kaufen oder viel Zeit in die Planung investieren.
Alle Infos rund um den Bebauungsplan: Wie er gelesen wird, was die Abkürzungen bedeuten.
Doppelhaushälfte bauen – Wissenswertes für die Baustelle
Der Bau eines Doppelhauses unterscheidet sich nicht wesentlich vom Bau jedes anderen Hauses. Wenn beide Doppelhaushälften von der gleichen Baufirma errichtet werden, stellt diese die Häuser vermutlich gleichzeitig oder unmittelbar nacheinander auf. Bei unterschiedlichen Baufirmen ist das dagegen unwahrscheinlich. Ein Problem ist das aber nicht, denn jede Wohneinheit ist für sich abgeschlossen. Freilich sollte eine Doppelhaushälfte nicht über einen längeren Zeitraum alleinstehen, da die innenliegende Wand weitgehend ungeschützt und auch nicht wärmegedämmt ist.
Werden beide Doppelhaushälften von der gleichen Baufirma errichtet, sollten Bauherren darauf achten, dass die Kosten rund um die Baustelle richtig abgerechnet werden. Dazu gehören beispielsweise die Kosten für die Einrichtung der Baustelle oder der verbrauchte Baustrom.

Die Baustelle eines Doppelhauses. Hier werden beide Hälften gleichzeitig gebaut – das muss aber nicht immer der Fall sein. Foto: stock.adobe.com / Wolfilser
Im Doppelhaus wohnen
Eine Doppelhaushälfte bietet ihren Bewohnern nicht ganz so viel Privatsphäre wie ein freistehendes Haus. Eingangstüren und Terrassen liegen oftmals dicht beieinander, lassen sich aber ohne großen Aufwand durch Sichtschutz und Bepflanzung voneinander abgrenzen. Etwas schwieriger wird’s im Inneren des Hauses: Zwischen zwei Zimmern liegt nur eine etwas dickere Wand, da kann es schon passieren, dass man den Nachbarn hört. Wer empfindlich ist, sollte bei der Baufirma nach stärkerem Schallschutz fragen und das Schlafzimmer nicht an der Innenwand einplanen.
Auch bei späteren baulichen Veränderungen können sich Nachbarn in die Quere kommen. Egal, ob es um die Terrassenvergrößerung, eine Überdachung derselben, den Wintergarten oder einen anderen Anbau geht. Die Bauordnungen der Bundesländer verlangen einen Abstand von immerhin drei Metern, je nach Bauwerk sogar mehr. Bei Anbauten kann es aber Sonderlösungen geben, sodass man auch direkt auf der Grundstücksgrenze bauen darf. Solche Bauvorhaben müssen mit dem Bauamt und dem Nachbarn abgestimmt werden.
Die Abstandsflächen regeln, wie viel Abstand Bauwerke zum Nachbargrundstück einhalten müssen. Allerdings gibt es auch Ausnahmen und manche Bauwerke dürfen sogar auf die Grundstücksgrenze gesetzt werden.
Für die Einfriedung zwischen den Grundstücken beim Doppelhaus sind in den meisten Bundesländern übrigens beide Nachbarn gleichermaßen verantwortlich. Teilweise herrscht eine Einfriedungspflicht, das heißt, dass eine Mauer oder ein Zaun gesetzt werden muss, sobald einer der Nachbarn das wünscht. Außerdem gibt es manchmal die sogenannte Rechtseinfriedung. Das heißt, dass ein Hauseigentümer nur die von der Straße aus rechte Grenze seines Grundstückes auf eigene Kosten einfrieden lassen muss, und zwar dann, wenn der Nachbar dies wünscht. Er selbst kann wiederum von seinem Nachbarn linker Hand verlangen, einen Zaun aufzustellen.
Hausbaukataloge bestellen & sich inspirieren lassen
Mit dem Katalog-Assistenten in nur 2 Minuten passende Hauskataloge finden.
Jetzt Bauprojekt startenDas müssen Sie beim Bau einer Doppelhaushälfte beachten
Will man ein Doppelhaus bauen, so empfiehlt sich von Anfang an eine enge Zusammenarbeit und ein offenes Verhältnis mit der zukünftigen Nachbarsfamilie. Denn so profitieren Sie am besten von dem Potential, bei den Kosten für eine Doppelhaushälfte im Vergleich zum Einfamilienhaus zu sparen. Denn nicht nur ist der Bau eines Doppelhauses auf einem relativ gesehen kleineren und damit günstigeren Grundstück möglich. Die gemeinsame Trennwand senkt ebenfalls die Kosten beim Bau eines Doppelhauses, da hier weder Fassadenarbeiten noch eine Dämmung anfallen. Gerade wenn Heizungsanlage und Technikraum gemeinsam genutzt werden und beide Baupartner an einem Strang ziehen, holen Sie zusätzlich das Beste beim Bau Ihrer Doppelhaushälfte heraus. Sprechen Sie ebenfalls unbedingt immer alle Individualisierungswünsche wie eine Dachterrasse oder einen Carport im Voraus ab, um Konflikte schon von vornherein auszuschließen und Ressourcen effizient einzusetzen. Doppelhaushälften können durchaus unterschiedlich gebaut werden, insbesondere was den Grundriss angeht, gerade nach außen raten wir aber zumindest zu einem übereinstimmenden Stil und dazu passender Formgebung. Achten Sie dann noch auf soliden Schallschutz, steht dem erfolgreichen Projekt Doppelhausbau nichts im Wege.






















































































































































